← South Downs National Park Authority

Status

Application in Progress House extension
Received
07 Jan 2026
New homes
0

Full proposal

Proposed single detached garage and alterations to dwelling.

Documents

AGENT EMAIL 03/03/2026
Officer Correspondence
Not yet archived · Original link
APPLICATION FORM
Application Form
Not yet archived · Original link
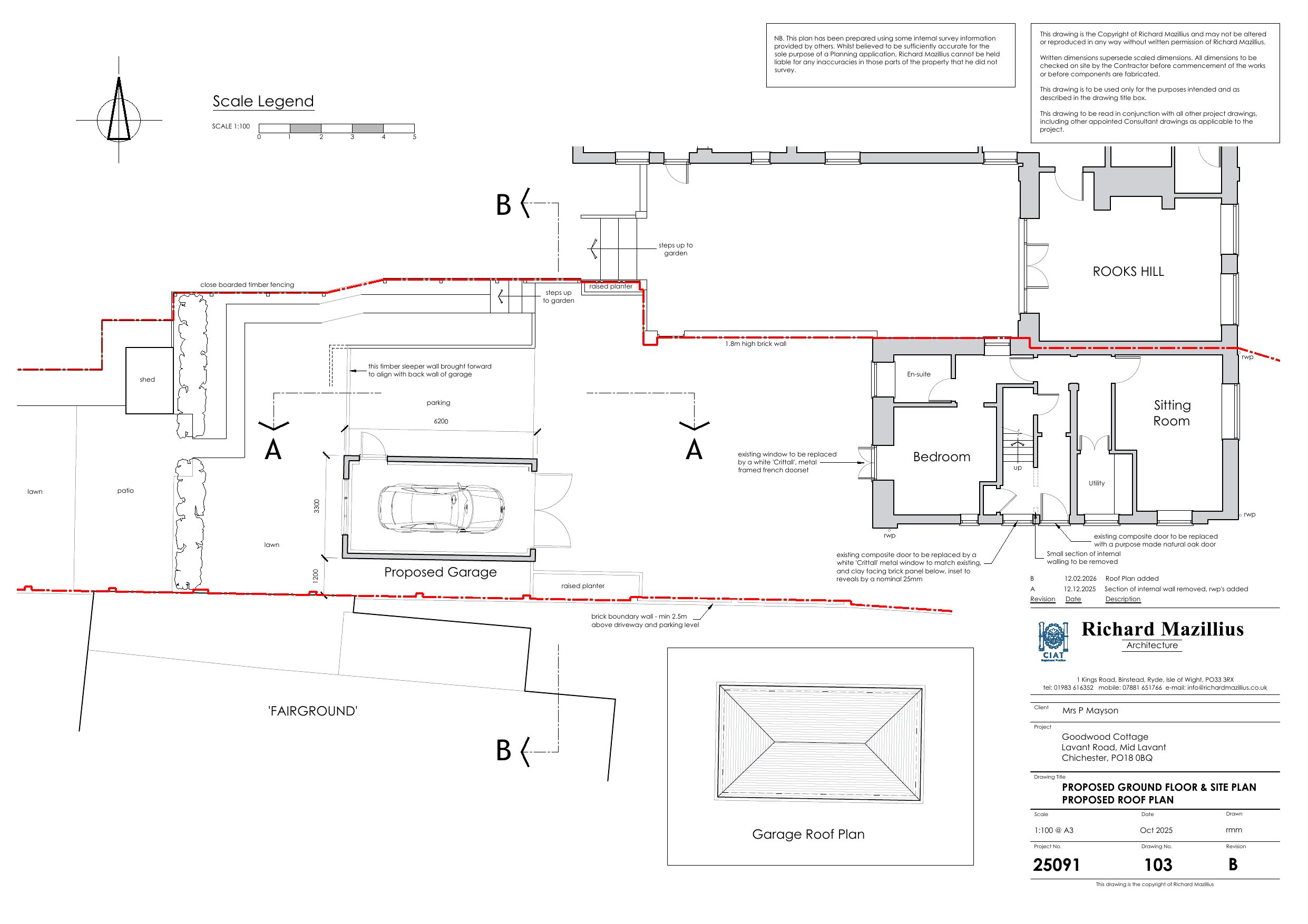
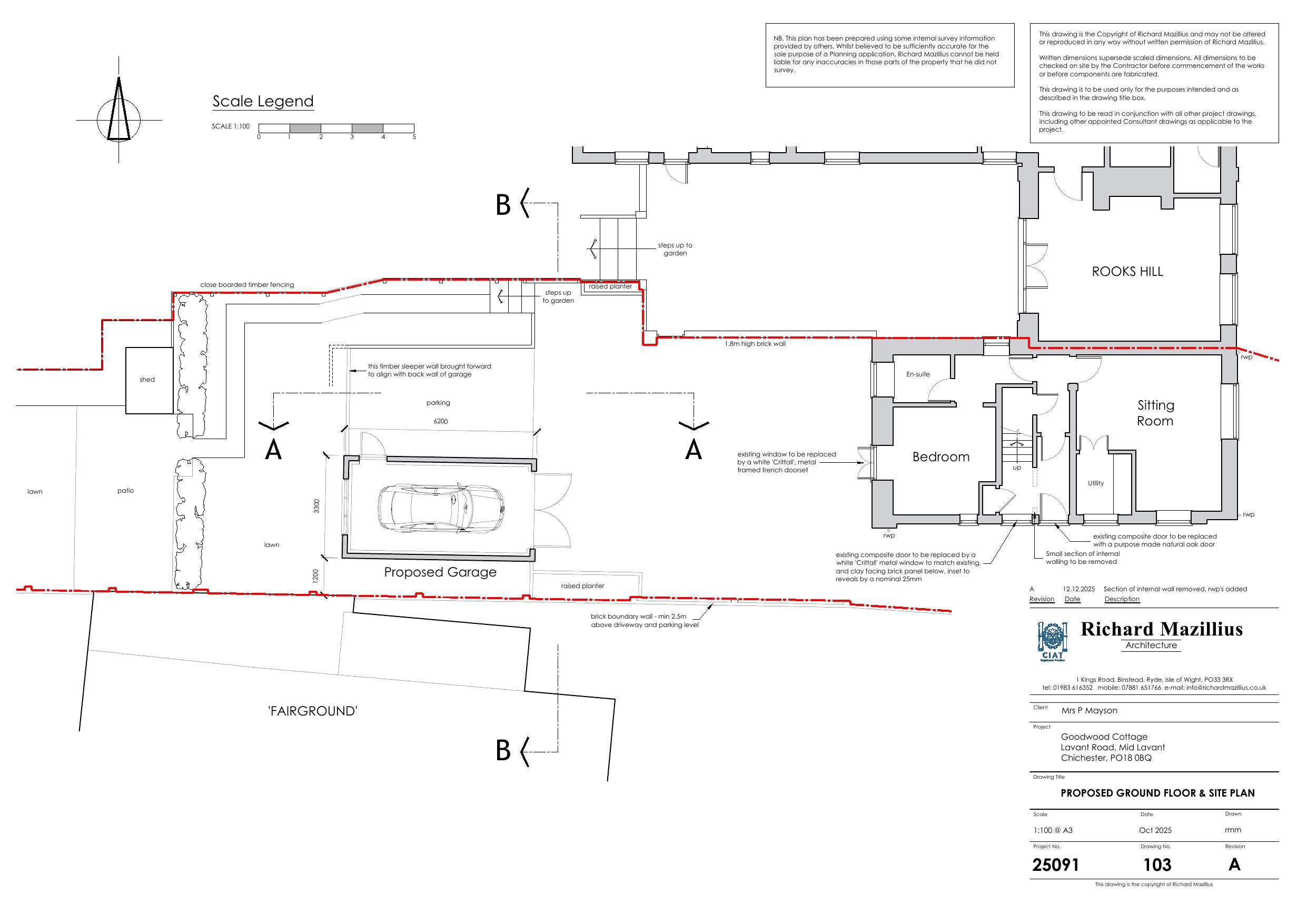
BLOCK & LOCATION PLANS
Plans
Not yet archived · Original link
COTTAGE - EXISTING SOUTH & WEST ELEVATIONS
Plans
Not yet archived · Original link
COTTAGE - PROPOSED SOUTH & WEST ELEVATIONS
Plans
Not yet archived · Original link
DESIGN, ACCESS AND HERITAGE STATEMENT
Application Documents
Not yet archived · Original link
DRIVEWAY AND PARKING SURFACING PLAN
Plans
Not yet archived · Original link
ECOSYSTEM SERVICES ACTIONS
Application Documents
Not yet archived · Original link
EXISTING SECTIONS A-A & B-B
Plans
Not yet archived · Original link
FORM 1: ADDITIONAL INFORMATION
CIL Forms
Not yet archived · Original link
FORM 2 : ASSUMPTION OF LIABILITY
CIL Forms
Not yet archived · Original link
PROPOSED GARAGE ELEVATIONS
Plans
Not yet archived · Original link
PROPOSED SECTIONS A-A & B-B
Plans
Not yet archived · Original link

Have your say

Your comment matters. Councils must consider every representation that raises material planning considerations.

Write a comment