← South Downs National Park Authority

Status

Application in Progress Demolition
Received
06 Feb 2026
New homes
0

Full proposal

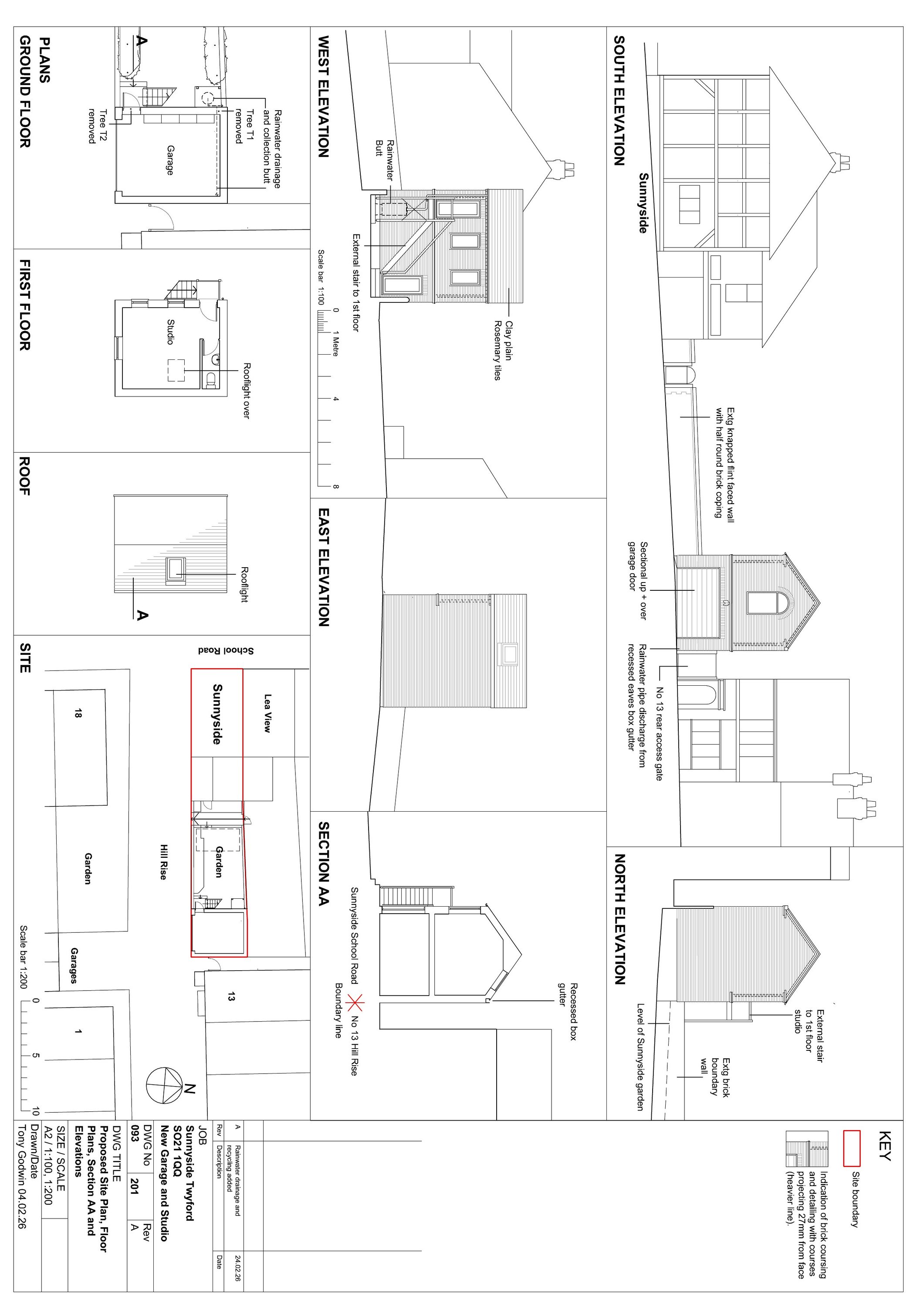
Demolition and reconstruction of existing single garage with home office/studio above accessed by external stair

Documents

APPLICATION FORM REDACTED
Application Form
Not yet archived · Original link
CIL - FORM 1 : CIL ADDITIONAL INFORMATION
Application Form
Not yet archived · Original link
ECO SYSTEMS SERVICES STATEMENT
Application Documents
Not yet archived · Original link
PROPOSED SITE PLAN, FLOOR PLANS, SECTION AA AND ELEVATIONS
Plans
Not yet archived · Original link

Have your say

Your comment matters. Councils must consider every representation that raises material planning considerations.

Write a comment