← South Downs National Park Authority

Status

Application in Progress House extension
Received
Last month
New homes
0

Full proposal

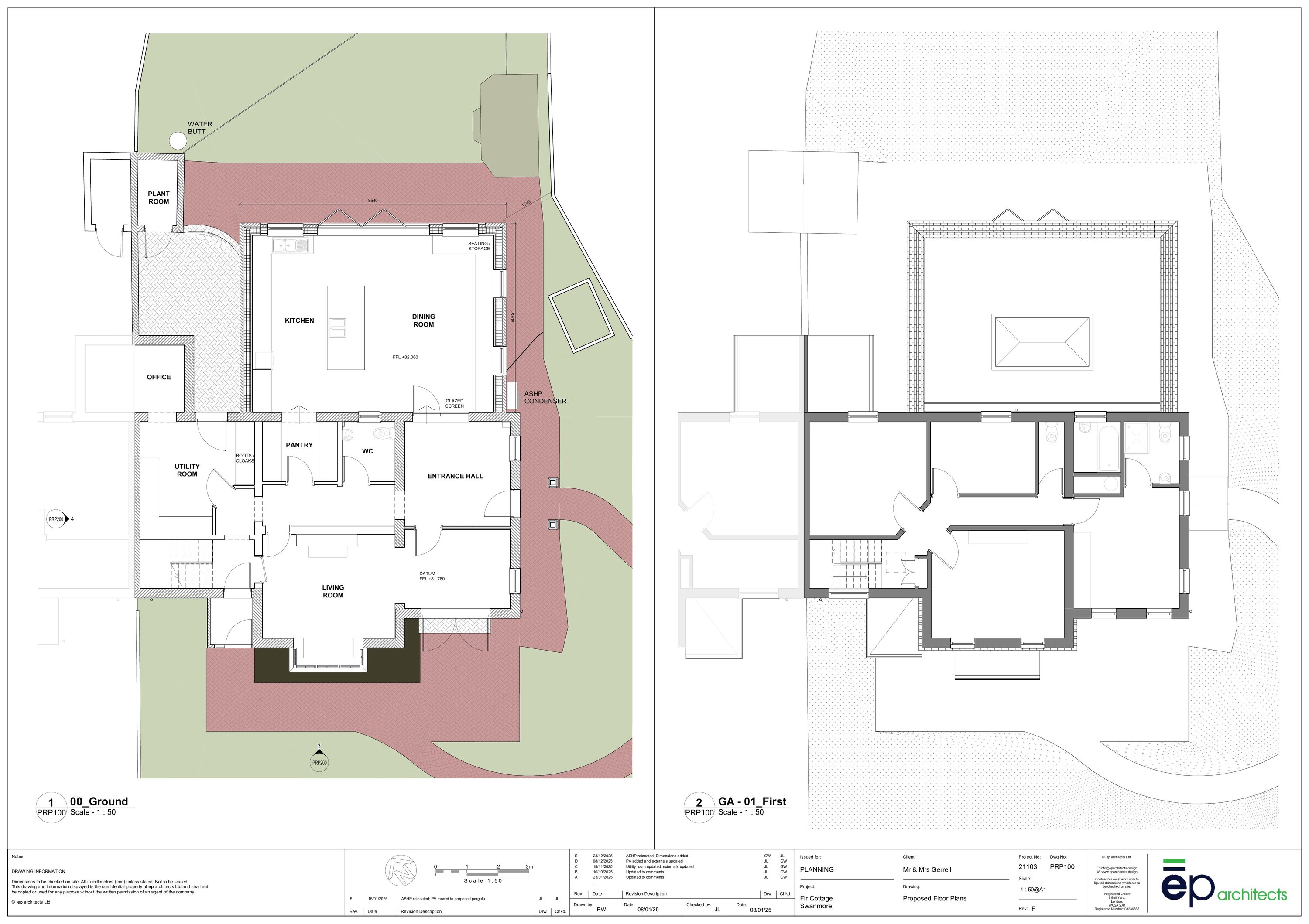
SINGLE STOREY EXTENSION TO THE REAR (NORTH) OF THE EXISTING TWO-STOREY VICTORIAN HOUSE, NEW ENTRANCE PORCH TO THE EAST, AND SOME REMODELLING TO THE EXISTING GROUND FLOOR. NEW AIR SOURCE HEAT PUMP AND CONDENSER IN PLACE OF THE EXISTING OIL-FIRED BOILER.

Documents

APPLICATION FORM
Application Form
Not yet archived · Original link
DESIGN AND ACCESS STATEMENT INCL ECO SYSTEMS SERVICES STATEMENT
Application Documents
Not yet archived · Original link
EXISTING 3D VIEWS
Plans
Not yet archived · Original link
EXISTING ELEVATIONS
Plans
Not yet archived · Original link
EXISTING FLOOR PLANS
Plans
Not yet archived · Original link
EXISTING ROOF PLAN
Plans
Not yet archived · Original link
Plans
Archived · Original link
EXISTING SITE SECTION
Plans
Not yet archived · Original link
LOCATION PLAN
Plans
Not yet archived · Original link
PROPOSED 3D VIEWS
Plans
Not yet archived · Original link
PROPOSED ELEVATIONS
Plans
Not yet archived · Original link
PROPOSED ROOF PLAN
Plans
Not yet archived · Original link
Plans
Archived · Original link
PROPOSED SITE SECTION
Plans
Not yet archived · Original link

Have your say

Your comment matters. Councils must consider every representation that raises material planning considerations.

Write a comment