← South Gloucestershire Council

Status

Awaiting decision New housing
Received
14 Apr 2025
New homes
9

Summary

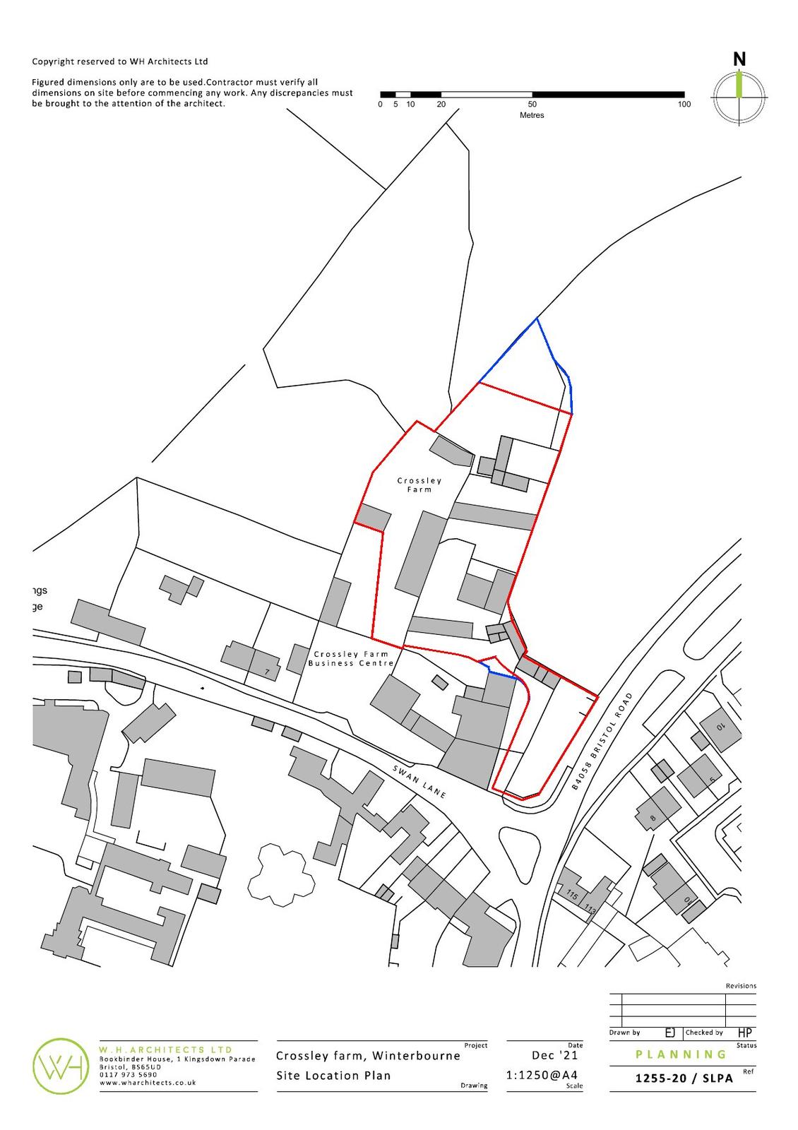
Demolition and erection of nine dwellings with new access, parking and landscaping (outline).

Full proposal

Demolition of all buildings and the erection of 9no. dwellings including a new access with associated parking and landscaping (Outline) with layout, scale and access to be determined, all other matters reserved.

Documents

AFFORDABLE HOUSING STATEMENT
Supporting Document
Not yet archived · Original link
APPLICATION FORM - WITHOUT PERSONAL DATA
Application Form
Not yet archived · Original link
ARCHAEOLOGY
Consultation Replies
Not yet archived · Original link
BASELINE UKHAB MAP
Supporting Document
Not yet archived · Original link
BIODIVERSITY NET GAIN REPORT
Supporting Document
Not yet archived · Original link
CONTAMINATED LAND
Consultee Comment
Not yet archived · Original link
CONTAMINATED LAND
Consultee Comment
Not yet archived · Original link
CORRESPONDENCE
Supporting Document
Not yet archived · Original link
DESIGN AND ACCESS STATEMENT
Revised Document
Not yet archived · Original link
DESIGN AND ACCESS STATEMENT
Superseded Document
Not yet archived · Original link
ECOLOGICAL APPRAISAL- BAT UPDATE
Supporting Document
Not yet archived · Original link
ELEVATIONS (HOUSE 6)
Revised Plan
Not yet archived · Original link
ELEVATIONS (HOUSE 7)
Revised Plan
Not yet archived · Original link
Superseded Plan
Archived · Original link
FIRST FLOOR CONTEXT PLANS
Revised Plan
Not yet archived · Original link
FIRST FLOOR PLANS IN CONTEXT
Supporting Document
Not yet archived · Original link
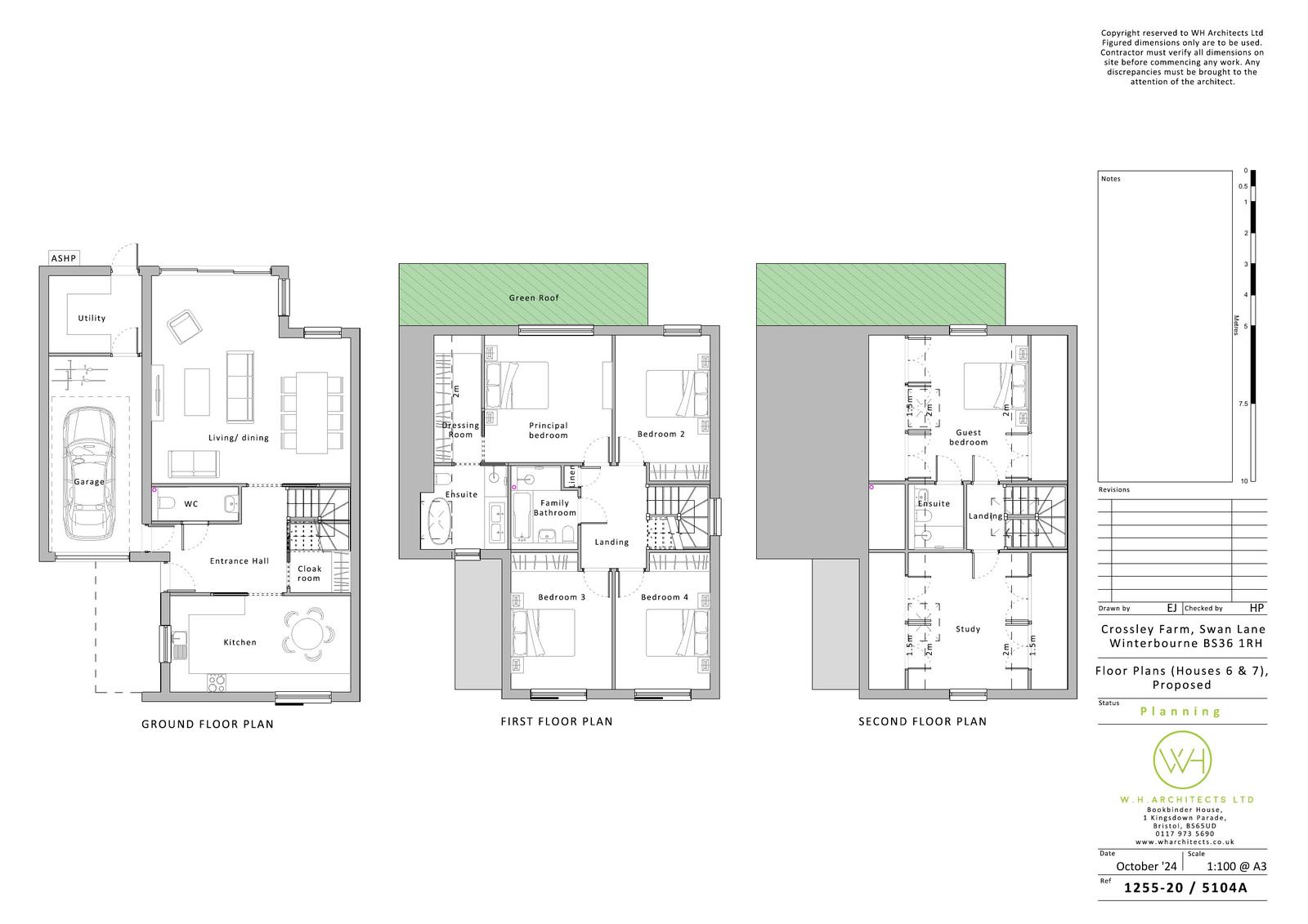
FLOOR PLANS (HOUSE 6)
Revised Plan
Not yet archived · Original link
FLOOR PLANS (HOUSE 7)
Revised Plan
Not yet archived · Original link
GROUND FLOOR CONTEXT PLANS
Revised Plan
Not yet archived · Original link
HIGHWAYS
Consultation Replies
Not yet archived · Original link
HOUSE 4 PROPOSED ELEVATIONS
Plan
Not yet archived · Original link
HOUSE 5 PROPOSED ELEVATIONS
Plan
Not yet archived · Original link
HOUSE 6, ILLUSTRATIVE FLOOR PLANS
Superseded Plan
Not yet archived · Original link
HOUSES 1, 2, 3 & 7 ILLUSTRATIVE FLOOR PLANS
Superseded Plan
Not yet archived · Original link
HOUSES 1-3 PROPOSED ELEVATIONS
Plan
Not yet archived · Original link
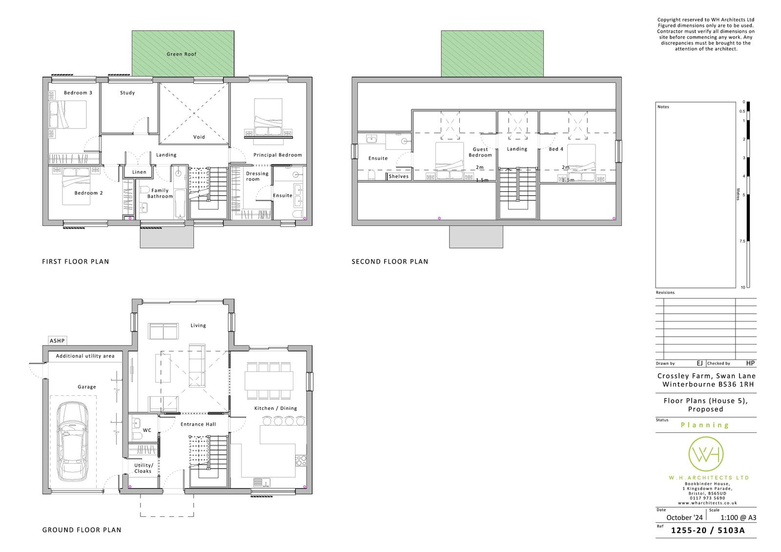
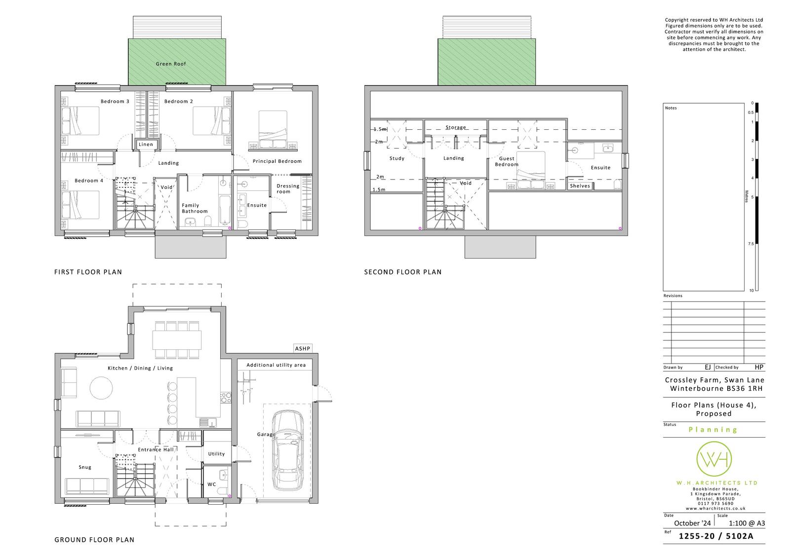
HOUSES 4 & 5 ILLUSTRATIVE FLOOR PLANS
Superseded Plan
Not yet archived · Original link
HOUSES 6 AND 7 PROPOSED ELEVATIONS
Plan
Not yet archived · Original link
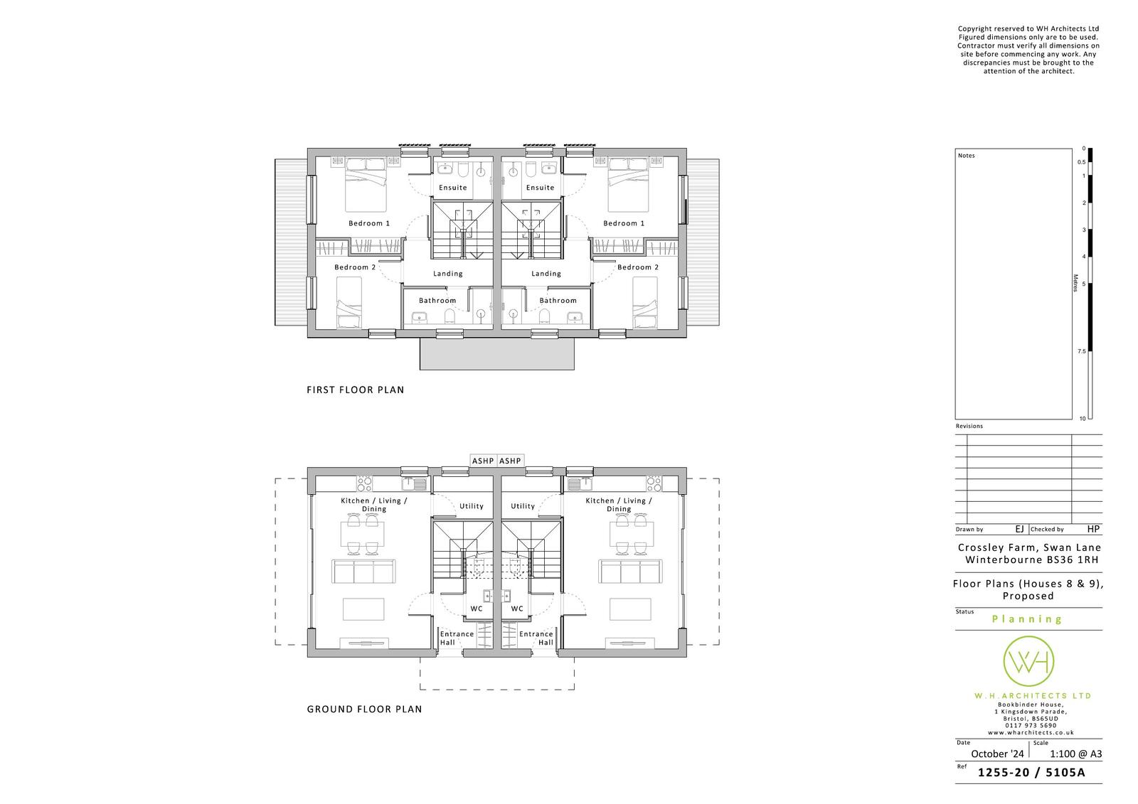
HOUSES 8 & 9 ILLUSTRATIVE FLOOR PLANS
Superseded Plan
Not yet archived · Original link
HOUSES 8 AND 9 PROPOSED ELEVATIONS
Plan
Not yet archived · Original link
IC HOUSING ENABLING
Consultee Comment
Not yet archived · Original link
ILLUSTRATIVE FIRST FLOOR PLANS, PROPOSED
Superseded Plan
Not yet archived · Original link
ILLUSTRATIVE GROUND FLOOR PLANS PROPOSED
Superseded Plan
Not yet archived · Original link
ILLUSTRATIVE PERSPECTIVES PROPOSED
Superseded Plan
Not yet archived · Original link
ILLUSTRATIVE PERSPECTIVES PROPOSED
Superseded Plan
Not yet archived · Original link
LANDSCAPE COMMENT
Consultee Comment
Not yet archived · Original link
LARGE SCALE ACCESS DETAIL
Supporting Document
Not yet archived · Original link
MISS AMANDA HALL - TRANSPORT DEVELOPMENT CONTROL
Consultee Comment
Not yet archived · Original link
MISS AMANDA HALL - TRANSPORT DEVELOPMENT CONTROL
Consultee Comment
Not yet archived · Original link
MISS LAURA TURNER
Consultee Comment
Not yet archived · Original link
NATIONAL HIGHWAYS
Consultee Comment
Not yet archived · Original link
NATIONAL HIGHWAYS
Consultee Comment
Not yet archived · Original link
NATIONAL HIGHWAYS
Consultee Comment
Not yet archived · Original link
PLANNING STATEMENT
Revised Document
Not yet archived · Original link
PLANNING STATEMENT
Superseded Document
Not yet archived · Original link
PRELIMINARY DRAINAGE PROPOSALS
Supporting Document
Not yet archived · Original link
PRELIMINARY DRAINAGE PROPOSALS
Supporting Document
Not yet archived · Original link
PROPOSED FIRST FLOOR IN CONTEXT
Plan
Not yet archived · Original link
PROPOSED GROUND FLOOR IN CONTEXT
Plan
Not yet archived · Original link
PROPOSED SECOND FLOOR IN CONTEXT
Plan
Not yet archived · Original link
Superseded Plan
Archived · Original link
Superseded Plan
Archived · Original link
Superseded Plan
Archived · Original link
PROPOSED UK HAB MAP
Supporting Document
Not yet archived · Original link
RNS WINTERBOURNE PARISH COUNCIL
Consultee Comment
Not yet archived · Original link
RNS WINTERBOURNE PARISH COUNCIL
Consultee Comment
Not yet archived · Original link
ROAD SAFETY AUDIT
Supporting Document
Not yet archived · Original link
ROOF PLANS IN CONTEXT
Supporting Document
Not yet archived · Original link
SECOND FLOOR CONTEXT PLAN
Revised Plan
Not yet archived · Original link
SGC ARCHAEOLOGY ASSISTANT
Consultee Comment
Not yet archived · Original link
SGC DRAINAGE OFFICER
Consultee Comment
Not yet archived · Original link
SGC DRAINAGE OFFICER
Consultee Comment
Not yet archived · Original link
Superseded Plan
Archived · Original link
Supporting Document
Archived · Original link
Revised Plan
Archived · Original link
SWEPT PATH ANALYSIS
Supporting Document
Not yet archived · Original link
SWEPT PATH ANALYSIS
Supporting Document
Not yet archived · Original link
TECHNICAL NOTE ON ACCESS
Supporting Document
Not yet archived · Original link
TRANSPORT STATEMENT
Supporting Document
Not yet archived · Original link

Have your say

Your comment matters. Councils must consider every representation that raises material planning considerations.

Write a comment