← South Gloucestershire Council

Status

Awaiting decision New housing
Received
02 Jun 2025
New homes
3

Summary

Demolition of garage and erection of three dwellings with parking and landscaping.

Full proposal

Demolition of garage. Erection of 3 no. dwellings with associated car parking, landscaping and works.

Documents

AERIAL VIEW LOOKING EAST
Supporting Document
Not yet archived · Original link
AERIAL VIEW LOOKING NORTH
Supporting Document
Not yet archived · Original link
AERIAL VIEW LOOKING WEST
Supporting Document
Not yet archived · Original link
APPLICATION FORM - WITHOUT PERSONAL DATA
Application Form
Not yet archived · Original link
ARB. REPORT
Supporting Document
Not yet archived · Original link
BASELINE BNG HABITAT PLAN
Plan
Not yet archived · Original link
BAT SURVEY
Supporting Document
Not yet archived · Original link
BIODIVERSITY METRIC CALCULATION TOOL
Supporting Document
Not yet archived · Original link
BIODIVERSITY NET GAIN STATEMENT ? STATUTORY BIODIVERSITY METRIC
Supporting Document
Not yet archived · Original link
BNG HABITAT PLAN
Plan
Not yet archived · Original link
DESIGN & ACCESS STATEMENT
Supporting Document
Not yet archived · Original link
FIRE SAFETY REPORT
Supporting Document
Not yet archived · Original link
FIRE SAFETY REPORT
Supporting Document
Not yet archived · Original link
HIGHWAYS
Consultation Replies
Not yet archived · Original link
HIGHWAYS
Consultation Replies
Not yet archived · Original link
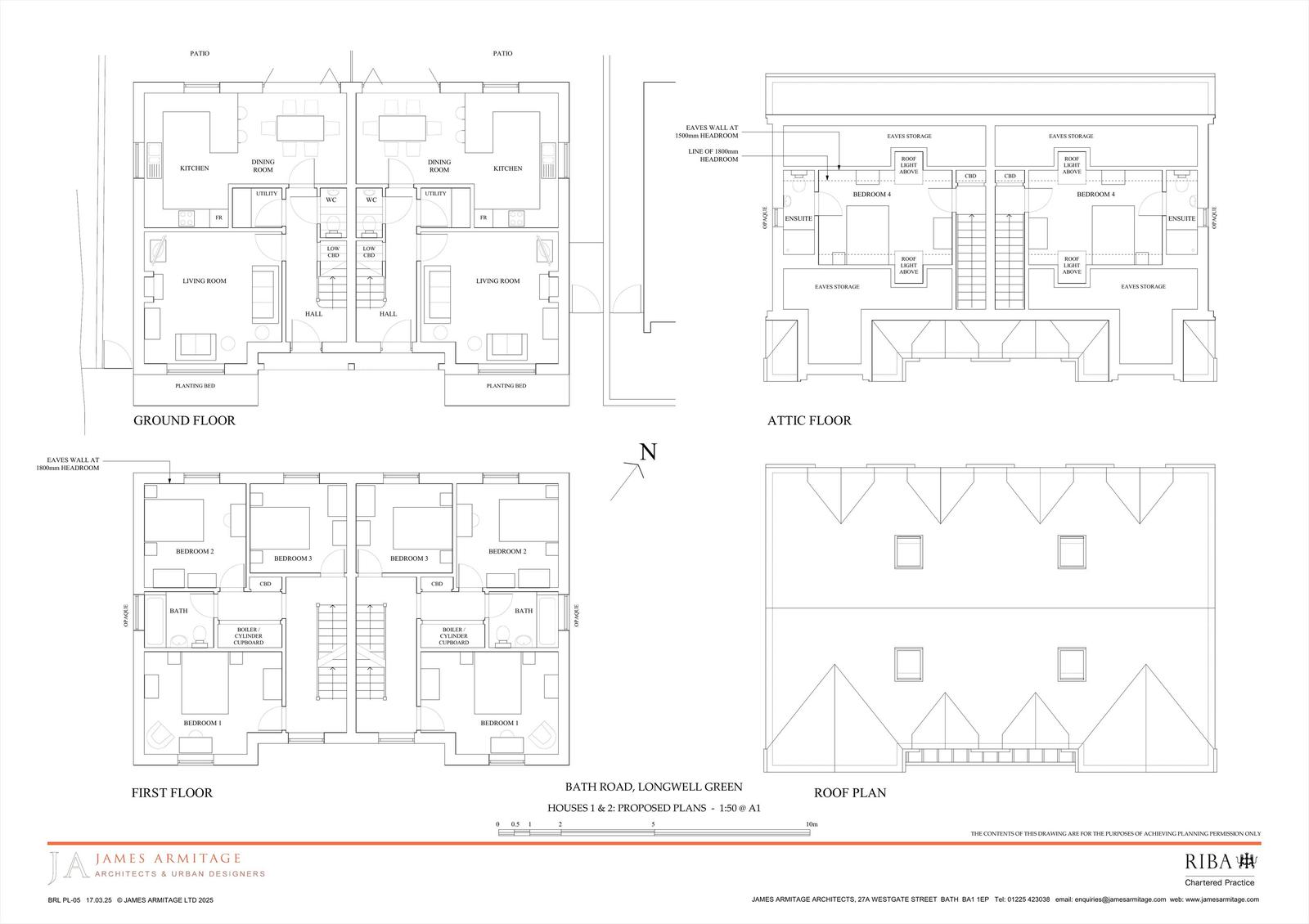
HOUSES 1 AND 1 PROPOSED ELEVATIONS AND SECTION
Plan
Not yet archived · Original link
LOCATION PLAN
Plan
Not yet archived · Original link
MISS LAURA TURNER
Consultee Comment
Not yet archived · Original link
PRELIMINARY ECOLOGY APPRAISAL
Supporting Document
Not yet archived · Original link
Supporting Document
Archived · Original link
SITE SECTIONS
Plan
Not yet archived · Original link

Have your say

Your comment matters. Councils must consider every representation that raises material planning considerations.

Write a comment