← South Gloucestershire Council

Status

Awaiting decision Change of use
Received
10 Jun 2025
New homes
2

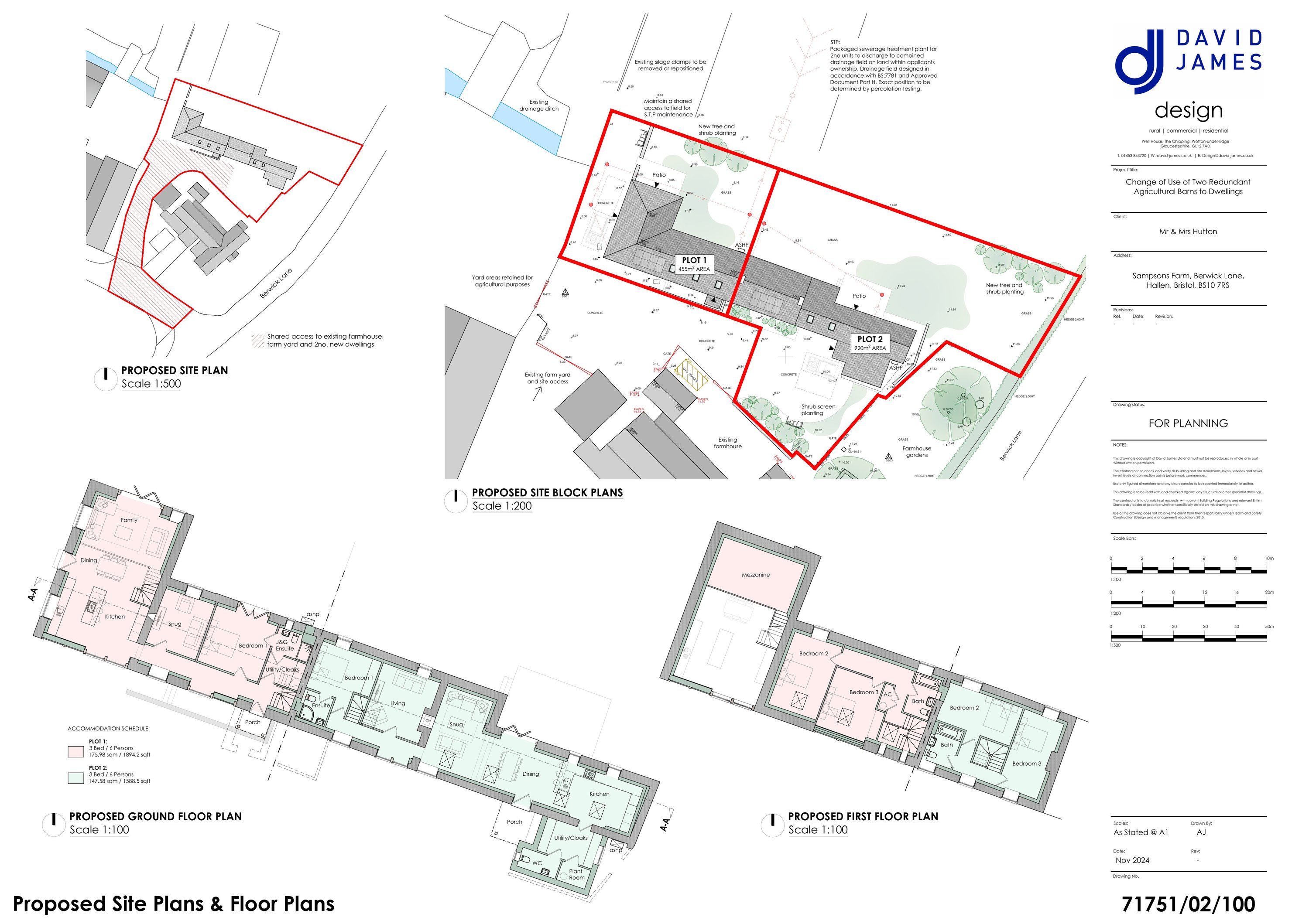
Summary

Change of use from agricultural to two self-build dwellings (Class C3).

Full proposal

Change of Use from agricultural to 2no. self-build dwellings (Class C3) as defined in the Town and Country Planning (Use Classes) Order 1987 (as amended).

Documents

ALMONDSBURY PARISH COUNCIL
Consultee Comment
Not yet archived · Original link
APPLICATION FORM - WITHOUT PERSONAL DATA
Application Form
Not yet archived · Original link
BNG ASSESSMENT
Supporting Document
Not yet archived · Original link
BNG BASELINE
Supporting Document
Not yet archived · Original link
BNG METRIC
Supporting Document
Not yet archived · Original link
BNG PLAN
Supporting Document
Not yet archived · Original link
CIL ADDITIONAL INFO
Supporting Document
Not yet archived · Original link
CONTAMINATED LAND
Consultee Comment
Not yet archived · Original link
DESIGN AND ACCESS STATEMENT
Supporting Document
Not yet archived · Original link
EXISTING FLOOR PLANS & SECTIONS
Plan
Not yet archived · Original link
MISS LAURA TURNER
Consultee Comment
Not yet archived · Original link
MR PAUL JOHNSON SGC TRANSPORT DEVELOPMENT CONTROL
Consultee Comment
Not yet archived · Original link
NATIONAL GAS
Consultee Comment
Not yet archived · Original link
NATIONAL GRID
Consultee Comment
Not yet archived · Original link
PRELIMINARY ECOLOGICAL APPRAISAL
Supporting Document
Not yet archived · Original link
PROPOSED ELEVATIONS
Plan
Not yet archived · Original link
SELF-BUILD OFFICER
Consultee Comment
Not yet archived · Original link
SGC DRAINAGE OFFICER
Consultee Comment
Not yet archived · Original link
SGC MWINYI
Consultee Comment
Not yet archived · Original link
STRUCTURAL SURVEY
Supporting Document
Not yet archived · Original link

Have your say

Your comment matters. Councils must consider every representation that raises material planning considerations.

Write a comment