← Back to South Gloucestershire Council
Application
P25/01664/F
South Gloucestershire Council · IDOX
Status
Awaiting decision
New housing
Received
07 Jul 2025
New dwellings
4
What you can do
Take Action
Make your voice heard. Authorities need to hear from people who support new homes.
Summary
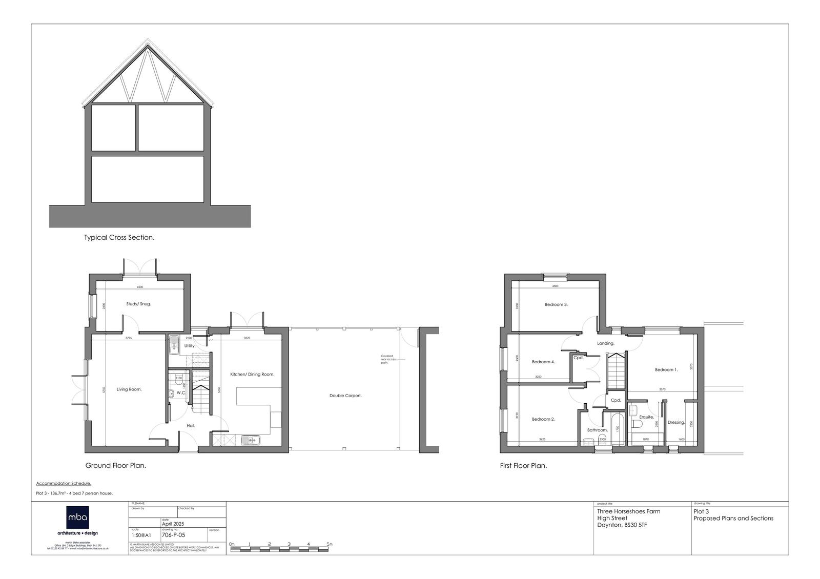
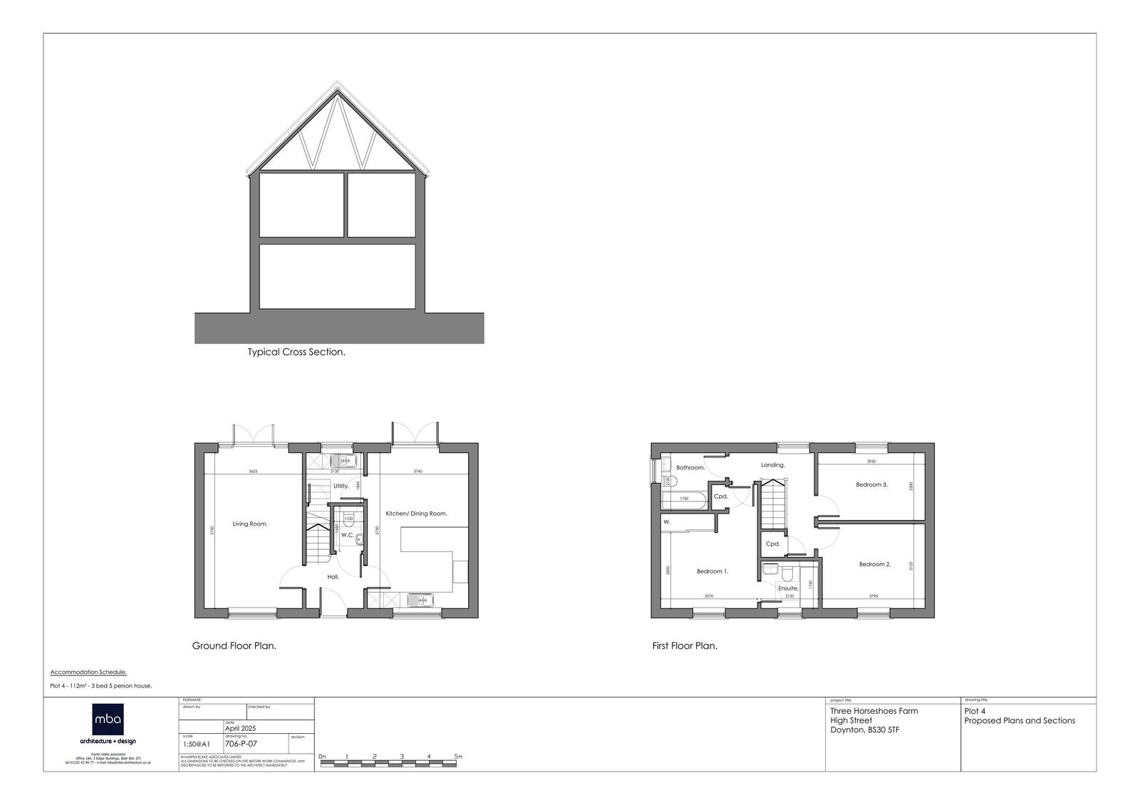
Demolish agricultural buildings and erect four dwellings with associated works.
Full Proposal
Demolition of existing agricultural buildings and erection of 4no. dwellings with associated works.
Detail pages
- View live detail on council site
- No archived detail page available.
Documents
ACCESS TECHNICAL NOTE
Supporting Document
Not downloaded
· Council link
AGENT - CHRIS DANCE
Correspondence
Not downloaded
· Council link
APPLICATION FORM - WITHOUT PERSONAL DATA
Application Form
Not downloaded
· Council link
ARBORICULTURAL REPORT
Supporting Document
Not downloaded
· Council link
BIODIVERSITY METRIC CALCULATION TOOL
Superseded Document
Not downloaded
· Council link
BIODIVERSITY NET GAIN PLAN
Superseded Document
Not downloaded
· Council link
BIODIVERSITY NET GAIN REPORT
Supporting Document
Not downloaded
· Council link
COVERING LETTER
Correspondence
Not downloaded
· Council link
DOYNTON PARISH COUNCIL DOYNTON PARISH COUNCIL-SUPPORTS(FULL)
Public Comment
Not downloaded
· Council link
ECOLOGY - MISS REBECCA BROWN
Consultee Comment
Not downloaded
· Council link
ECOLOGY - MISS REBECCA BROWN
Consultee Comment
Not downloaded
· Council link
ENV. PROT. (NOISE) - NEIL HIGGS
Consultation Replies
Not downloaded
· Council link
ENV. PROT. -CONTAMINATED LAND
Consultee Comment
Not downloaded
· Council link
EXISTING BUILDING FLOOR AREAS
Plan
Not downloaded
· Council link
HERITAGE, DESIGN & ACCESS STATEMENT
Supporting Document
Not downloaded
· Council link
HIGHWAY STRUCTURES - SGC MWINYI
Consultee Comment
Not downloaded
· Council link
HOUSING ENABLING OFFICER - LOIS TAYLOR
Consultee Comment
Not downloaded
· Council link
LANDSCAPE - MRS JANE JARVIS
Consultee Comment
Not downloaded
· Council link
LISTING DETAILS
Other
Not downloaded
· Council link
LOCATION PLAN
Plan
Not downloaded
· Council link
LOCATION PLAN SHOWING EXTENT OF ADOPTED HIGHWAY
Plan
Not downloaded
· Council link
MR JOHN BARTRAM-SUPPORTS
Support Comment
Not downloaded
· Council link
MRS K HAYES SGC PUBLIC RIGHTS OF WAY OFFICER
Consultee Comment
Not downloaded
· Council link
MRS KAREN KING-SUPPORTS
Support Comment
Not downloaded
· Council link
MRS RACHEL TROTT-SUPPORTS
Support Comment
Not downloaded
· Council link
PHASE 1 SITE INVESTIGATION
Supporting Document
Not downloaded
· Council link
PHASE 1 SITE INVESTIGATION-APPENDIX B - PART 1
Supporting Document
Not downloaded
· Council link
PHASE 1 SITE INVESTIGATION-APPENDIX B - PART 2
Supporting Document
Not downloaded
· Council link
PHASE 1 SITE INVESTIGATION-APPENDIX C
Supporting Document
Not downloaded
· Council link
Archived copy
· Council link
PLOT 3 PROPOSED ELEVATIONS
Plan
Not downloaded
· Council link
Archived copy
· Council link
PLOT 4 PROPOSED ELEVATIONS
Plan
Not downloaded
· Council link
Archived copy
· Council link
PLOTS 1 & 2 PROPOSED ELEVATIONS
Plan
Not downloaded
· Council link
Archived copy
· Council link
PRELIMINARY ECOLOGICAL APPRAISAL
Supporting Document
Not downloaded
· Council link
PROPOSED SITE PLAN
Plan
Archived copy
· Council link
REBUTTAL: TO CONSERVATION OFFICER COMMENTS
Supporting Document
Not downloaded
· Council link
SGC ARCHAEOLOGY ASSISTANT =- REBECCA DUMBLETON
Consultee Comment
Not downloaded
· Council link
SGC CONSERVATION OFFICER - ROB NICHOLSON
Consultee Comment
Not downloaded
· Council link
SGC DRAINAGE OFFICER - SCOTT JONES
Consultee Comment
Not downloaded
· Council link
Archived copy
· Council link
SGC TREE OFFICER
Consultee Comment
Not downloaded
· Council link
SITE SECTIONS A-A & B-B
Plan
Not downloaded
· Council link
SITE SECTIONS C-C AND D-D
Plan
Not downloaded
· Council link
STATUTORY BIODIVERSITY METRIC CALCULATION TOOL V2
Supporting Document
Not downloaded
· Council link
TOPOGRAPHICAL SURVEY
Plan
Not downloaded
· Council link
TRANSPORTATION OFFICER - CHRIS NICHOLS
Consultation Replies
Not downloaded
· Council link