← South Gloucestershire Council

Status

Awaiting decision New housing
Received
16 Jul 2025
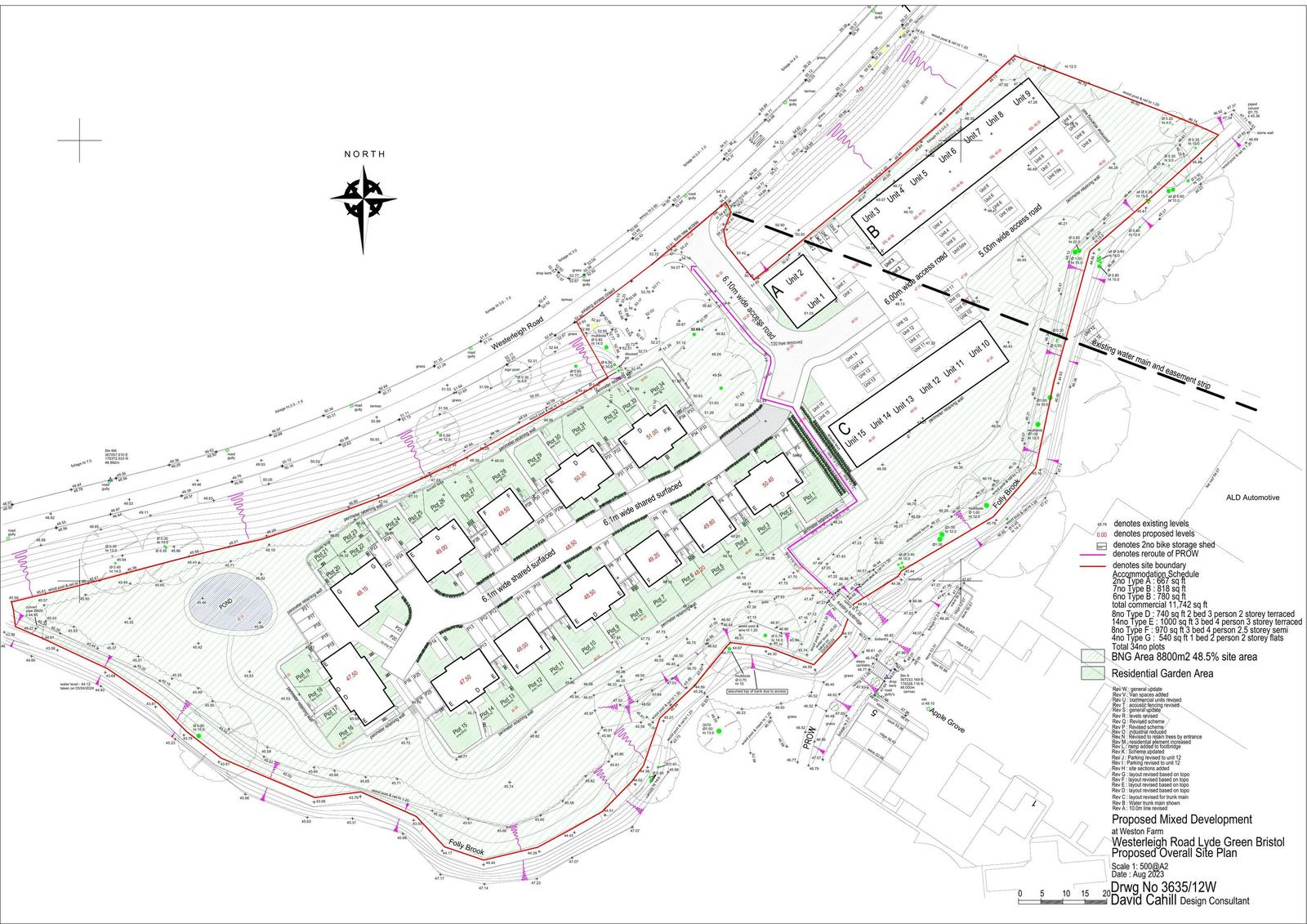
New homes
34

Full proposal

Mixed use development comprising erection of 3no flexible use buildings within Use Classes E (Commercial, Business and Service (g(i)(ii)(iii)) B2 and B8), facilitated by the erection of 34no. dwellings with associated access improvements, ground level alterations, drainage; and hard and soft landscape works.

Documents

AFFORDABLE HOUSING STATEMENT
Supporting Document
Not yet archived · Original link
AIR QUALITY ASSESSMENT
Supporting Document
Not yet archived · Original link
APPLICATION FORM - WITHOUT PERSONAL DATA
Application Form
Not yet archived · Original link
ARBORICULTURAL REPORT
Supporting Document
Not yet archived · Original link
AVON FIRE & RESCUE - LETTER
Consultation Replies
Not yet archived · Original link
AVON FIRE & RESCUE - PLAN
Consultation Replies
Not yet archived · Original link
BAT SURVEY REPORT
Supporting Document
Not yet archived · Original link
BIODIVERSITY METRIC CALCULATION TOOL
Supporting Document
Not yet archived · Original link
BIODIVERSITY NET GAIN DESIGN STAGE REPORT
Supporting Document
Not yet archived · Original link
BIODIVERSITY NET GAIN DESIGN STAGE REPORT
Supporting Document
Not yet archived · Original link
BREEDING BIRD SURVEY REPORT
Supporting Document
Not yet archived · Original link
CALCULATION OF DWELLING EMISSIONS
Supporting Document
Not yet archived · Original link
CALCULATION OF TARGET EMISSIONS
Supporting Document
Not yet archived · Original link
COAL MINING RISK ASSESSMENT
Supporting Document
Not yet archived · Original link
CRIME PREVENTION DESIGN ADVISOR
Consultation Replies
Not yet archived · Original link
CRIME PREVENTION DESIGN ADVISOR
Consultation Replies
Not yet archived · Original link
DORMOUSE SURVEY REPORT
Supporting Document
Not yet archived · Original link
EMERSONS GREEN TOWN COUNCIL
Consultee Comment
Not yet archived · Original link
ENVIRONMENT AGENCY
Consultation Replies
Not yet archived · Original link
ENVIRONMENT AGENCY
Consultation Replies
Not yet archived · Original link
ENVIRONMENTAL POLICY & CLIMATE CHANGE TEAM
Consultee Comment
Not yet archived · Original link
EXISTING SITE SECTION
Plan
Not yet archived · Original link
FOOTPATH DIVERSION
Plan
Not yet archived · Original link
FRAMEWORK TRAVEL PLAN
Supporting Document
Not yet archived · Original link
GREAT CRESTED NEWT SURVEY REPORT
Supporting Document
Not yet archived · Original link
HIGHWAY STRUCTURES
Consultee Comment
Not yet archived · Original link
ICOSA WATER
Consultation Replies
Not yet archived · Original link
ICOSA WATER
Consultation Replies
Not yet archived · Original link
LANDSCAPE STRATEGY
Plan
Not yet archived · Original link
LOCATION PLAN
Plan
Not yet archived · Original link
NATIONAL GAS
Consultation Replies
Not yet archived · Original link
NATIONAL GAS
Consultation Replies
Not yet archived · Original link
NATIONAL HIGHWAYS
Consultee Comment
Not yet archived · Original link
NATIONAL HIGHWAYS
Consultation Replies
Not yet archived · Original link
NATIONAL HIGHWAYS
Consultation Replies
Not yet archived · Original link
NOISE IMPACT ASSESSMENT
Supporting Document
Not yet archived · Original link
OPEN SPACE ASSESSMENT
Supporting Document
Not yet archived · Original link
OUTPUT DOCUMENT
Supporting Document
Not yet archived · Original link
PART 1 OF 2-FLOOD RISK ASSESSMENT AND DRAINAGE STRATEGY REPORT
Supporting Document
Not yet archived · Original link
PART 2 -TRANSPORT STATEMENT
Supporting Document
Not yet archived · Original link
PART 2 OF 2-FLOOD RISK ASSESSMENT AND DRAINAGE STRATEGY REPORT
Supporting Document
Not yet archived · Original link
PHASE 1 ASSESSMENT OF LAND QUALITY
Supporting Document
Not yet archived · Original link
PLANNING & DESIGN STATEMENT
Supporting Document
Not yet archived · Original link
PLANNING OBLIGATIONS
Supporting Document
Not yet archived · Original link
PRELIMINARY ECOLOGICAL APPRAISAL
Supporting Document
Not yet archived · Original link
PROPOSED SITE SECTION
Plan
Not yet archived · Original link
REPTILE SURVEY REPORT
Supporting Document
Not yet archived · Original link
SAP CALCULATIONS-BUILDING ENERGY PERFORMANCE
Supporting Document
Not yet archived · Original link
SGC ARCHAEOLOGY ASSISTANT
Consultee Comment
Not yet archived · Original link
SGC COMMUNITY INFRASTRUCTURE
Consultee Comment
Not yet archived · Original link
SGC COMMUNITY INFRASTRUCTURE OFFICER
Consultee Comment
Not yet archived · Original link
SGC CONTAMINATED LAND
Consultee Comment
Not yet archived · Original link
SGC CONTAMINATED LAND
Consultee Comment
Not yet archived · Original link
SGC DRAINAGE OFFICER
Consultee Comment
Not yet archived · Original link
SGC DRAINAGE OFFICER
Consultee Comment
Not yet archived · Original link
SGC ECOLOGY OFFICER
Consultee Comment
Not yet archived · Original link
SGC ECONOMIC DEVELOPMENT
Consultee Comment
Not yet archived · Original link
SGC EDUCATION
Consultee Comment
Not yet archived · Original link
SGC HIGHWAY STRUCTURES
Consultee Comment
Not yet archived · Original link
SGC HOUSING ENABLING
Consultee Comment
Not yet archived · Original link
SGC HOUSING ENABLING
Consultee Comment
Not yet archived · Original link
SGC LANDSCAPE OFFICER
Consultee Comment
Not yet archived · Original link
SGC LIGHTING ENGINEER
Consultee Comment
Not yet archived · Original link
SGC PROW OFFICER
Consultee Comment
Not yet archived · Original link
SGC PUBLIC ART OFFICER
Consultee Comment
Not yet archived · Original link
SGC PUBLIC ART OFFICER
Consultee Comment
Not yet archived · Original link
SGC PUBLIC OPEN SPACE OFFICER
Consultee Comment
Not yet archived · Original link
SGC PUBLIC OPEN SPACE OFFICER
Consultee Comment
Not yet archived · Original link
SGC PUBLIC OPEN SPACE OFFICER
Consultee Comment
Not yet archived · Original link
SGC SELF-BUILD OFFICER
Consultee Comment
Not yet archived · Original link
SGC SELF-BUILD OFFICER
Consultee Comment
Not yet archived · Original link
SGC TRANSPORT DEVELOMENT CONTROL
Consultee Comment
Not yet archived · Original link
SGC TREE OFFICER
Consultee Comment
Not yet archived · Original link
SUSTAINABLE ENERGY STATEMENT
Supporting Document
Not yet archived · Original link
THE COAL AUTHORITY
Consultation Replies
Not yet archived · Original link
THE COAL AUTHORITY
Consultation Replies
Not yet archived · Original link
TRANSPORT STATEMENT-PART 1
Supporting Document
Not yet archived · Original link
WESTERLEIGH AND COALPIT HEATH PARISH COUNCIL-OBJECTS
Consultee Comment
Not yet archived · Original link

Have your say

Your comment matters. Councils must consider every representation that raises material planning considerations.

Write a comment