← Back to South Gloucestershire Council
Application
P25/01856/F
South Gloucestershire Council · IDOX
Status
Awaiting decision
New housing
Received
29 Jul 2025
New dwellings
4
What you can do
Take Action
Make your voice heard. Authorities need to hear from people who support new homes.
Summary
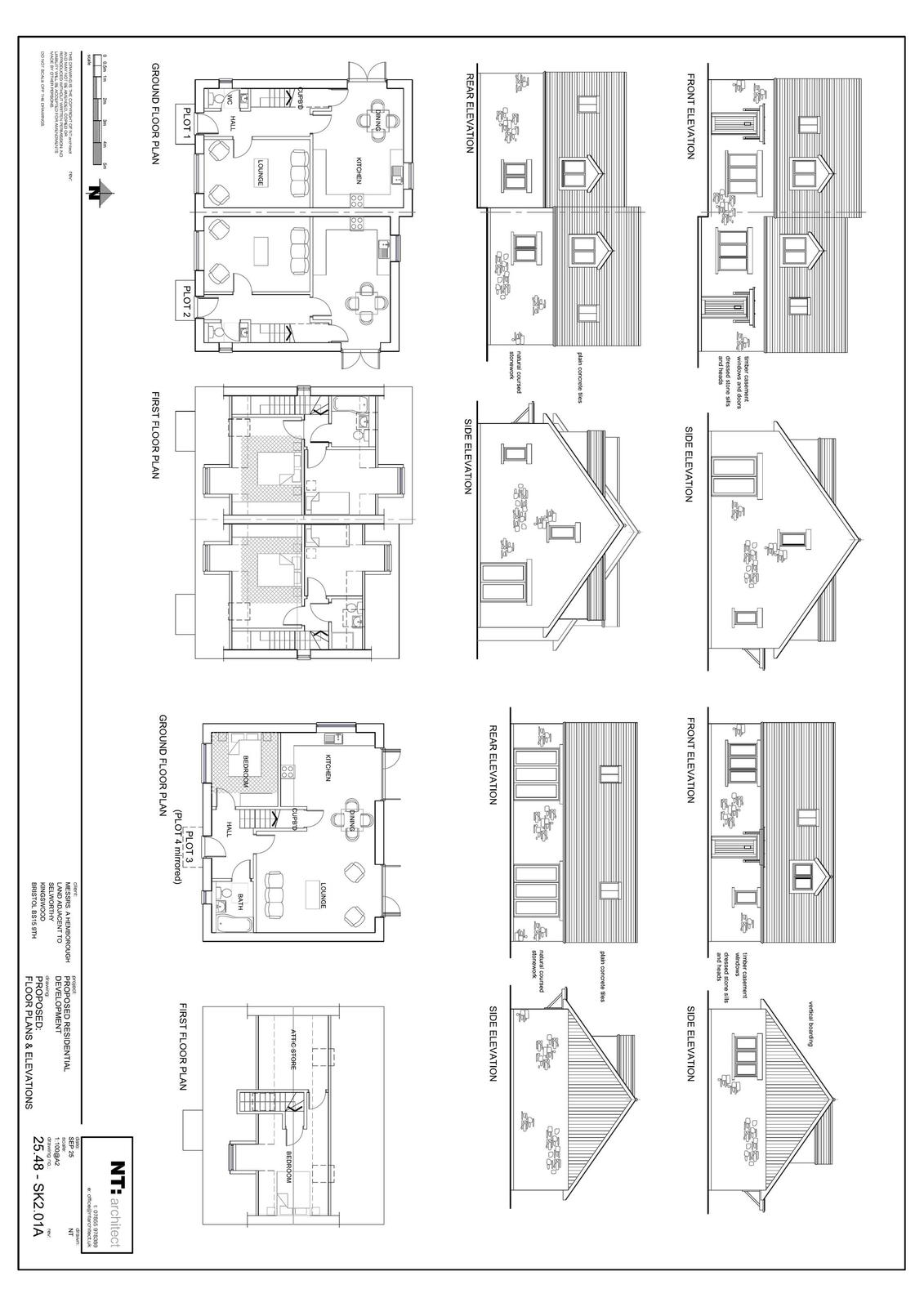
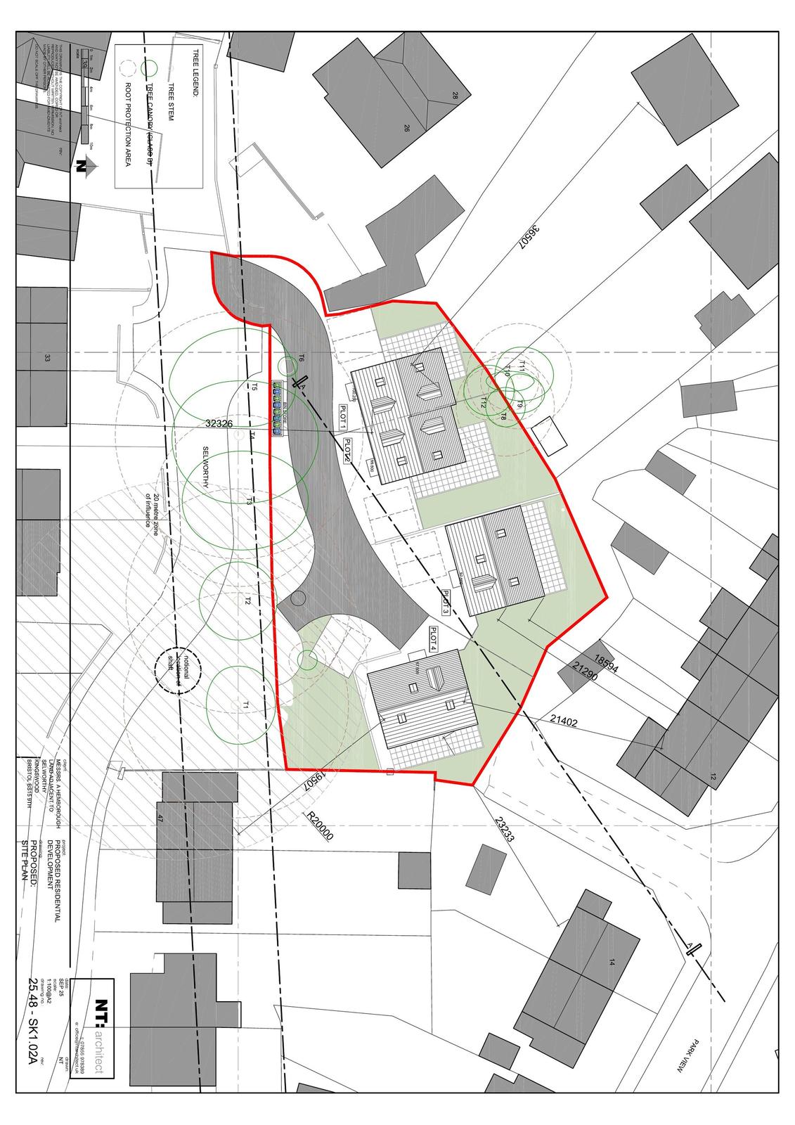
Erection of four dwellings with associated works.
Full Proposal
Erection of 4 no. dwellings with associated works.
Detail pages
- View live detail on council site
- No archived detail page available.
Documents
APPENDIX A TREE RETENTION CATEGORIES
Supporting Document
Not downloaded
· Council link
APPLICATION FORM - WITHOUT PERSONAL DATA
Application Form
Not downloaded
· Council link
ARBORICULTURAL IMPACT ASSESSMENT
Supporting Document
Not downloaded
· Council link
ARBORICULTURAL METHOD STATEMENT
Supporting Document
Not downloaded
· Council link
BNG METRIC
Supporting Document
Not downloaded
· Council link
COAL MINING RISK ASSESSMENT
Supporting Document
Not downloaded
· Council link
ECOLOGICAL APPRAISAL AND BIODIVERSITY NET GAIN
Supporting Document
Not downloaded
· Council link
ECOLOGIST
Consultee Comment
Not downloaded
· Council link
INITIAL SITE ACCESS SWEPT PATH ANALYSIS
Plan
Not downloaded
· Council link
PLANNING, DESIGN & ACCESS STATEMENT
Supporting Document
Not downloaded
· Council link
PROPOSED ACCESS ARRANGEMENTS
Plan
Not downloaded
· Council link
PROPOSED COMBINED PLOT 3 (SUPERSEDED)
Plan
Not downloaded
· Council link
PROPOSED COMBINED PLOT 4
Plan
Not downloaded
· Council link
PROPOSED COMBINED PLOTS 1 & 2 (SUPERSEDED)
Plan
Not downloaded
· Council link
Archived copy
· Council link
Archived copy
· Council link
PROPOSED SITE CONTEXT PLAN
Plan
Not downloaded
· Council link
PROPOSED SITE LAYOUT (SUPERSEDED)& SITE SECTION
Plan
Not downloaded
· Council link
Archived copy
· Council link
Archived copy
· Council link
PROPOSED SITE SECTIONS
Plan
Not downloaded
· Council link
RNS KINGSWOOD TOWN COUNCIL
Consultee Comment
Not downloaded
· Council link
SELWORTHY TURNING HEAD SWEPT PATH ANALYSIS
Plan
Not downloaded
· Council link
SGC DRAINAGE OFFICER
Consultee Comment
Not downloaded
· Council link
Archived copy
· Council link
SGC TRANSPORT DEVELOPMENT CONTROL
Consultation Replies
Not downloaded
· Council link
SGC TREE OFFICER
Consultee Comment
Not downloaded
· Council link
SGC TREE OFFICER-LB
Consultee Comment
Not downloaded
· Council link
Archived copy
· Council link
THE COAL AUTHORITY
Consultee Comment
Not downloaded
· Council link
THE COAL AUTHORITY
Consultee Comment
Not downloaded
· Council link
TRANSPORT DC
Consultee Comment
Not downloaded
· Council link
TREE PROTECTION PLAN
Supporting Document
Not downloaded
· Council link
TREE PROTECTION PLAN
Supporting Document
Not downloaded
· Council link
TREE SURVEY
Supporting Document
Not downloaded
· Council link
TREES-2012 ASSESSMENT
Supporting Document
Not downloaded
· Council link