← South Gloucestershire Council

Status

Awaiting decision Change of use
Received
18 Aug 2025
New homes
1

Full proposal

Change of Use from agricultural to 1no. self build dwelling (Class C3) as defined in the Town and Country Planning (Use Classes) Order 1987 (as amended). Installation of 1no. ASHP.

Documents

APPLICATION FORM - WITHOUT PERSONAL DATA
Application Form
Not yet archived · Original link
BAT MONITORING SURVEY REPORT
Supporting Document
Not yet archived · Original link
BATS TECHNICAL NOTE
Supporting Document
Not yet archived · Original link
BATS TECHNICAL NOTE
Supporting Document
Not yet archived · Original link
CIRCULATED REPORT
Report
Not yet archived · Original link
CONSERVATION ROOFLIGHT DETAIL + VENTS AND FLUE
Plan
Not yet archived · Original link
CONTAMINATED LAND
Consultee Comment
Not yet archived · Original link
DESIGN AND ACCESS STATEMENT
Supporting Document
Not yet archived · Original link
DOOR DETAILS: ED01
Plan
Not yet archived · Original link
DOOR DETAILS: ED02 & ED03
Plan
Not yet archived · Original link
DOOR DETAILS: ED04 & ED12
Plan
Not yet archived · Original link
DOOR DETAILS: ED06
Plan
Not yet archived · Original link
DOOR DETAILS: ED07
Plan
Not yet archived · Original link
DOOR DETAILS: ED08, ED09, ED10
Plan
Not yet archived · Original link
DRAWING REGISTER
Supporting Document
Not yet archived · Original link
EXISTING ELEVATONS
Plan
Not yet archived · Original link
EXISTING FLOOR PLAN
Plan
Not yet archived · Original link
FINISHES SCHEDULE-INTERNAL
Plan
Not yet archived · Original link
HERITAGE STATEMENT
Supporting Document
Not yet archived · Original link
LISTING DETAILS
Other
Not yet archived · Original link
LOCATION PLAN
Plan
Not yet archived · Original link
MISS LILY GILBERT
Consultee Comment
Not yet archived · Original link
MR BENJAMIN BURNELL
Consultee Comment
Not yet archived · Original link
MR PAUL JOHNSON SGC TRANSPORT DEVELOPMENT CONTROL
Consultee Comment
Not yet archived · Original link
PROPOSED ELEVATIONS
Revised Plan
Not yet archived · Original link
PROPOSED ELEVATONS
Plan
Not yet archived · Original link
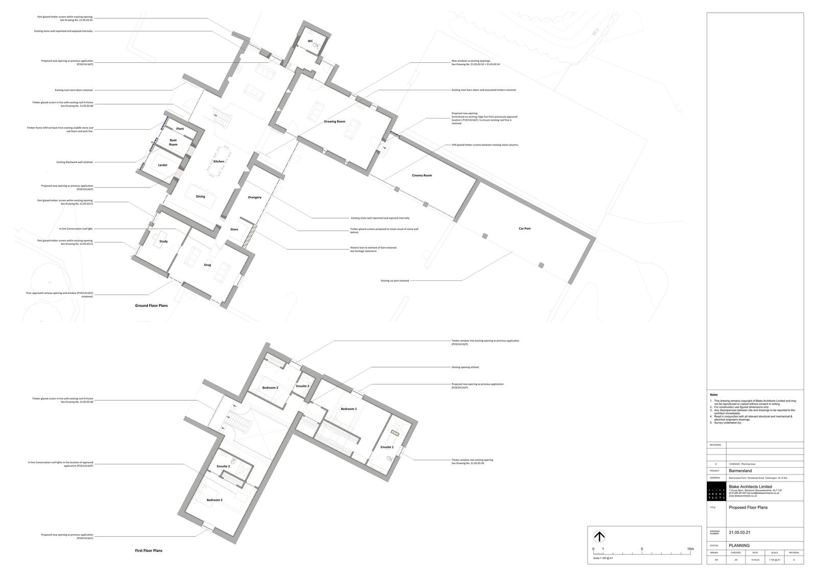
PROPOSED FLOOR PLAN
Revised Plan
Not yet archived · Original link
SGC CONSERVATION OFFICER
Consultee Comment
Not yet archived · Original link
SGC CONSERVATION OFFICER
Consultee Comment
Not yet archived · Original link
SGC DRAINAGE OFFICER
Consultee Comment
Not yet archived · Original link
STANDARD ROOF AND FLOOR DETAILS
Plan
Not yet archived · Original link
STANDARD TIMBER CLADDING DETAILS
Plan
Not yet archived · Original link
STANDARD WALL DETAILS
Plan
Not yet archived · Original link
WINDOW AND DOOR SCHEDULE
Plan
Not yet archived · Original link
WINDOW DETAILS W01+W03
Plan
Not yet archived · Original link
WINDOW DETAILS W02+ W07
Plan
Not yet archived · Original link
WINDOW DETAILS W04 +W05, W06
Plan
Not yet archived · Original link
WINDOW DETAILS W08 + W09, W11, W13, W14
Plan
Not yet archived · Original link
WINDOW DETAILS W10
Plan
Not yet archived · Original link
WINDOW DETAILS W12 +W15
Plan
Not yet archived · Original link

Have your say

Your comment matters. Councils must consider every representation that raises material planning considerations.

Write a comment