← South Gloucestershire Council
P25/02182/HH
South Gloucestershire Council
Status
Awaiting decision
House extension
Received
16 Sep 2025
New homes
0
Full proposal
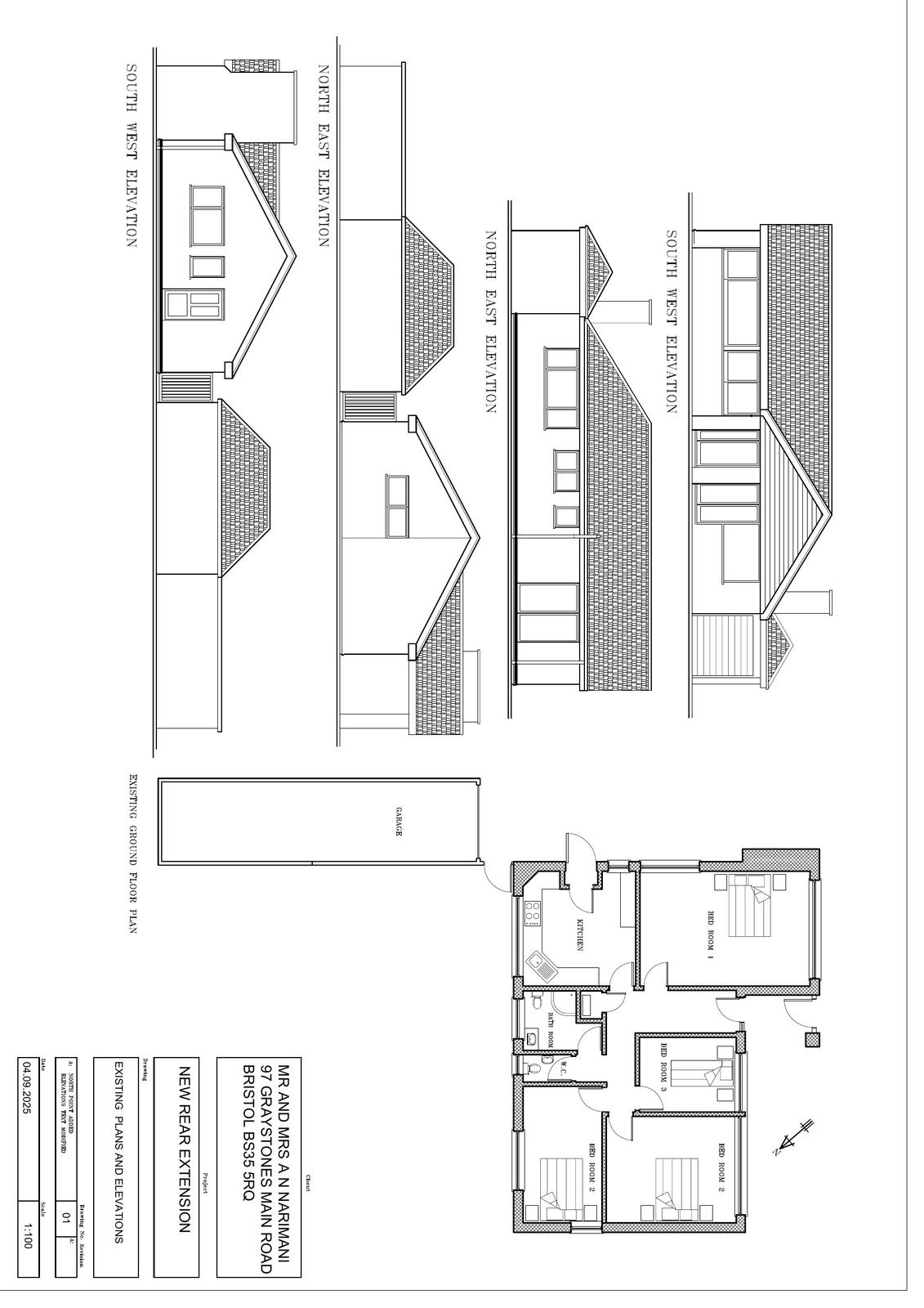
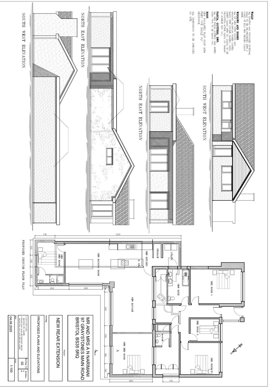
Erection of a single storey rear/side extension to form additional living accommodation (Part Retrospective).
Documents
Have your say
Your comment matters. Councils must consider every representation that raises material planning considerations.