← Back to South Gloucestershire Council

Status

Awaiting decision
Received 22 Sep 2025
New dwellings n/a

What you can do

Take Action

Make your voice heard. Authorities need to hear from people who support new homes.

Summary

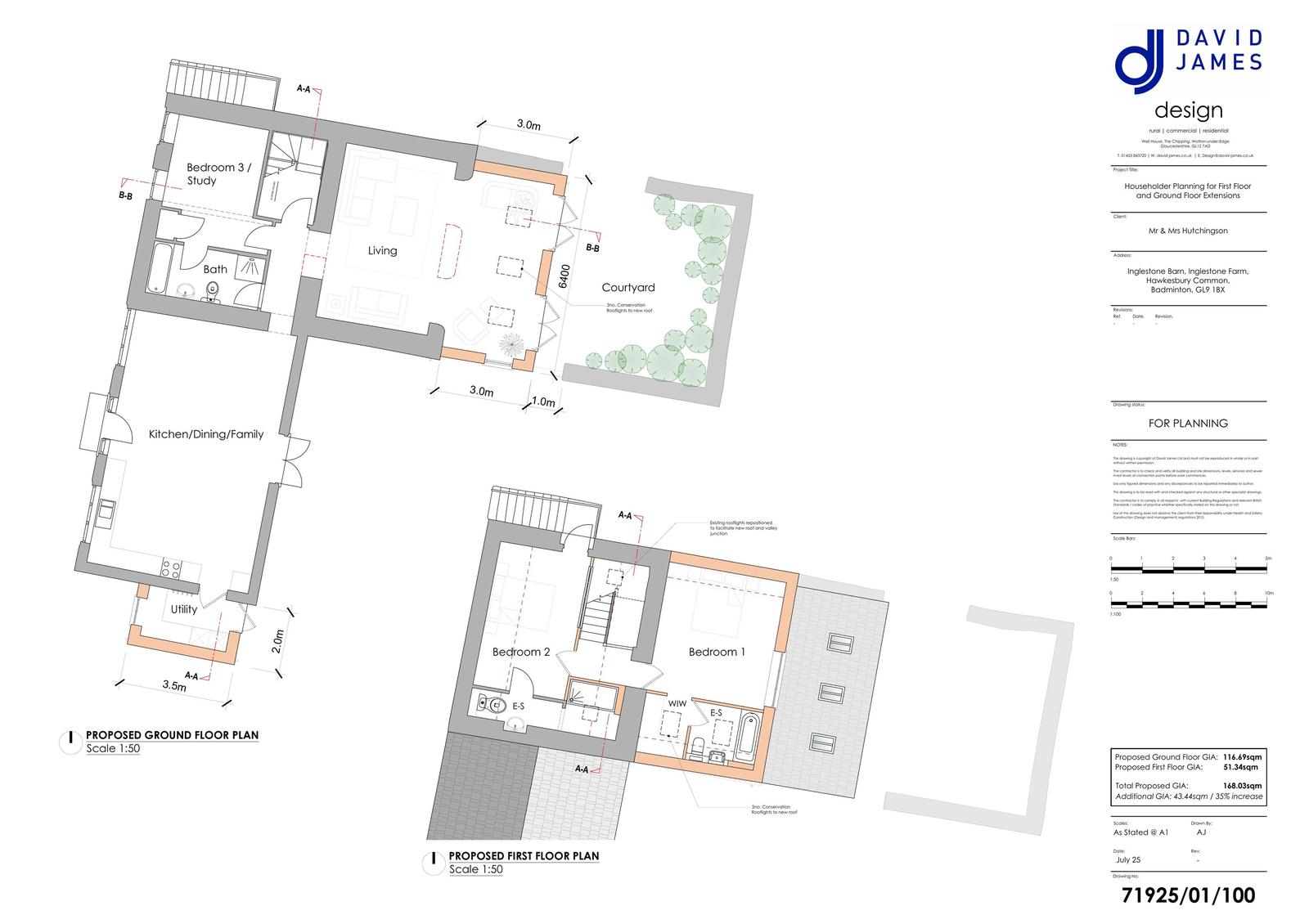
First-floor rear and single-storey side/rear extensions to convert holiday let to a residential dwelling.

Full Proposal

Erection of first floor rear extension and single storey side and rear extensions to facilitate conversion of Holiday Let to residential dwellinghouse (Class C3) with associated works.

Detail pages

Documents

APPLICATION FORM - WITHOUT PERSONAL DATA
Application Form
Not downloaded · Council link
EXISTING FLOOR PLANS
Plan
Not downloaded · Council link
HERITAGE DESIGN & ACCESS STATEMENT
Supporting Document
Not downloaded · Council link
MR CHRIS NICHOLS
Consultee Comment
Not downloaded · Council link
PRELIMINARY ROOST ASSESSMENT (PRA)
Supporting Document
Not downloaded · Council link
PROPOSED FLOOR PLANS
Plan
Archived copy · Council link
RNS HAWKESBURY PARISH COUNCIL
Consultee Comment
Not downloaded · Council link
SGC ARCHAEOLOGY ASSISTANT
Consultee Comment
Not downloaded · Council link
SGC CONSERVATION OFFICER
Consultee Comment
Not downloaded · Council link
SGC DRAINAGE OFFICER
Consultee Comment
Not downloaded · Council link
SGC ECOLOGY OFFICER
Consultee Comment
Not downloaded · Council link
SGC HIGHWAYS OFFICER
Consultee Comment
Not downloaded · Council link