← South Gloucestershire Council

Status

Awaiting decision New housing
Received
22 Sep 2025
New homes
9

Summary

Demolition of commercial buildings and erection of nine new dwellings with associated works.

Full proposal

Demolition of existing commercial buildings. Erection of 9 no. new dwellings with associated works.

Documents

1 OF 2 - SWEPT PATH ANALYSIS REFUSE VEHICLE (IN)
Plan
Not yet archived · Original link
2 OF 2 - SWEPT PATH ANALYSIS REFUSE VEHICLE
Plan
Not yet archived · Original link
APPLICATION FORM - WITHOUT PERSONAL DATA
Application Form
Not yet archived · Original link
BASELINE BIODIVERSITY GAIN PLAN
Plan
Not yet archived · Original link
BIODIVERSITY GAIN PLAN
Plan
Not yet archived · Original link
BIODIVERSITY METRIC CALCULATION TOOL
Supporting Document
Not yet archived · Original link
BIODIVERSITY NET GAIN REPORT
Supporting Document
Not yet archived · Original link
COMMUNITY INFRASTRUCTURE LEVY - COMPLETED FORM
Application Form
Not yet archived · Original link
CONTAMINATED LAND
Consultee Comment
Not yet archived · Original link
COVER EMAIL
Correspondence
Not yet archived · Original link
DRAINAGE MAINTENANCE PLAN
Supporting Document
Not yet archived · Original link
DRAINAGE STRATEGY REPORT
Supporting Document
Not yet archived · Original link
ECOLOGICAL APPRAISAL
Supporting Document
Not yet archived · Original link
ECOLOGICAL APPRAISAL
Supporting Document
Not yet archived · Original link
ECOLOGIST
Consultee Comment
Not yet archived · Original link
EXISTING BLOCK PLAN
Plan
Not yet archived · Original link
EXISTING FLOOR PLANS & ELEVATIONS - DEMOLITION
Plan
Not yet archived · Original link
HEDGEROW HABITAT TYPES
Supporting Document
Not yet archived · Original link
LAND CONTAMINATION ASSESSMENT
Supporting Document
Not yet archived · Original link
LANDSCAPE OFFICER (FINAL)
Consultation Replies
Not yet archived · Original link
LEAD LOCAL FLOOD AUTHORITY
Consultation Replies
Not yet archived · Original link
MR KEVIN WILKINSON
Consultee Comment
Not yet archived · Original link
MR SEAN MCINTYRE
Consultee Comment
Not yet archived · Original link
MRS ANGELA BENCE-WILKINS-NEUTRAL
Public Comment
Not yet archived · Original link
MS PUBLIC OPEN SPACE MST
Consultee Comment
Not yet archived · Original link
PERRINPIT FOUL CONNECTION
Supporting Document
Not yet archived · Original link
PLANNING STATEMENT
Supporting Document
Not yet archived · Original link
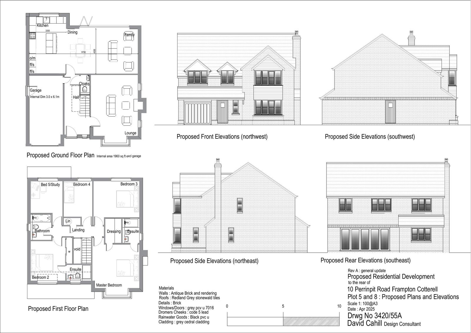
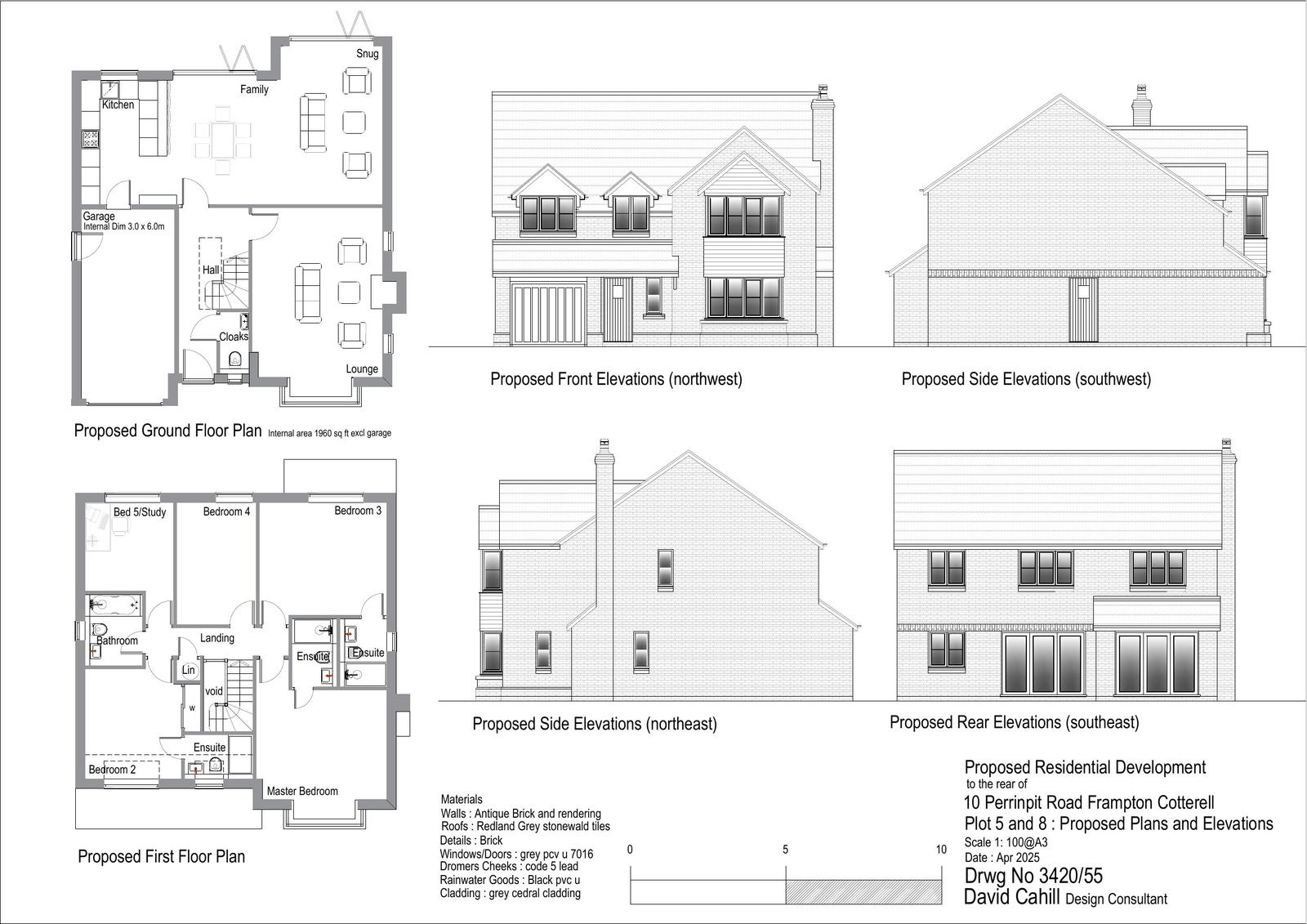
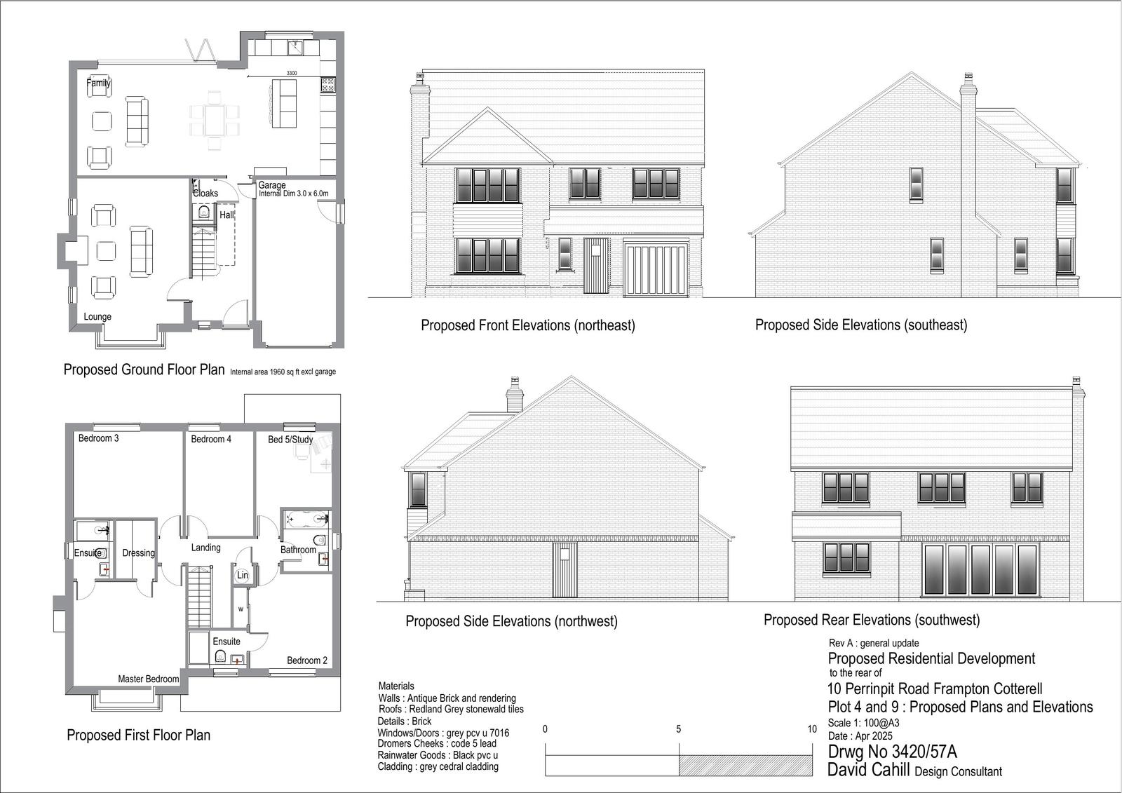
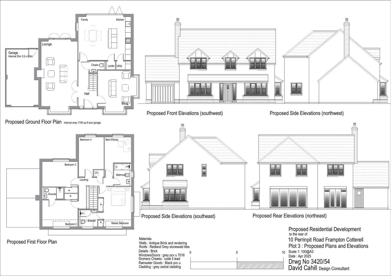
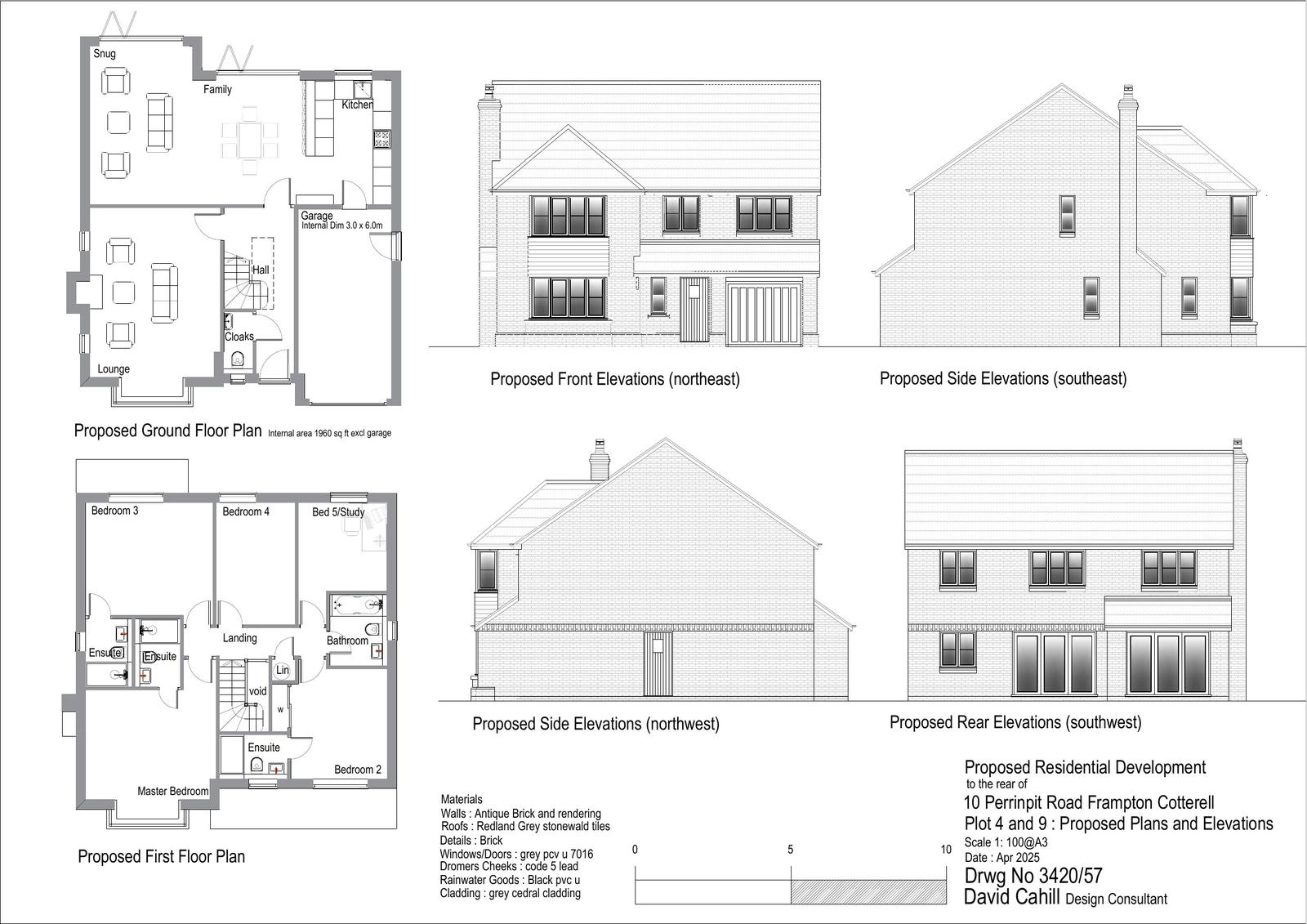
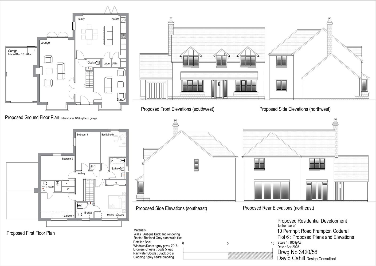
PLOT 1, 2 AND 7 : PROPOSED GARAGE PLANS AND ELEVATIONS
Plan
Not yet archived · Original link
PROPOSED BLOCK PLAN(SUPERSEDED)
Plan
Not yet archived · Original link
PROPOSED DITCH CONNECTION
Plan
Not yet archived · Original link
PROPOSED DITCH CONNECTION
Plan
Not yet archived · Original link
PROPOSED FOUNDATIONS
Plan
Not yet archived · Original link
Revised Plan
Archived · Original link
SGC DRAINAGE OFFICER
Consultee Comment
Not yet archived · Original link
SGC SENIOR ARCHAEOLOGIST
Consultee Comment
Not yet archived · Original link
SHEET NUMBER 1 OF 2 - SWEPT PATH ANALYSIS - FIRE TENDER (IN)
Plan
Not yet archived · Original link
SHEET NUMBER 2 OF 2 - SWEPT PATH ANALYSIS - FIRE TENDER (OUT)
Plan
Not yet archived · Original link
SITE SECTION PLAN
Plan
Not yet archived · Original link
SUSTAINABLE TRANSPORT TEAM
Consultee Comment
Not yet archived · Original link
SWEPT PATH ANALYSIS (CAR PARKING)
Plan
Not yet archived · Original link
SWEPT PATH ANALYSIS (REFUSE VEHICLE)
Plan
Not yet archived · Original link
TIME EXTENSION (AGENT)
Correspondence
Not yet archived · Original link
WESSEX WATER
Consultee Comment
Not yet archived · Original link
WESSEX WATER
Consultee Comment
Not yet archived · Original link
WWUTILITIES
Consultee Comment
Not yet archived · Original link

Have your say

Your comment matters. Councils must consider every representation that raises material planning considerations.

Write a comment