← South Gloucestershire Council
P25/02955/HH
South Gloucestershire Council
Status
Awaiting decision
House extension
Received
22 Dec 2025
New homes
0
Full proposal
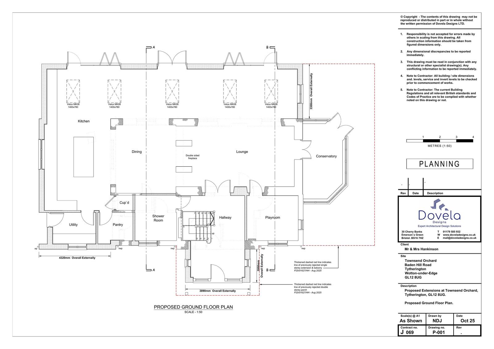
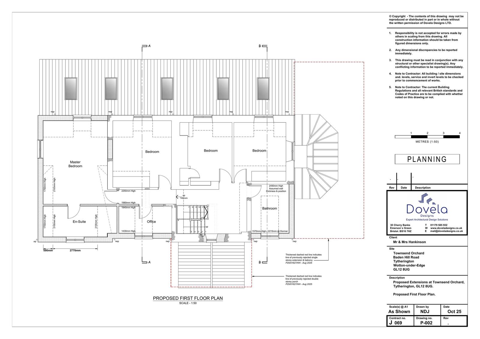
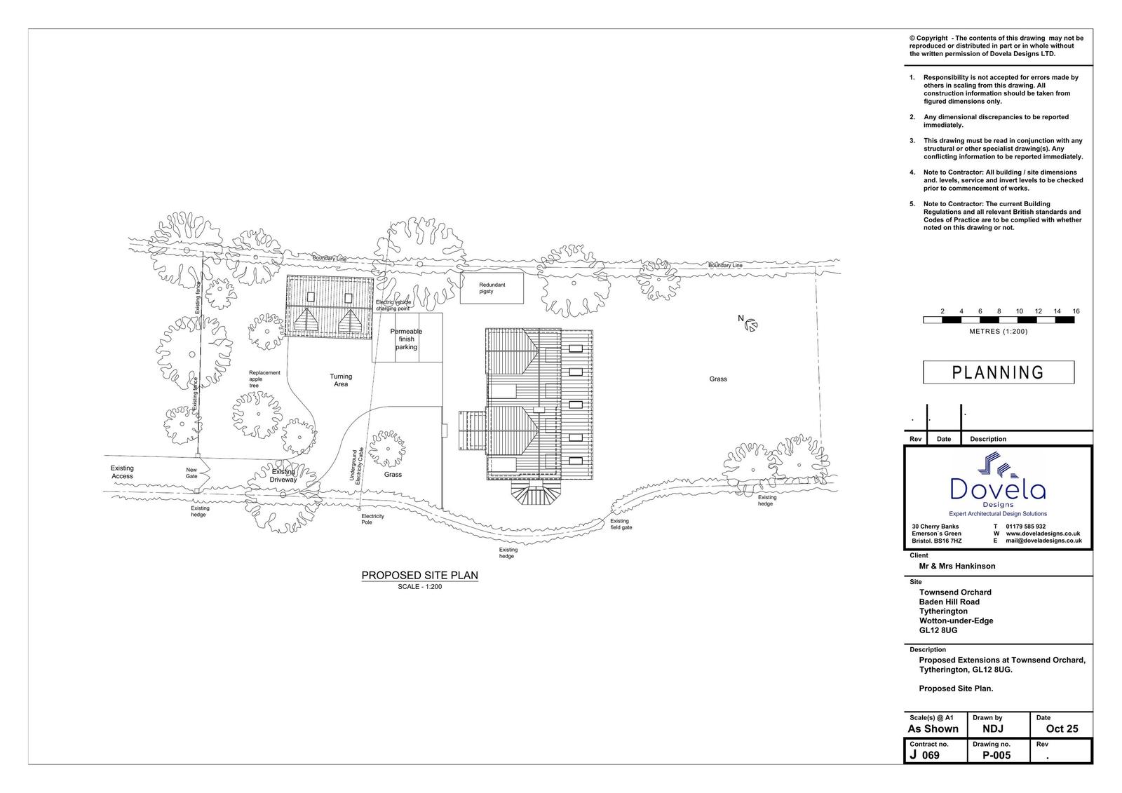
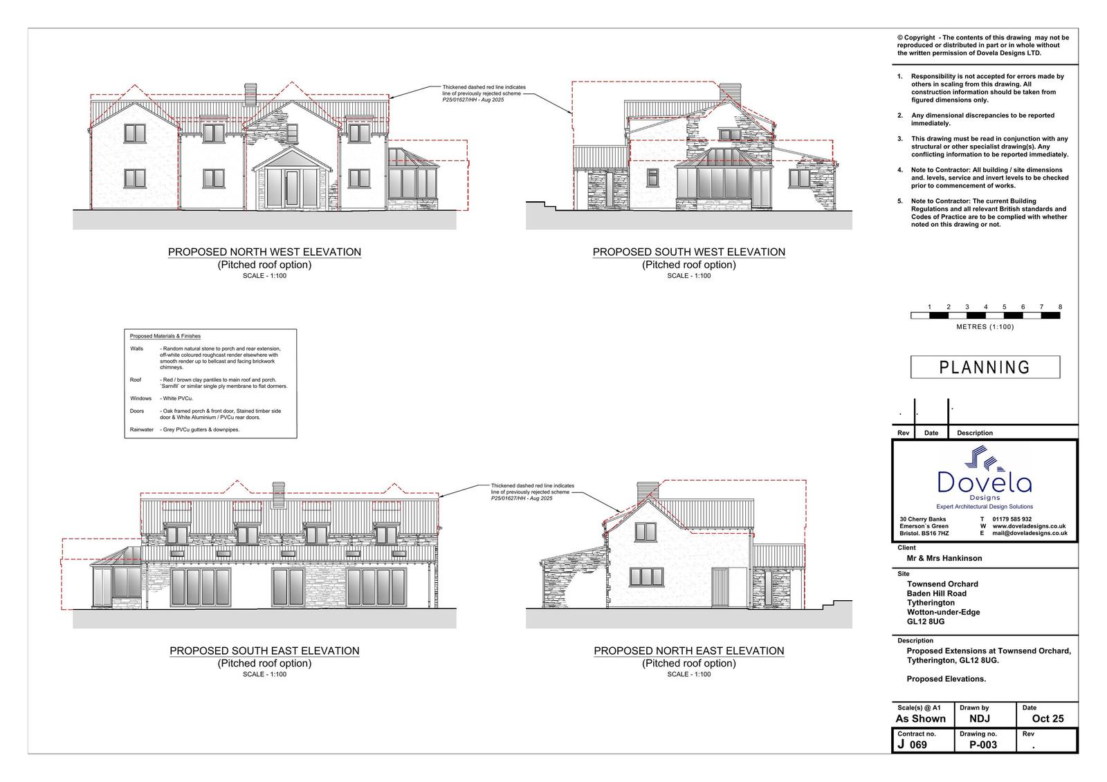
Erection of two storey side extension, front porch and alterations to existing roof to form additional living accommodation. Erection of 1no. detached double garage and workshop.
Documents
Have your say
Your comment matters. Councils must consider every representation that raises material planning considerations.