← South Gloucestershire Council

Status

Awaiting decision New housing
Received
22 Dec 2025
New homes
60

Full proposal

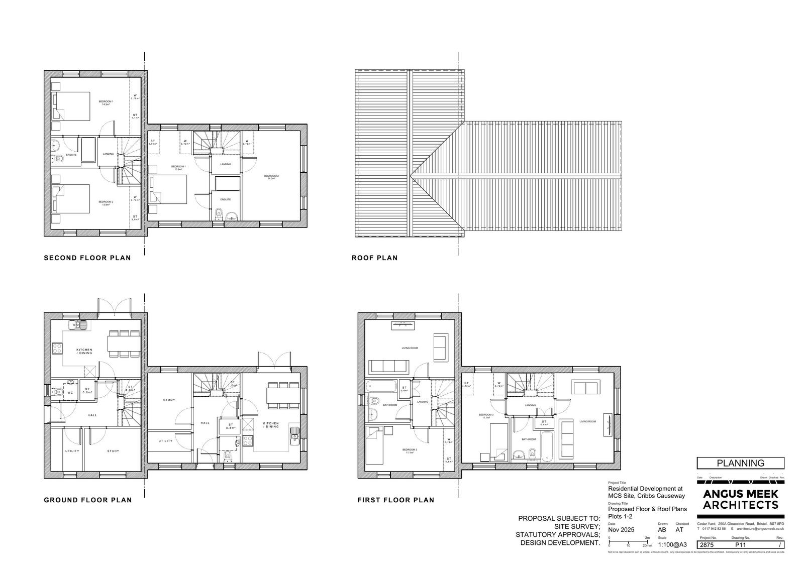
Erection of part three-part four storey building forming 52no. retirement living flats, with associated communal lounge, house managers office and communal refuse/recycling, electric buggy store, and associated car parking. Erection of 8no. dwellings with associated car parking and garages. Enlarged vehicular access onto Cribbs Causeway, substation, boundary treatment and hard and soft landscaping.

Documents

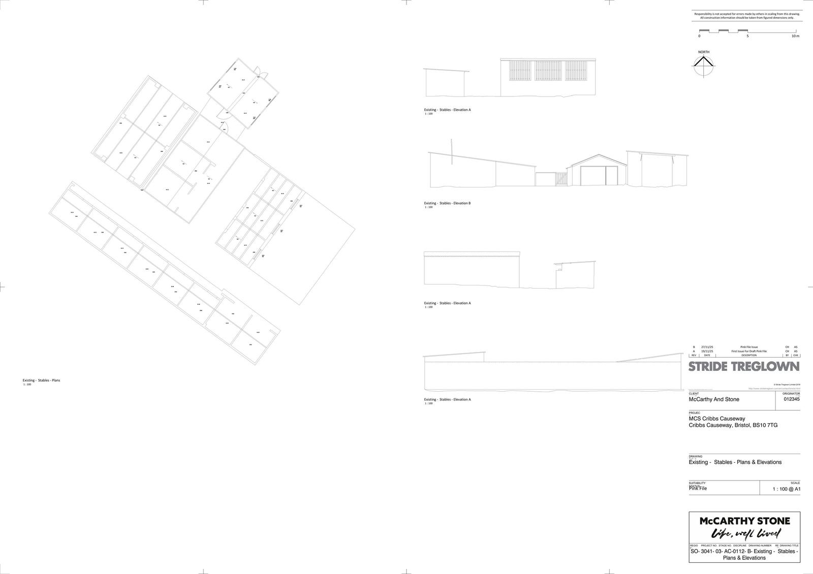
BOUNDARY TREATMENT PLAN
Plan
Not yet archived · Original link
Plan
Archived · Original link
Plan
Archived · Original link
KERB AND EDGING PLAN
Plan
Not yet archived · Original link
LANDSCAPE GA PLAN
Plan
Not yet archived · Original link
Supporting Document
Archived · Original link
Supporting Document
Archived · Original link
Supporting Document
Archived · Original link
Supporting Document
Archived · Original link
PLANTING STRATEGY PLAN
Plan
Not yet archived · Original link
Plan
Archived · Original link
Plan
Archived · Original link
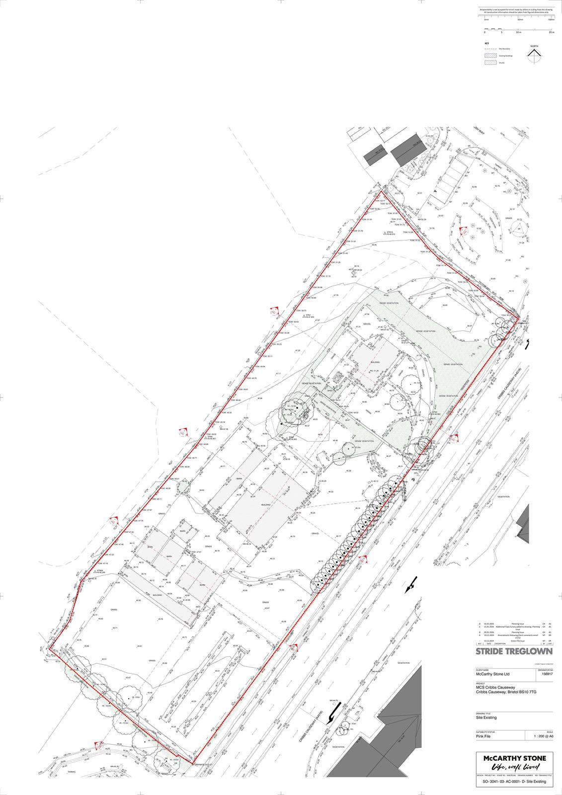
SITE PROPOSED PLAN
Plan
Not yet archived · Original link

Have your say

Your comment matters. Councils must consider every representation that raises material planning considerations.

Write a comment