← South Gloucestershire Council
P26/00138/HH
South Gloucestershire Council
Status
Awaiting decision
House extension
Received
21 Jan 2026
New homes
0
Full proposal
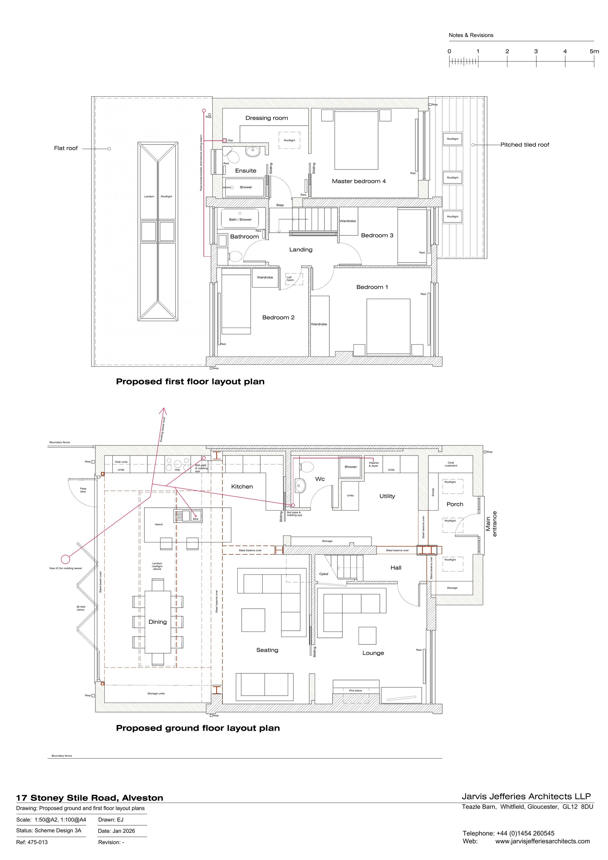
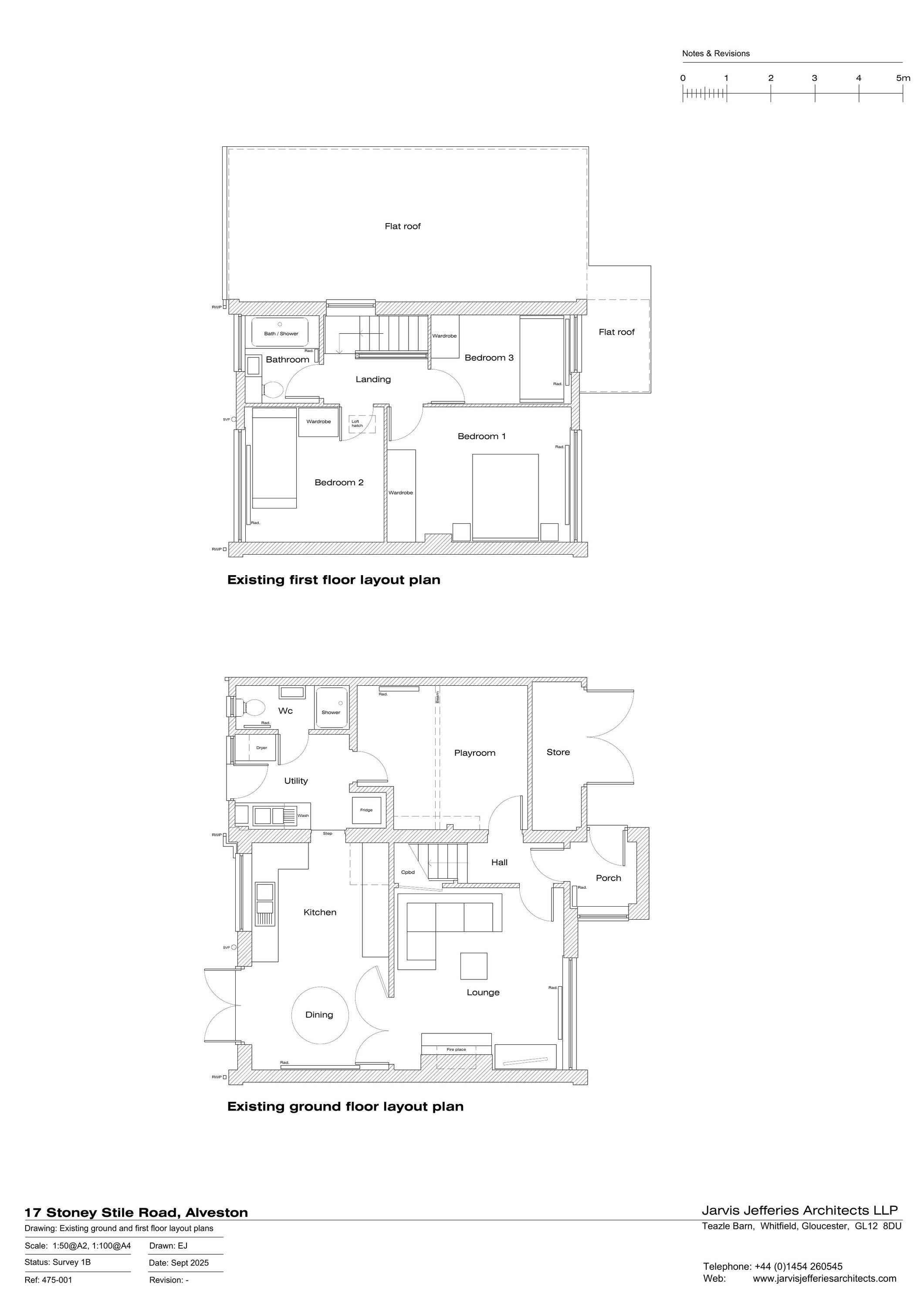
Erection of first floor side and single storey rear extension to form additional living accommodation. Alteration and extension to existing front porch.
Documents
Have your say
Your comment matters. Councils must consider every representation that raises material planning considerations.