← South Gloucestershire Council
P26/00150/HH
South Gloucestershire Council
Status
Awaiting decision
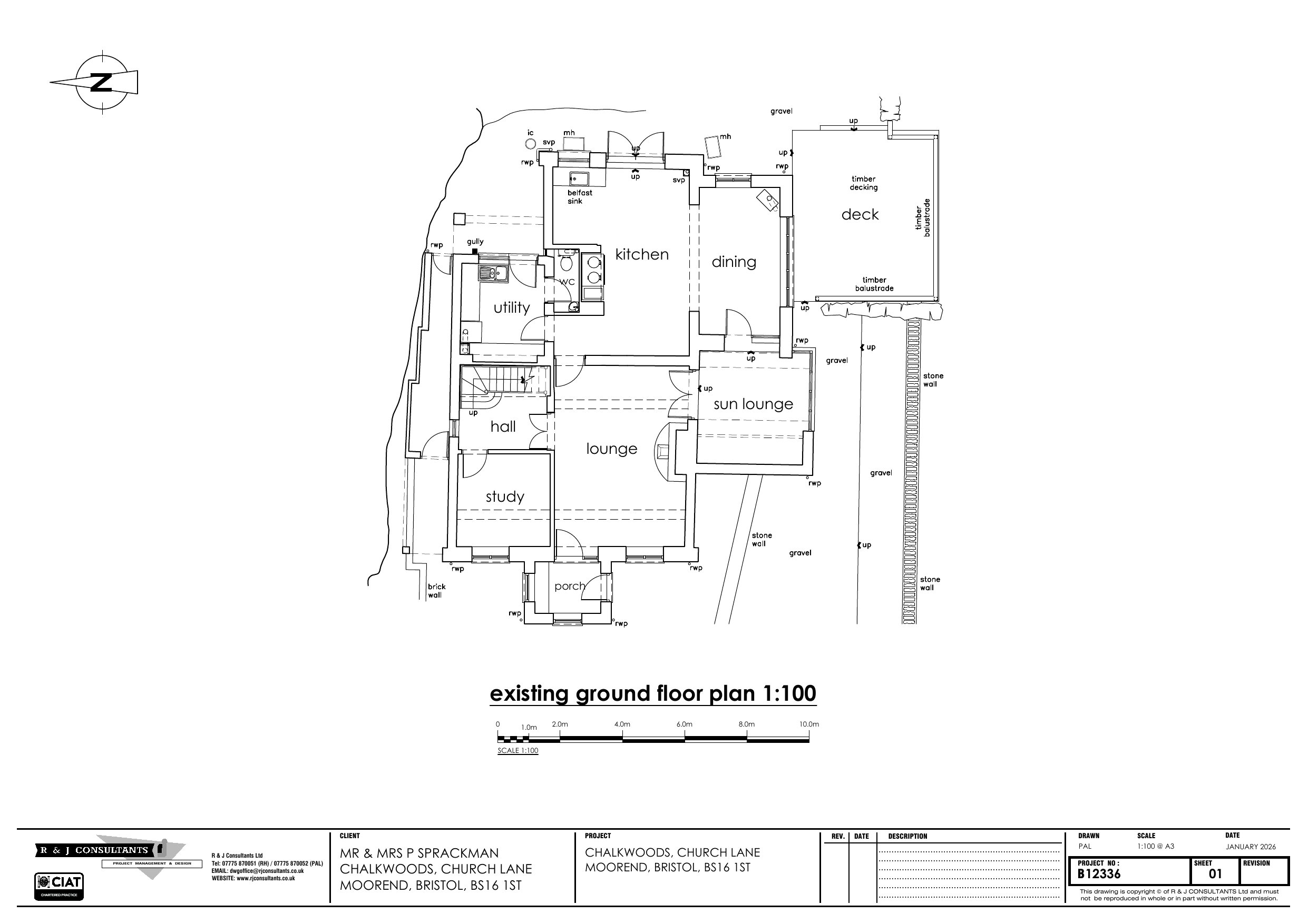
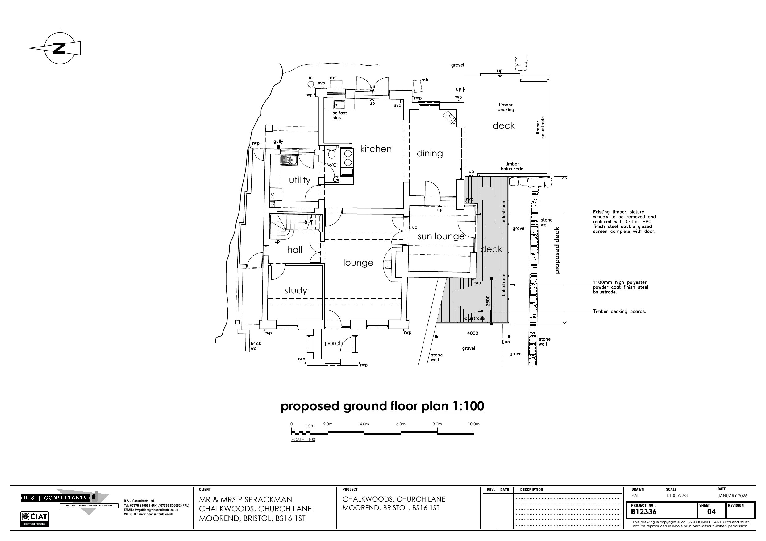
House extension
Received
22 Jan 2026
New homes
0
Full proposal
Erection of an extension to the existing timber raised deck.
Documents
Have your say
Your comment matters. Councils must consider every representation that raises material planning considerations.