← South Gloucestershire Council

Status

Awaiting decision Change of use
Received
05 Feb 2026
New homes
1

Full proposal

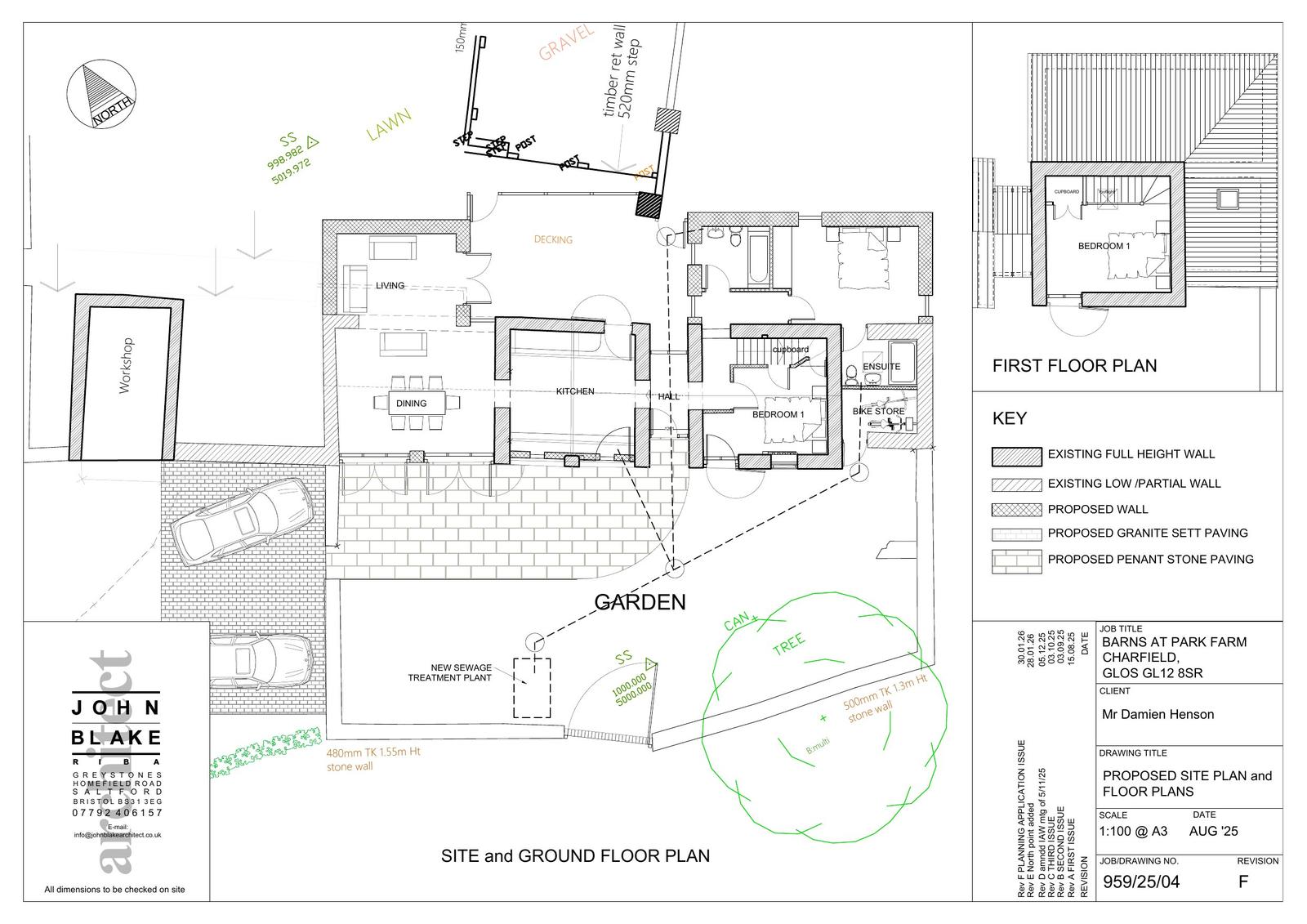
Erection of a single storey side/rear, rear and link extensions to facilitate change of use of 2no. barns (agricultural) to 1no. dwelling (Class C3) with associated works.

Documents

APPLICATION FORM - WITHOUT PERSONAL DATA
Application Form
Not yet archived · Original link
BAT SURVEY REPORT
Supporting Document
Not yet archived · Original link
BIODIVERSITY METRIC CALCULATION TOOL
Supporting Document
Not yet archived · Original link
BLOCK PLAN
Plan
Not yet archived · Original link
COVERING LETTER
Correspondence
Not yet archived · Original link
DESIGN AND ACCESS STATEMENT
Supporting Document
Not yet archived · Original link
EXISTING ELEVATIONS
Plan
Not yet archived · Original link
EXISTING UPPER FLOOR AND ROOF PLANS
Plan
Not yet archived · Original link
HERITAGE STATEMENT
Supporting Document
Not yet archived · Original link
LISTING DETAILS
Other
Not yet archived · Original link
LOCATION PLAN
Plan
Not yet archived · Original link
PRELIMINARY ECOLOGICAL APPRAISAL REPORT
Supporting Document
Not yet archived · Original link
PROPOSED ELEVATIONS
Plan
Not yet archived · Original link
RIDGE DETAIL
Plan
Not yet archived · Original link
STAIRCASE PLAN AND SECTION
Plan
Not yet archived · Original link
STRUCTURAL INSPECTION
Supporting Document
Not yet archived · Original link
VERGE DETAIL
Plan
Not yet archived · Original link
WINDOW, DOOR AND EAVES DETAILS
Plan
Not yet archived · Original link

Have your say

Your comment matters. Councils must consider every representation that raises material planning considerations.

Write a comment