← South Gloucestershire Council
P26/00292/F
South Gloucestershire Council
Status
Awaiting decision
New housing
Received
Last month
New homes
1
Full proposal
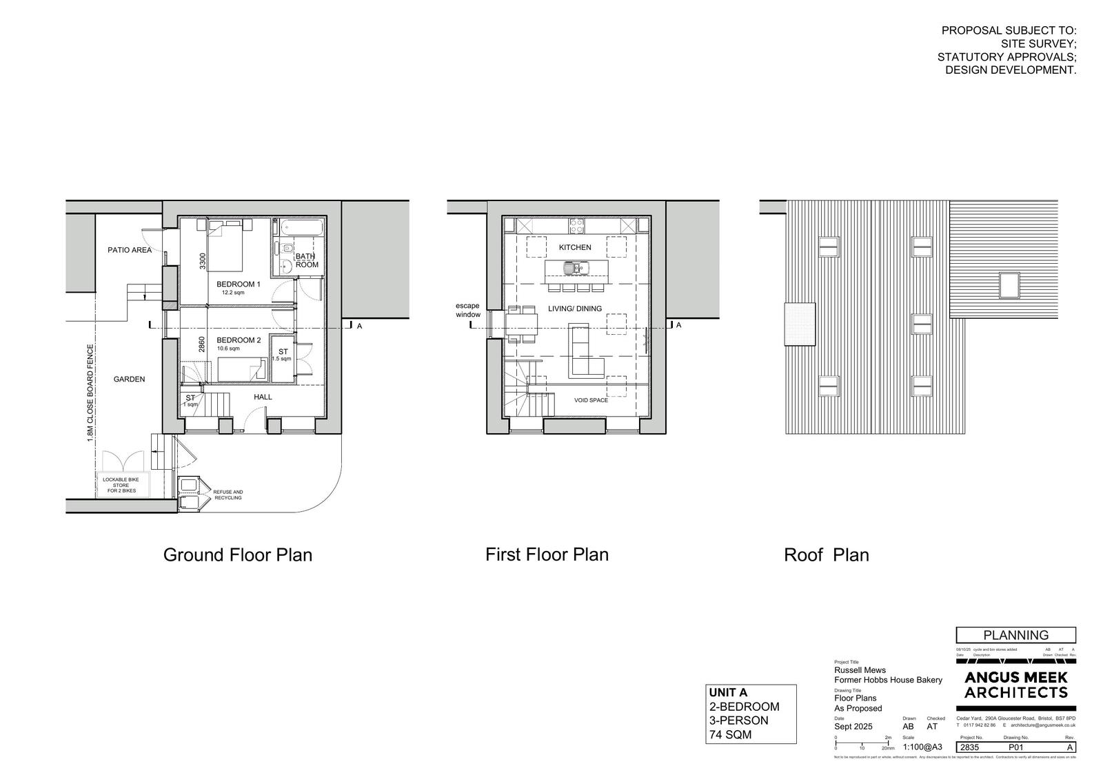
Installation of 1no dormer to south elevation and new windows and doors to facilitate the conversion of ancillary building to No. 39 High Street Chipping Sodbury to form 1no two-bedroom dwelling (Use Class C3) with associated landscaping and works.
Documents
Have your say
Your comment matters. Councils must consider every representation that raises material planning considerations.