← South Gloucestershire Council
P26/00526/HH
South Gloucestershire Council
Status
Awaiting decision
House extension
Received
Last month
New homes
0
Full proposal
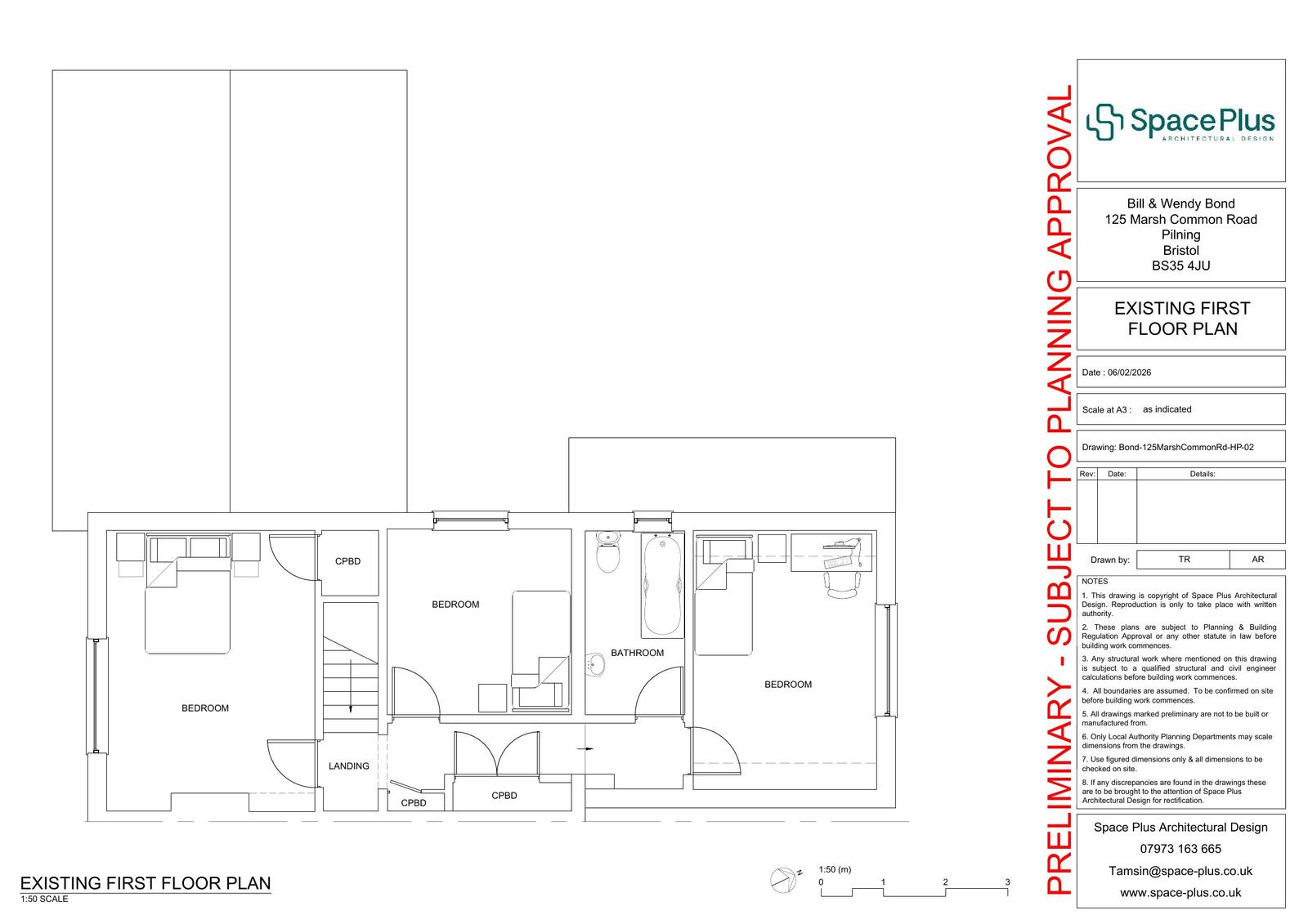
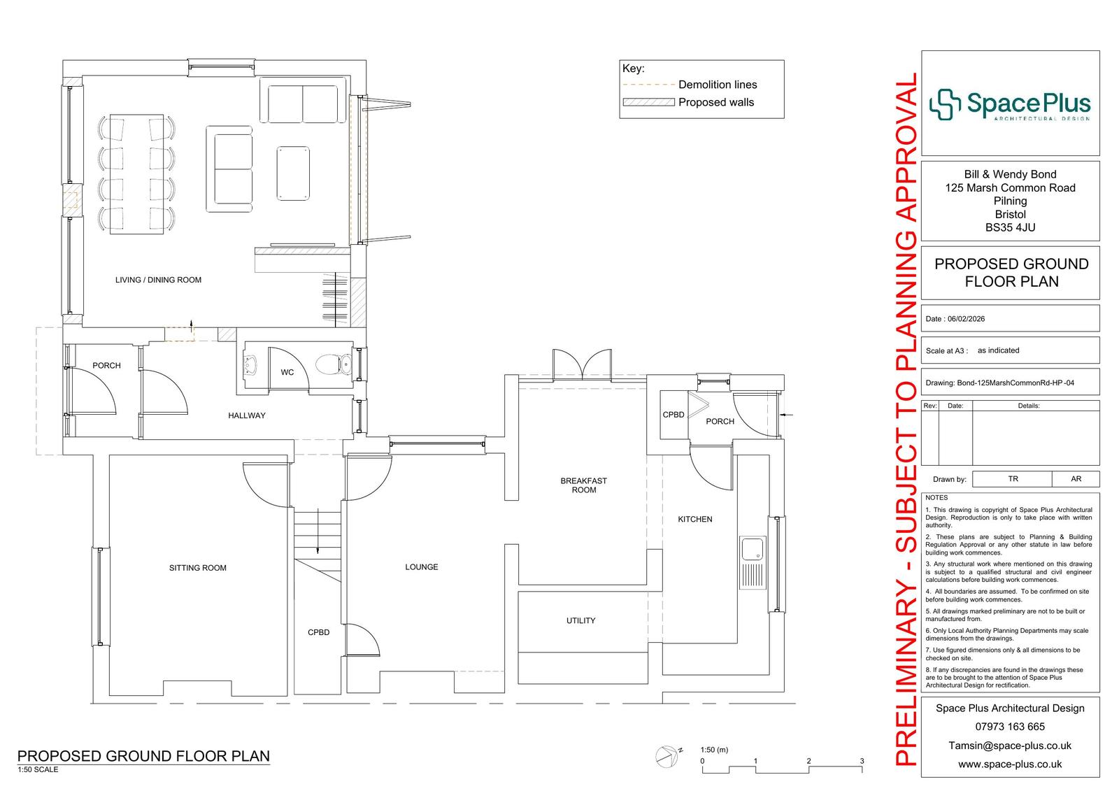
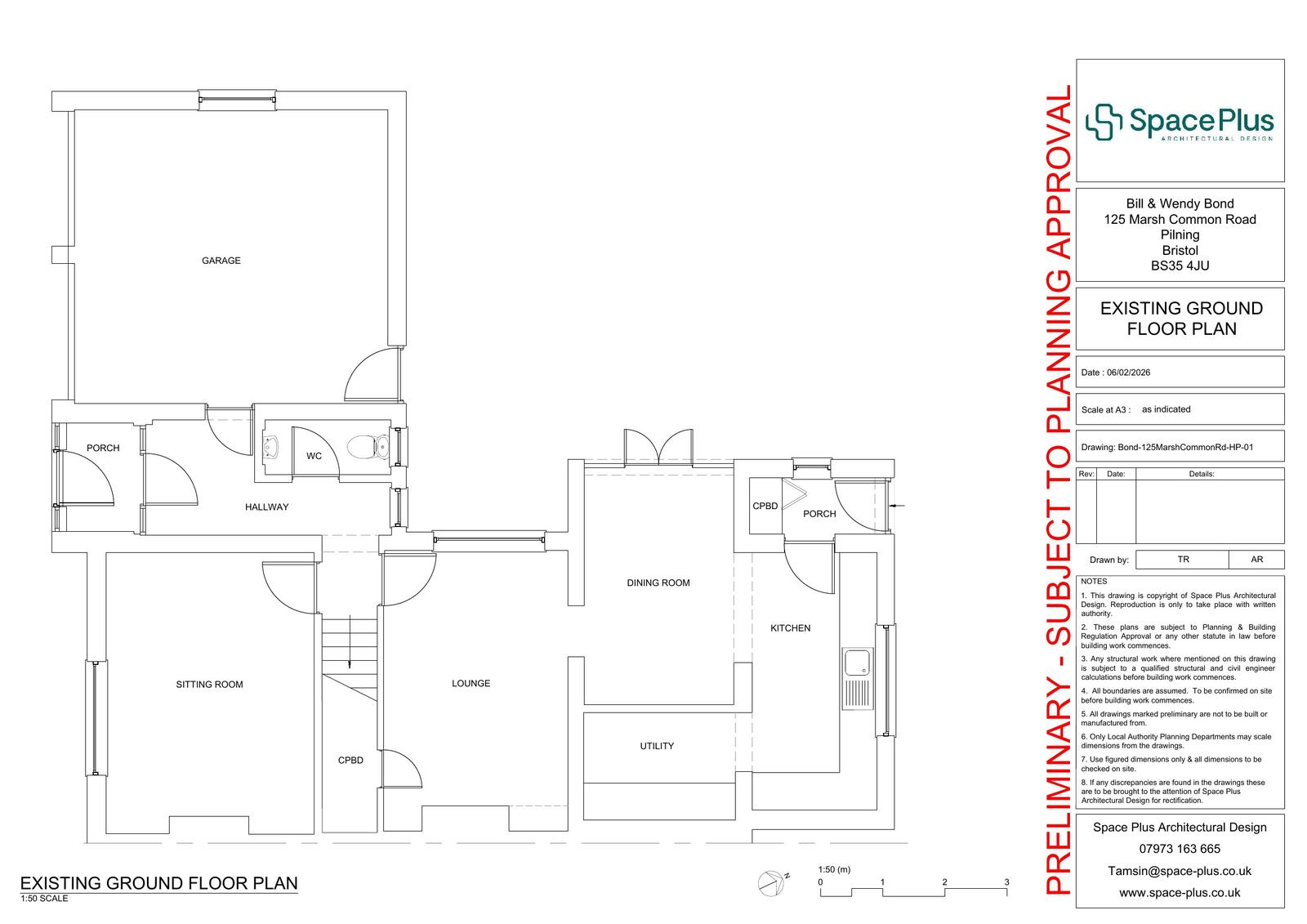
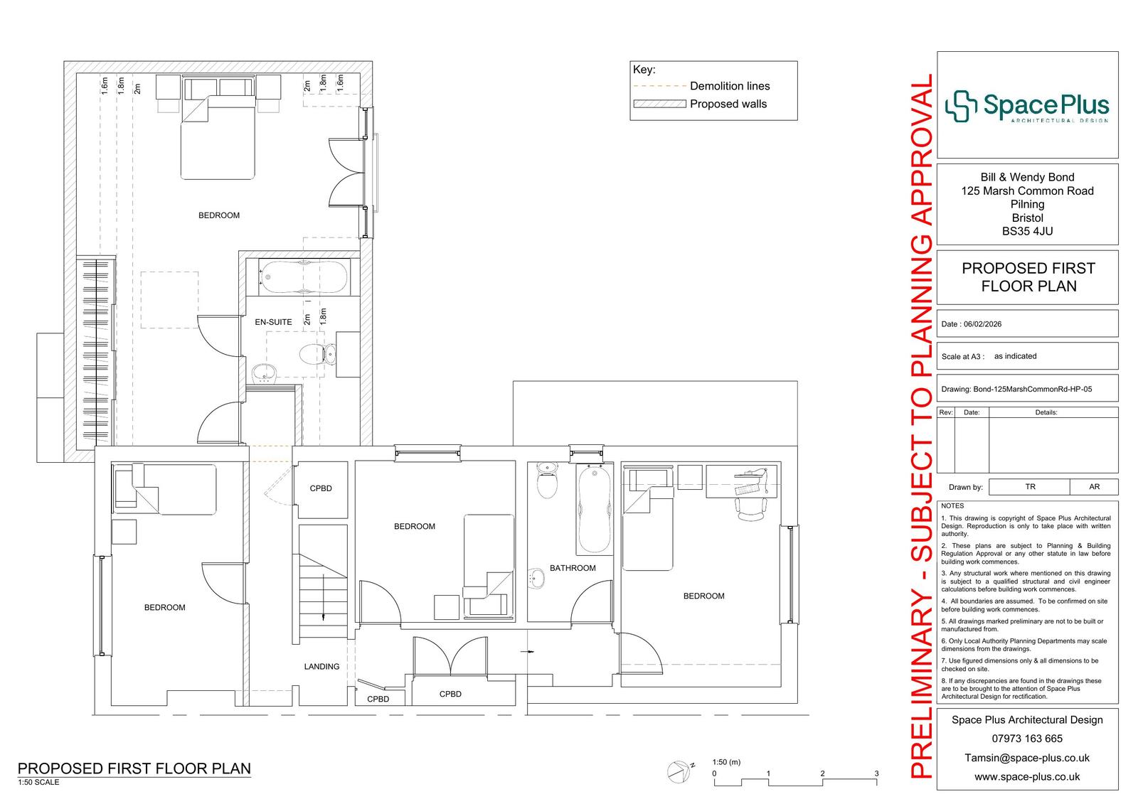
Conversion of existing garage and erection of first floor side extension to form additional living accommodation.
Documents
Have your say
Your comment matters. Councils must consider every representation that raises material planning considerations.