← South Gloucestershire Council
P26/00561/HH
South Gloucestershire Council
Status
Awaiting decision
House extension
Received
Last month
New homes
0
Full proposal
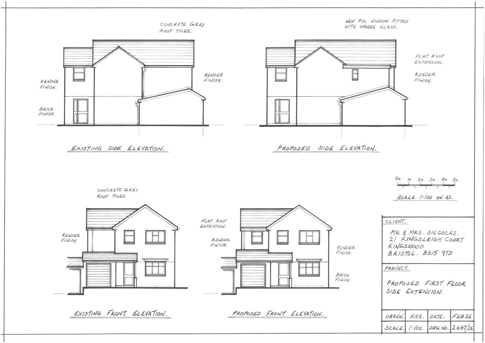
Erection of first floor side extension to form additional living accommodation.
Documents
Have your say
Your comment matters. Councils must consider every representation that raises material planning considerations.