← South Gloucestershire Council
P26/00569/HMO
South Gloucestershire Council
Status
Awaiting decision
House extension
Received
29 days ago
New homes
0
Full proposal
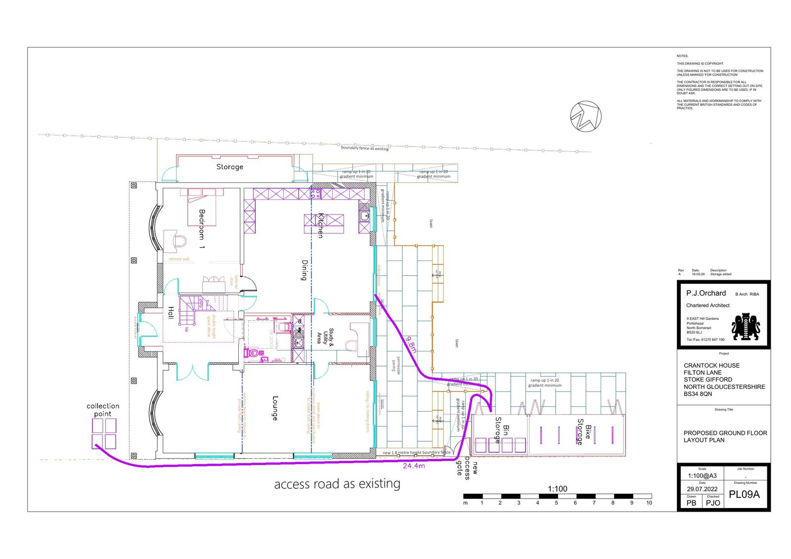
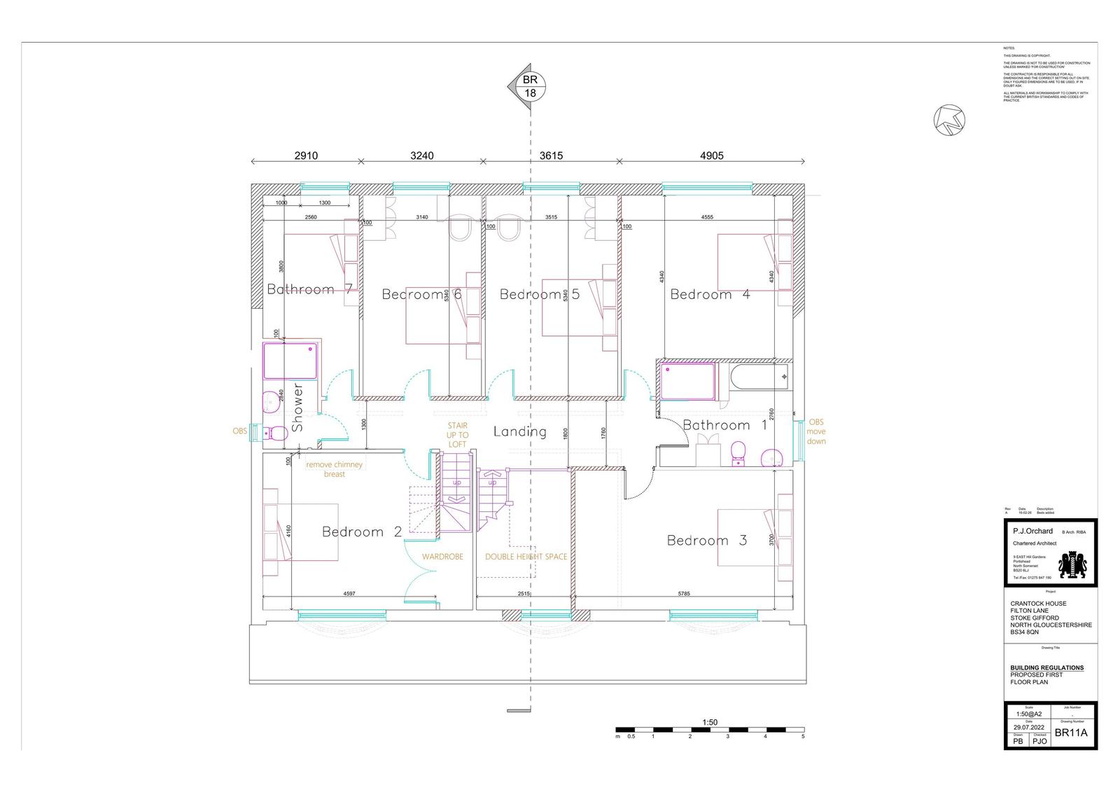
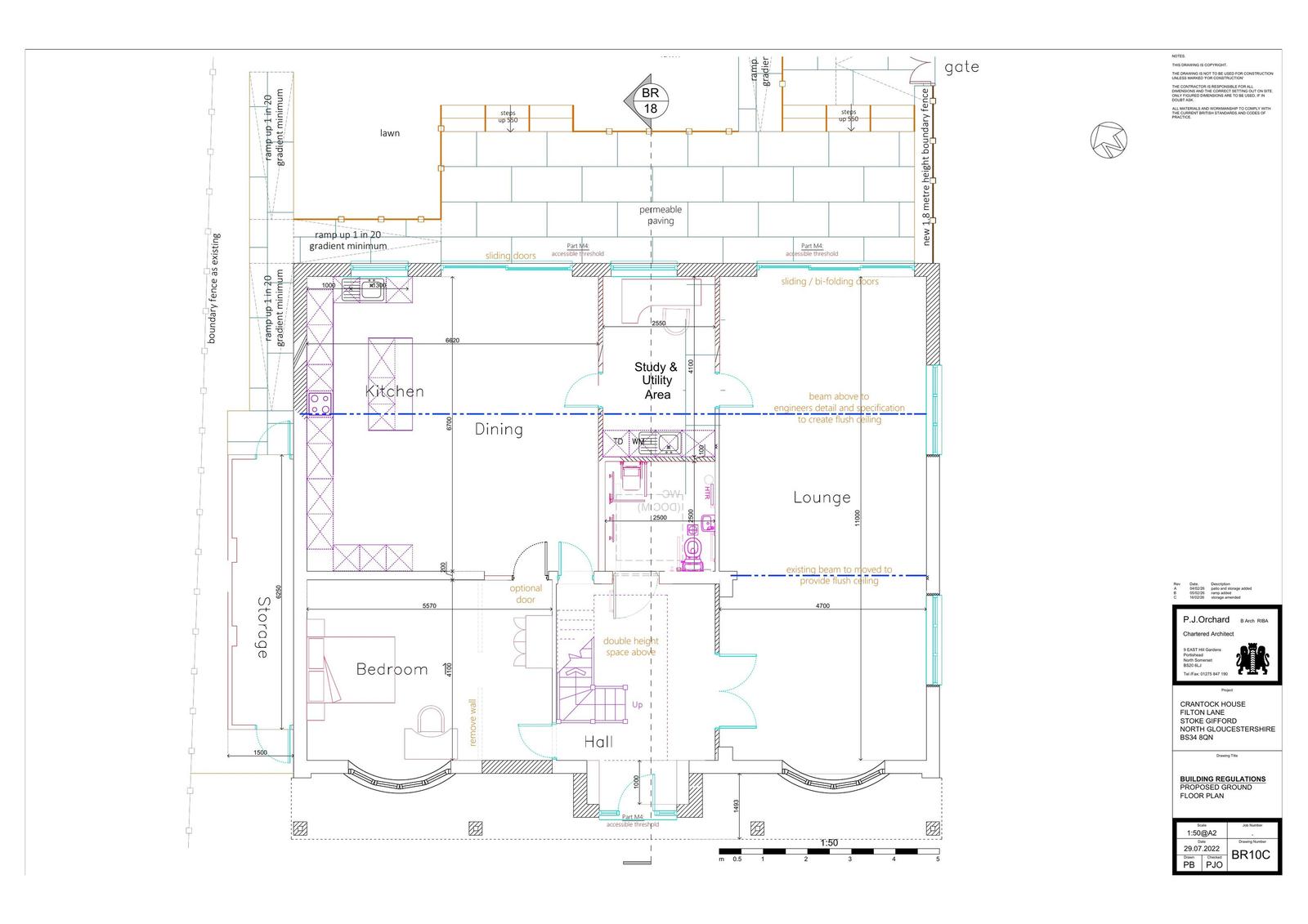
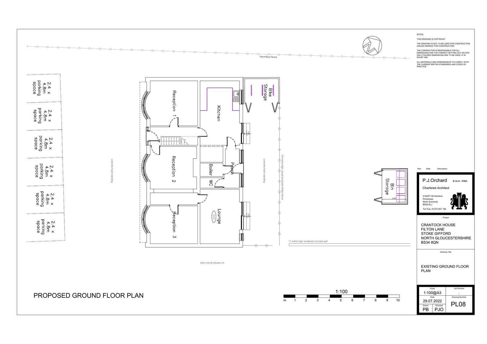
Erection of front porch and side extension for outdoor storage. Erection of bin and bike store. Erection of two storey rear extension to form additional bedrooms for large house in multiple occupancy (HMO) (Sui Generis) for a maximum household of 8no. people.
Documents
Have your say
Your comment matters. Councils must consider every representation that raises material planning considerations.