← Back to South Holland District Council
Application
H02-0076-25
South Holland District Council · OCELLA
Status
NON MAT AMENDMENT
House extension
Received
28 Jan 2025
New dwellings
0
What you can do
Take Action
Make your voice heard. Authorities need to hear from people who support new homes.
Summary
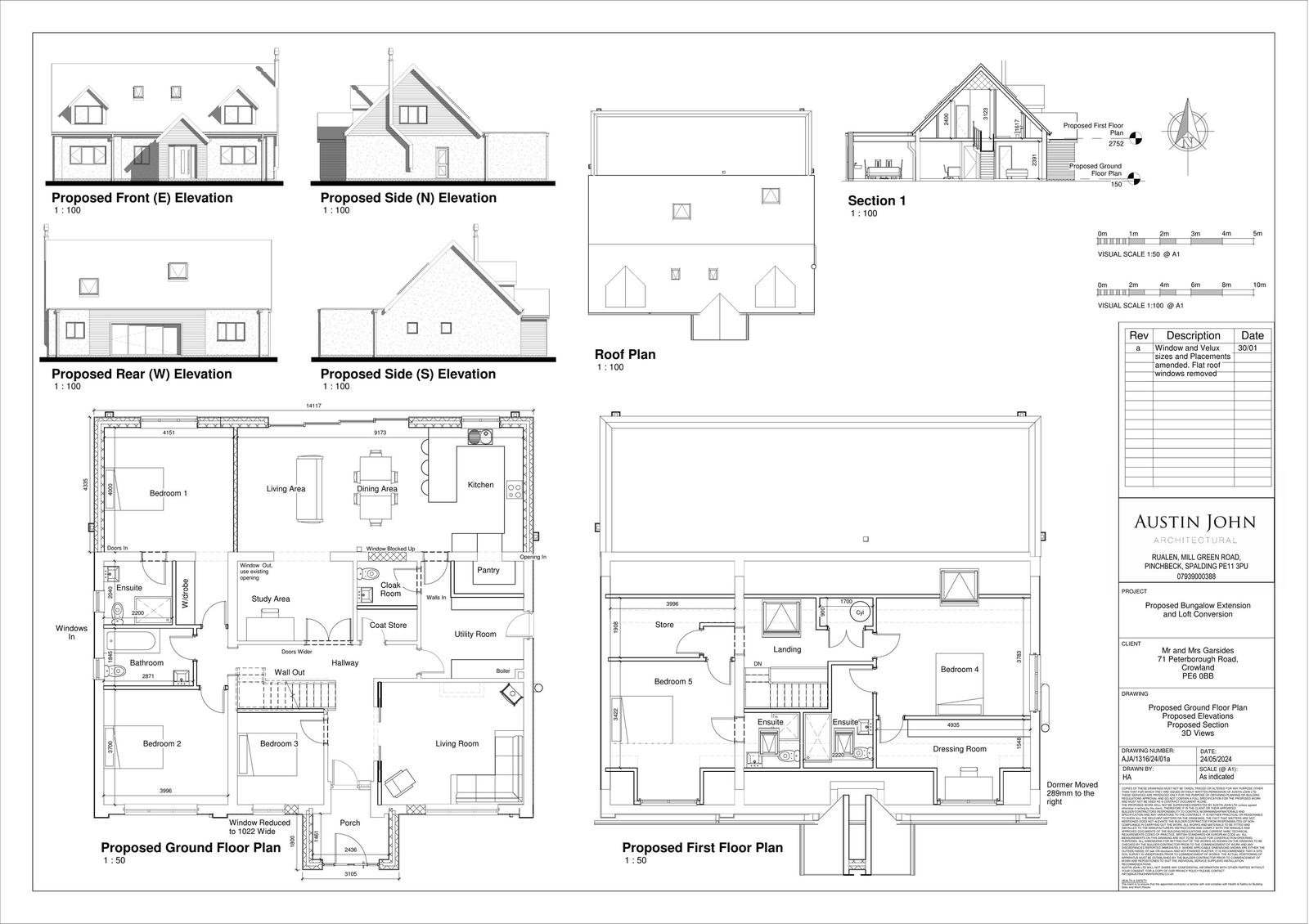
Bungalow extension, loft conversion, internal alterations and replacement garage; elevation amendments.
Full Proposal
Proposed Bungalow Extension, Loft Conversion, Internal Alterations and a Replacement Garage with Recreational Space - Approved under H02-0675-24. Amendments to external elevations
Detail pages
- View live detail on council site
- No archived detail page available.
Documents
Application Form Without Personal Details
Document
Not downloaded
· Council link
Decision Notice
Document
Not downloaded
· Council link
General Plans
Document
Not downloaded
· Council link
General Plans
Document
Not downloaded
· Council link
Officer Report - PUBLIC
Document
Not downloaded
· Council link