← South Holland District Council
H09-0150-25
South Holland District Council
Status
FULL
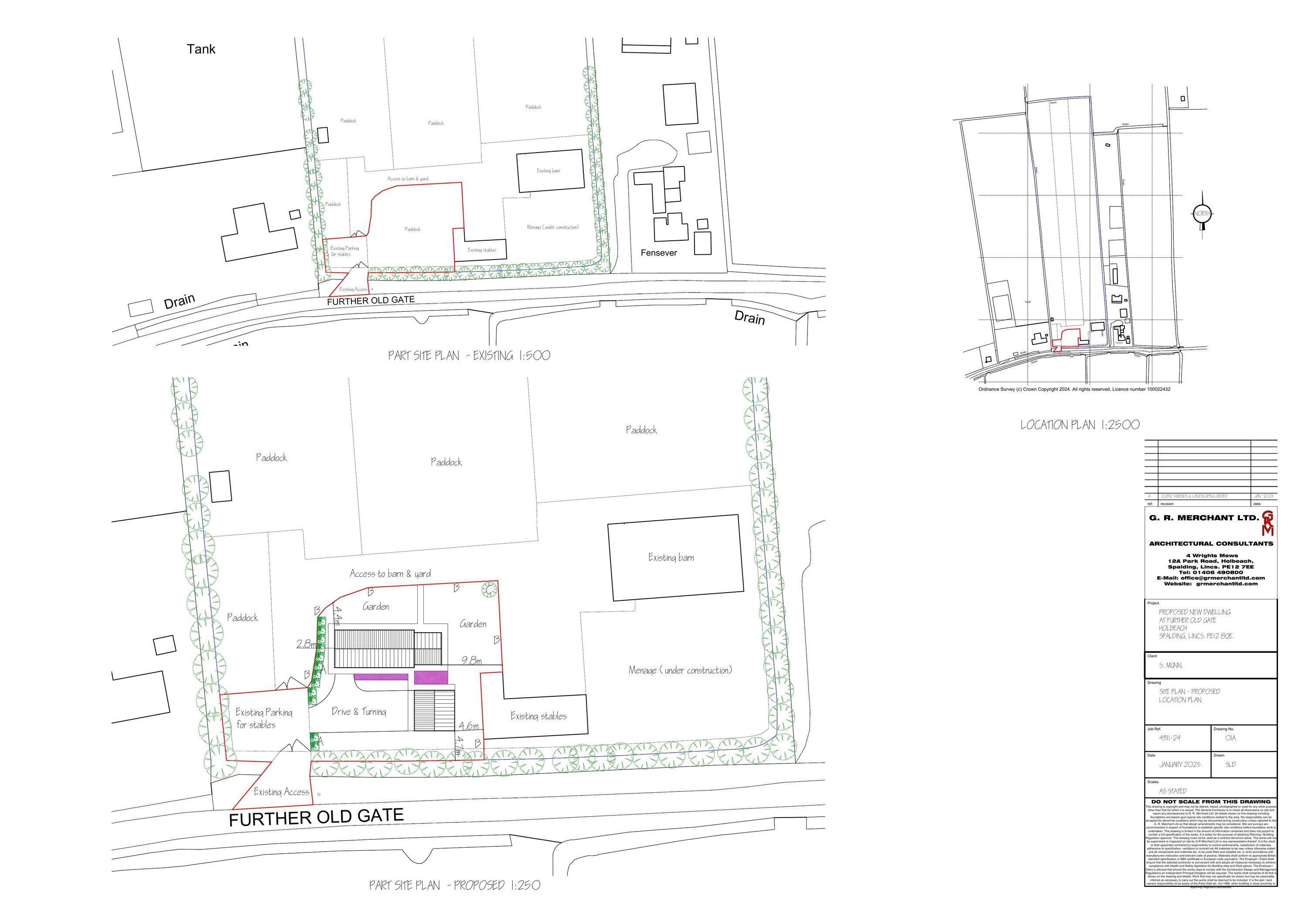
New housing
Received
13 Feb 2025
New homes
1
Full proposal
Erection of Self Build Dwelling & Garage
Documents
Have your say
Your comment matters. Councils must consider every representation that raises material planning considerations.