← South Holland District Council

Status

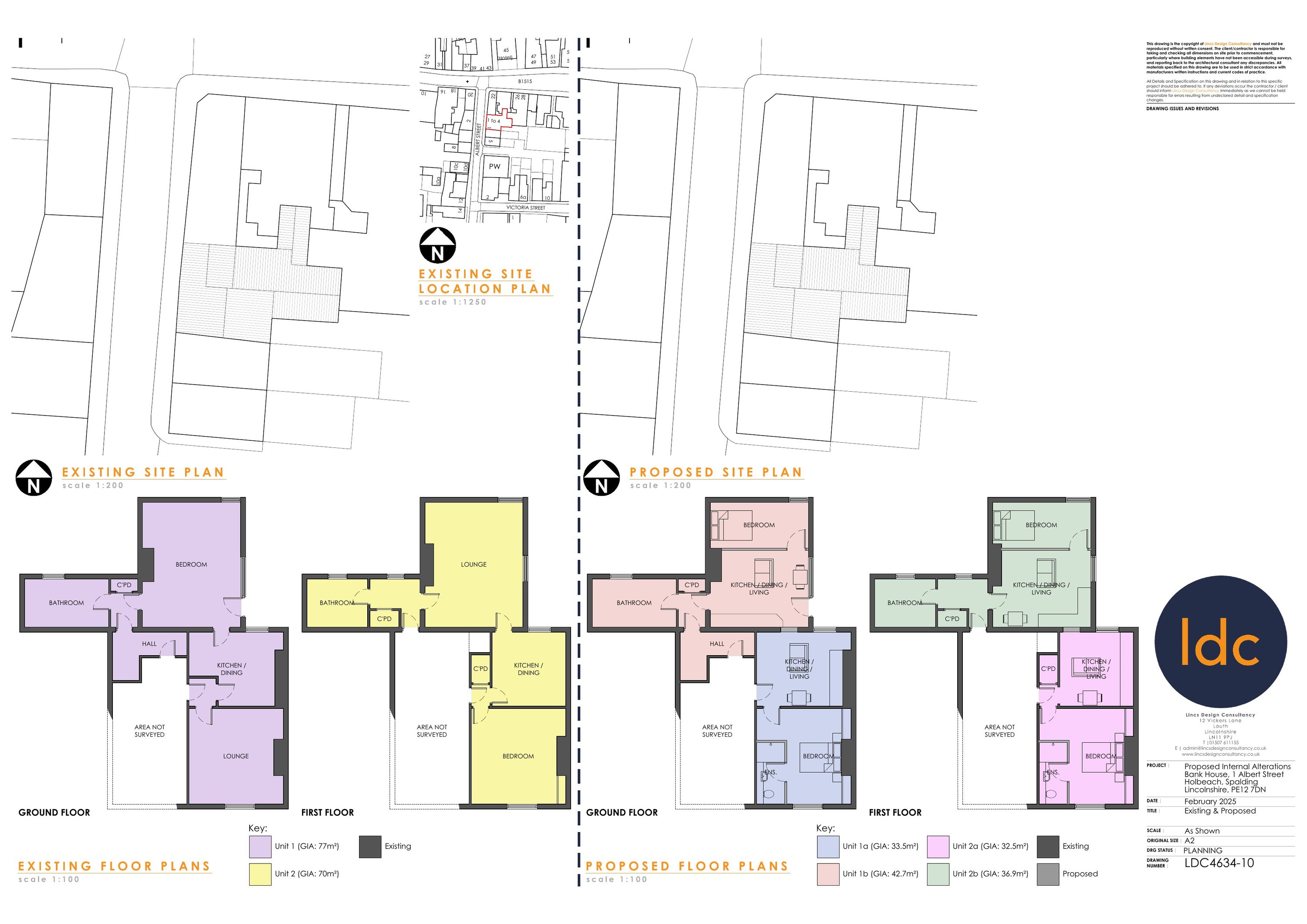
FULL Change of use
Received
27 Feb 2025
New homes
0

Full proposal

Conversion of 2 existing flats to create 4 flats

Documents

Document
Archived · Original link
Document
Archived · Original link
Document
Archived · Original link
Document
Archived · Original link
Document
Archived · Original link
Document
Archived · Original link
Document
Archived · Original link

Have your say

Your comment matters. Councils must consider every representation that raises material planning considerations.

Write a comment