← South Holland District Council
H09-0378-25
South Holland District Council
Status
FULL
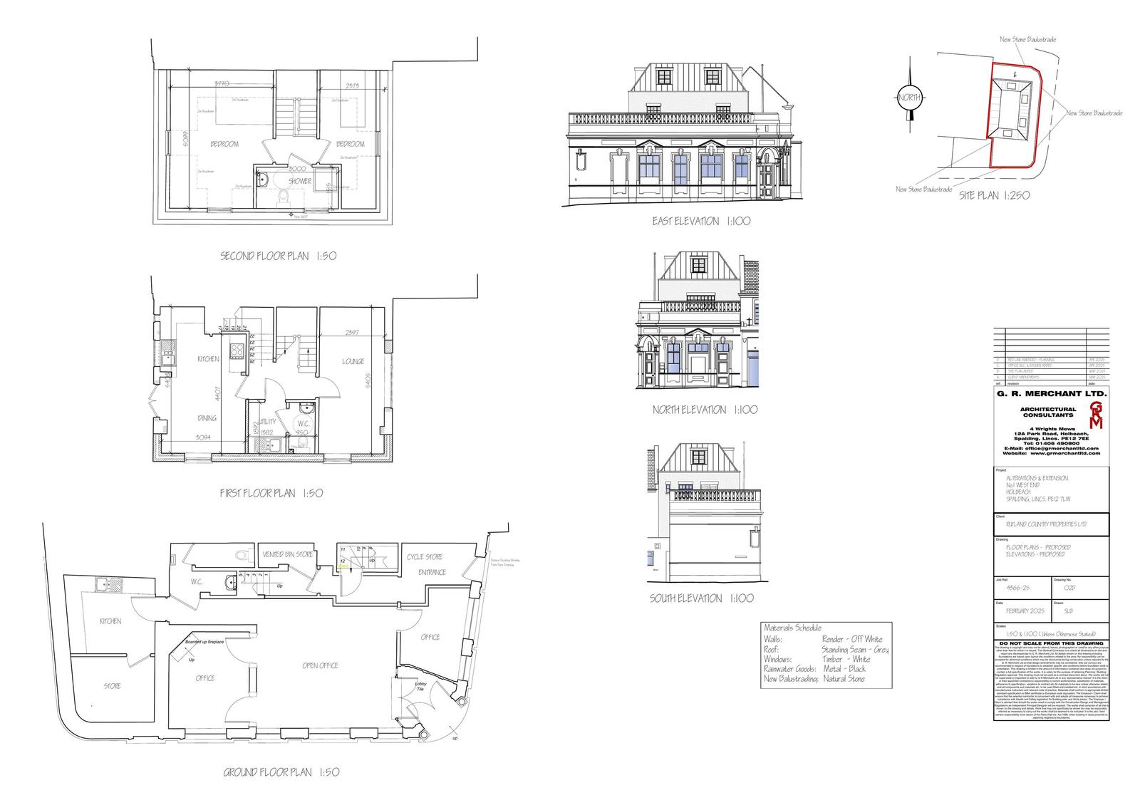
Change of use
Received
16 Apr 2025
New homes
1
Full proposal
Change of use of first floor office to 2 bedroom apartment including alterations & extension
Documents
Have your say
Your comment matters. Councils must consider every representation that raises material planning considerations.