← South Holland District Council
H09-0473-25
South Holland District Council
Status
FULL
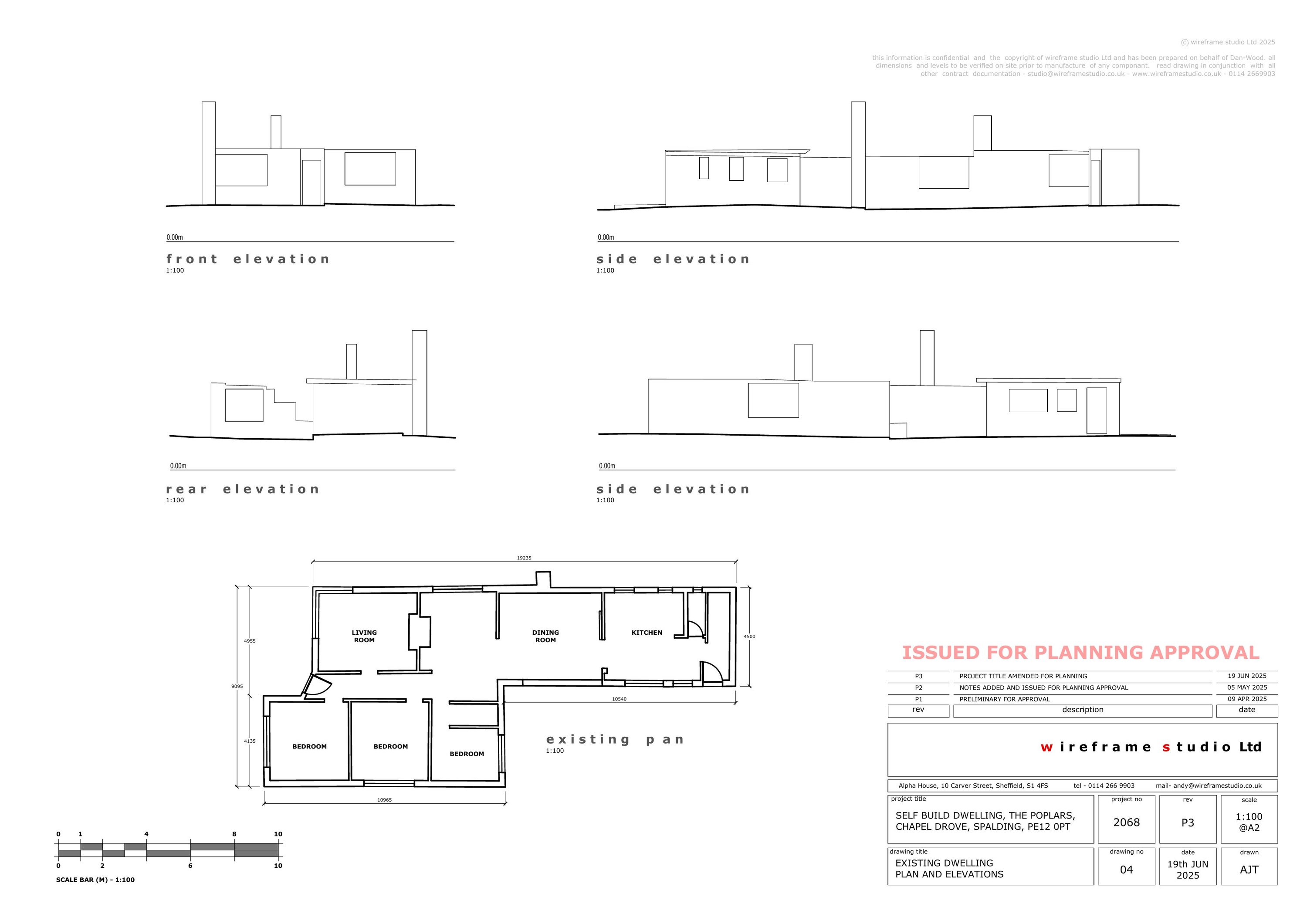
New housing
Received
16 May 2025
New homes
1
Full proposal
Demolition of existing derelict dwelling & erection of detached 3 bed self build dwelling
Documents
Have your say
Your comment matters. Councils must consider every representation that raises material planning considerations.