← South Holland District Council

Status

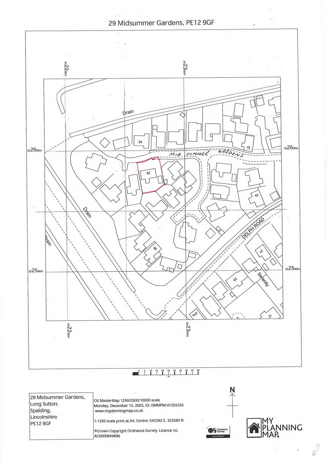
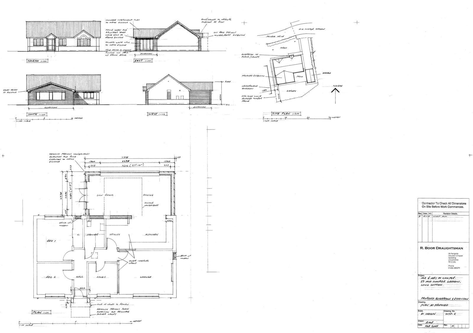
S192 LAWFUL USE CERT House extension
Received
Last month
New homes
0

Full proposal

Proposed single storey rear pitched roof extension & demolition of porch extension including cutting back of roof canopy to original line

Documents

Document
Archived · Original link
Document
Archived · Original link
Document
Archived · Original link

Have your say

Your comment matters. Councils must consider every representation that raises material planning considerations.

Write a comment