← South Holland District Council

Status

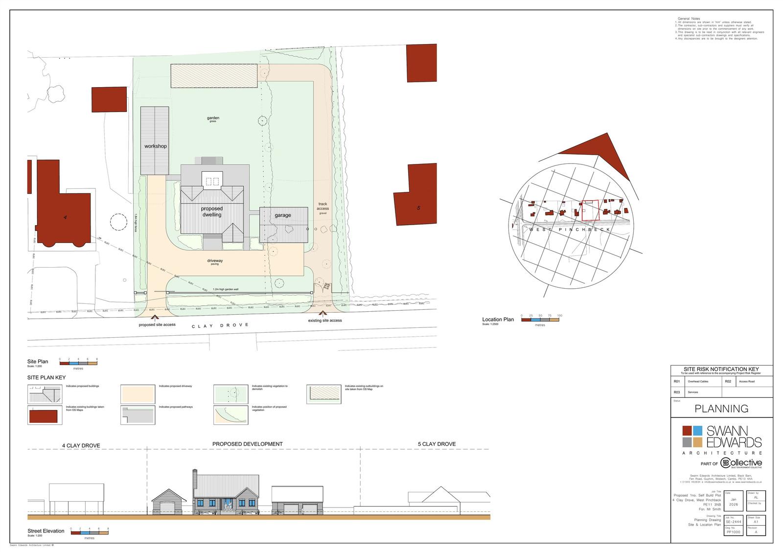
FULL New housing
Received
Last month
New homes
3

Full proposal

Erection of 3 bed self-build dwelling, domestic workshop and garage

Documents

Document
Archived · Original link
Document
Archived · Original link
Document
Archived · Original link
Document
Archived · Original link
Document
Archived · Original link
Document
Archived · Original link
Document
Archived · Original link
Document
Archived · Original link
Document
Archived · Original link

Have your say

Your comment matters. Councils must consider every representation that raises material planning considerations.

Write a comment