← South Holland District Council

Status

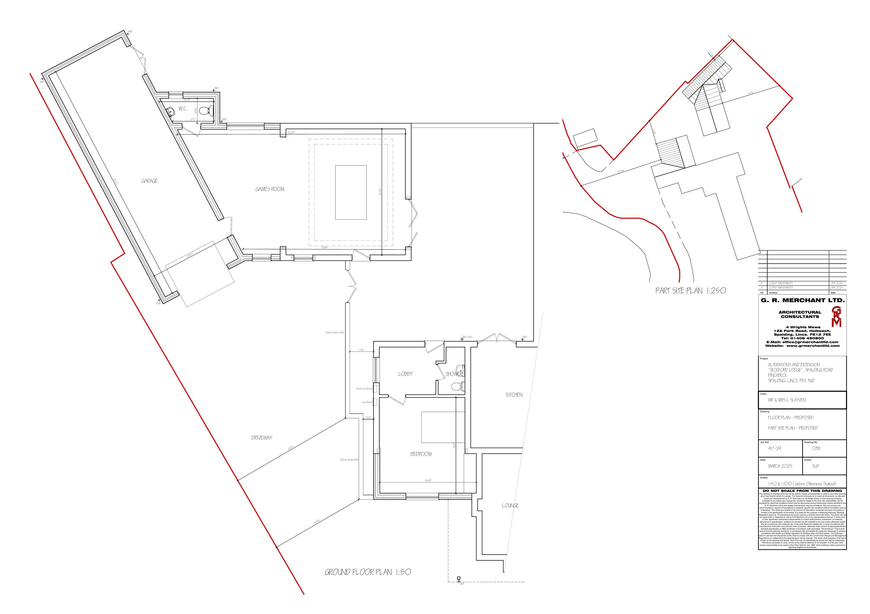
FULL House extension
Received
16 May 2025
New homes
0

Full proposal

Proposed Extensions & Alterations to Dwelling & Garage

Documents

Document
Archived · Original link
Document
Archived · Original link
Document
Archived · Original link
Document
Archived · Original link
Document
Archived · Original link
Document
Archived · Original link
Document
Archived · Original link
Document
Archived · Original link

Have your say

Your comment matters. Councils must consider every representation that raises material planning considerations.

Write a comment