← South Holland District Council

Status

FULL House extension
Received
12 Mar 2025
New homes
0

Full proposal

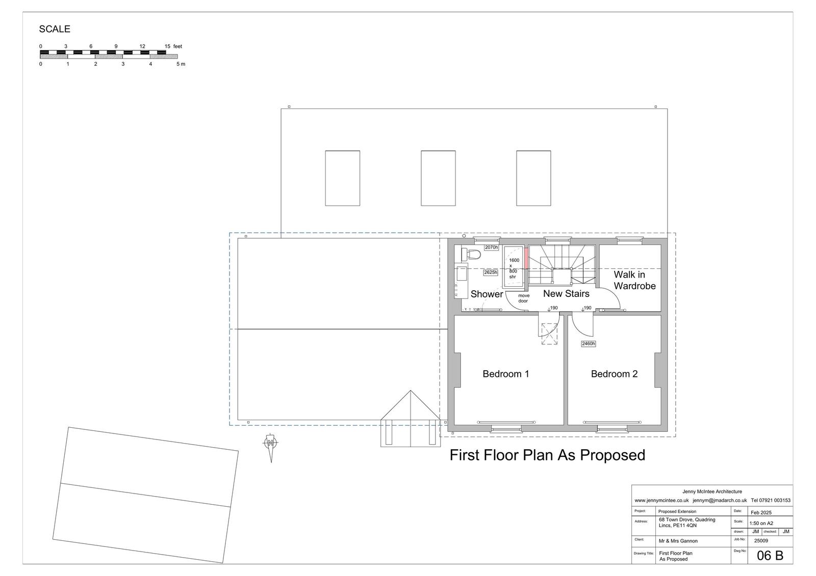
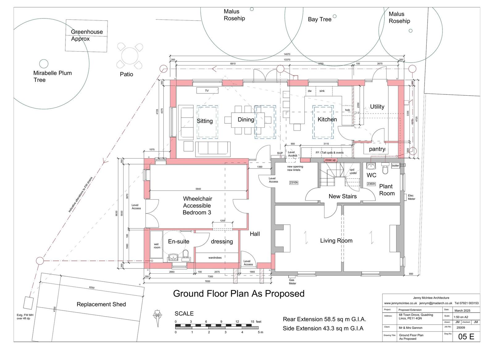
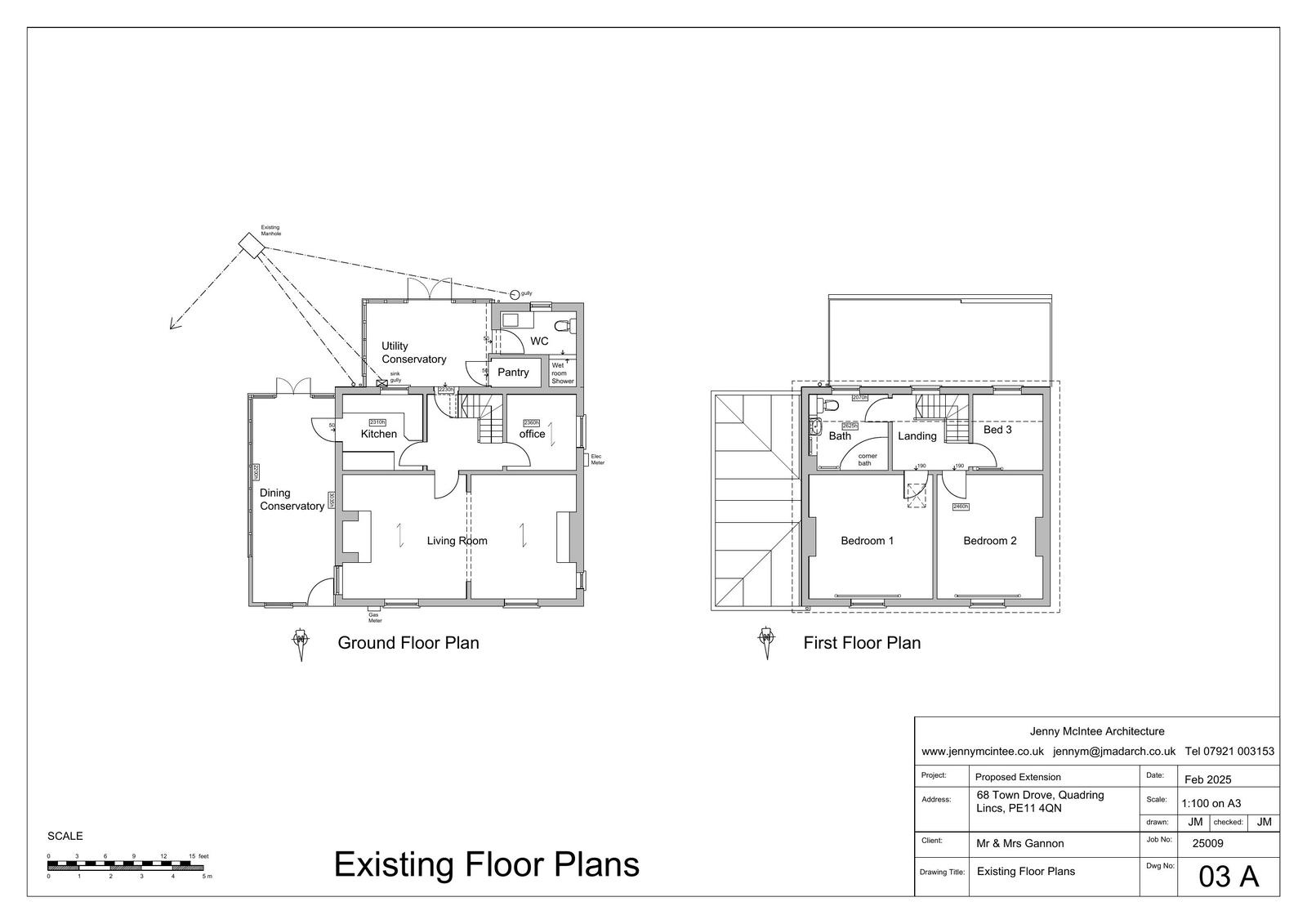
Demolition of existing single storey extension, conservatories & garage & replace with single storey side & rear extensions & wooden shed

Documents

Document
Archived · Original link
Document
Archived · Original link
Document
Archived · Original link
Document
Archived · Original link
Document
Archived · Original link
Document
Archived · Original link
Document
Archived · Original link
Document
Archived · Original link
Document
Archived · Original link
Document
Archived · Original link
Document
Archived · Original link
Document
Archived · Original link

Have your say

Your comment matters. Councils must consider every representation that raises material planning considerations.

Write a comment