← South Holland District Council

Status

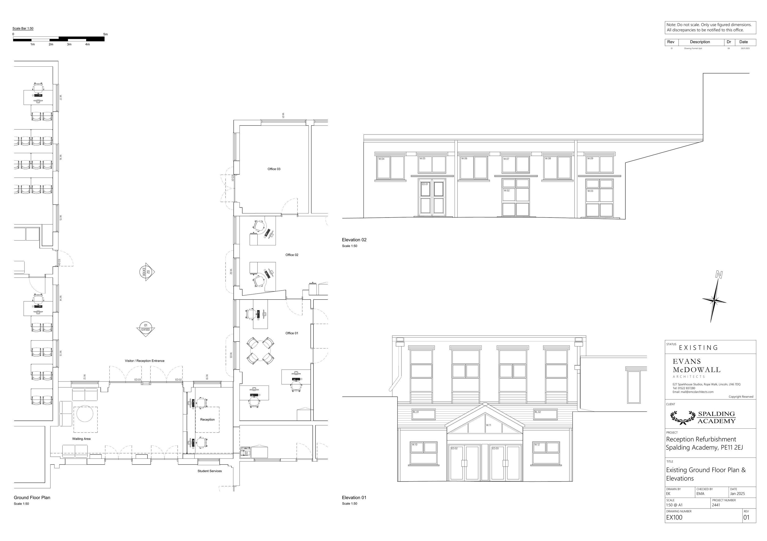
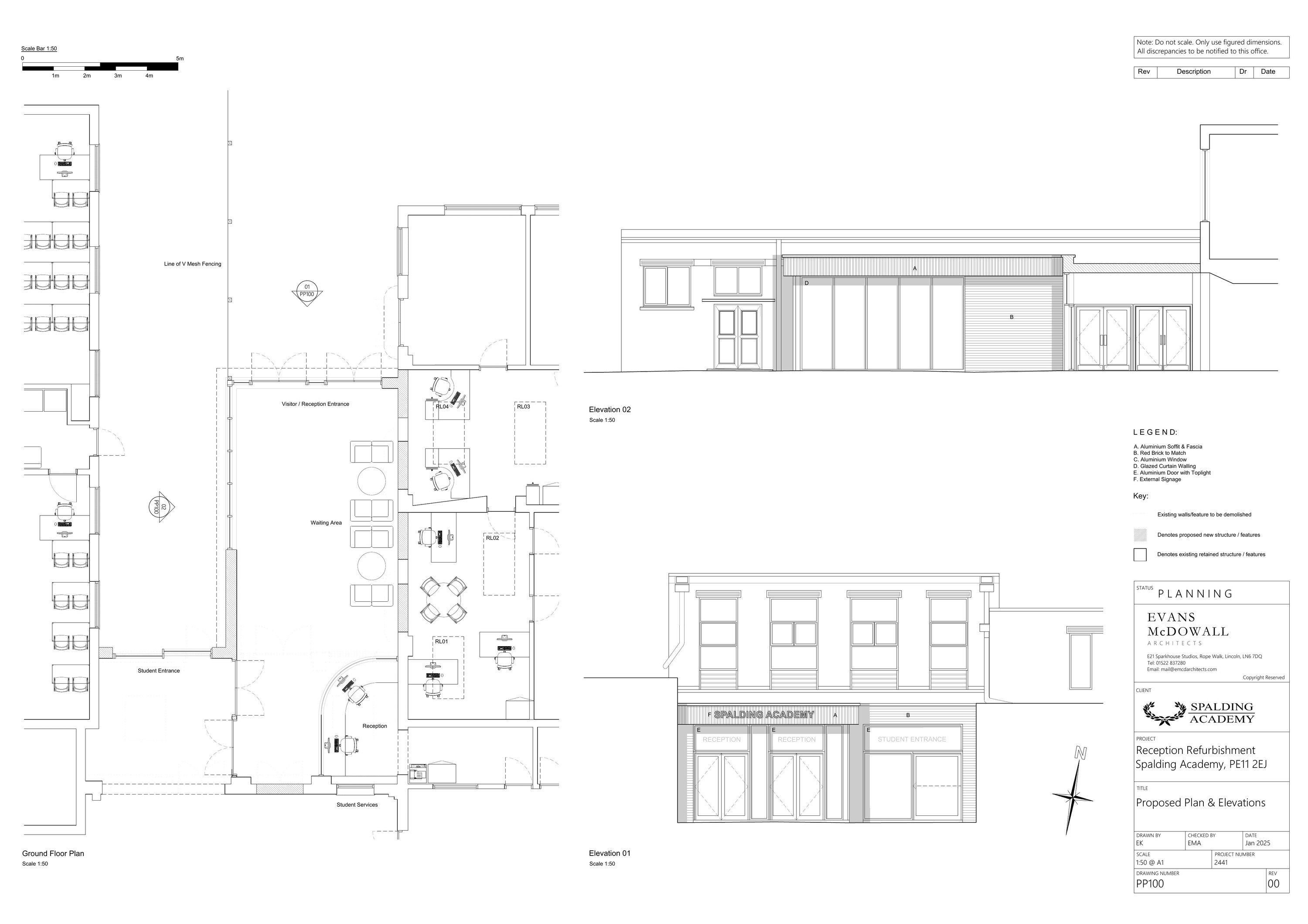
FULL House extension
Received
07 Feb 2025
New homes
0

Full proposal

Erection of Single-Storey Extension and Installation of Security Fencing & Access Gates

Documents

Document
Archived · Original link
Document
Archived · Original link
Document
Archived · Original link
Document
Archived · Original link
Document
Archived · Original link
Document
Archived · Original link
Document
Archived · Original link
Document
Archived · Original link

Have your say

Your comment matters. Councils must consider every representation that raises material planning considerations.

Write a comment