← South Holland District Council

Status

RESERVED MATTERS New housing
Received
Last month
New homes
1

Full proposal

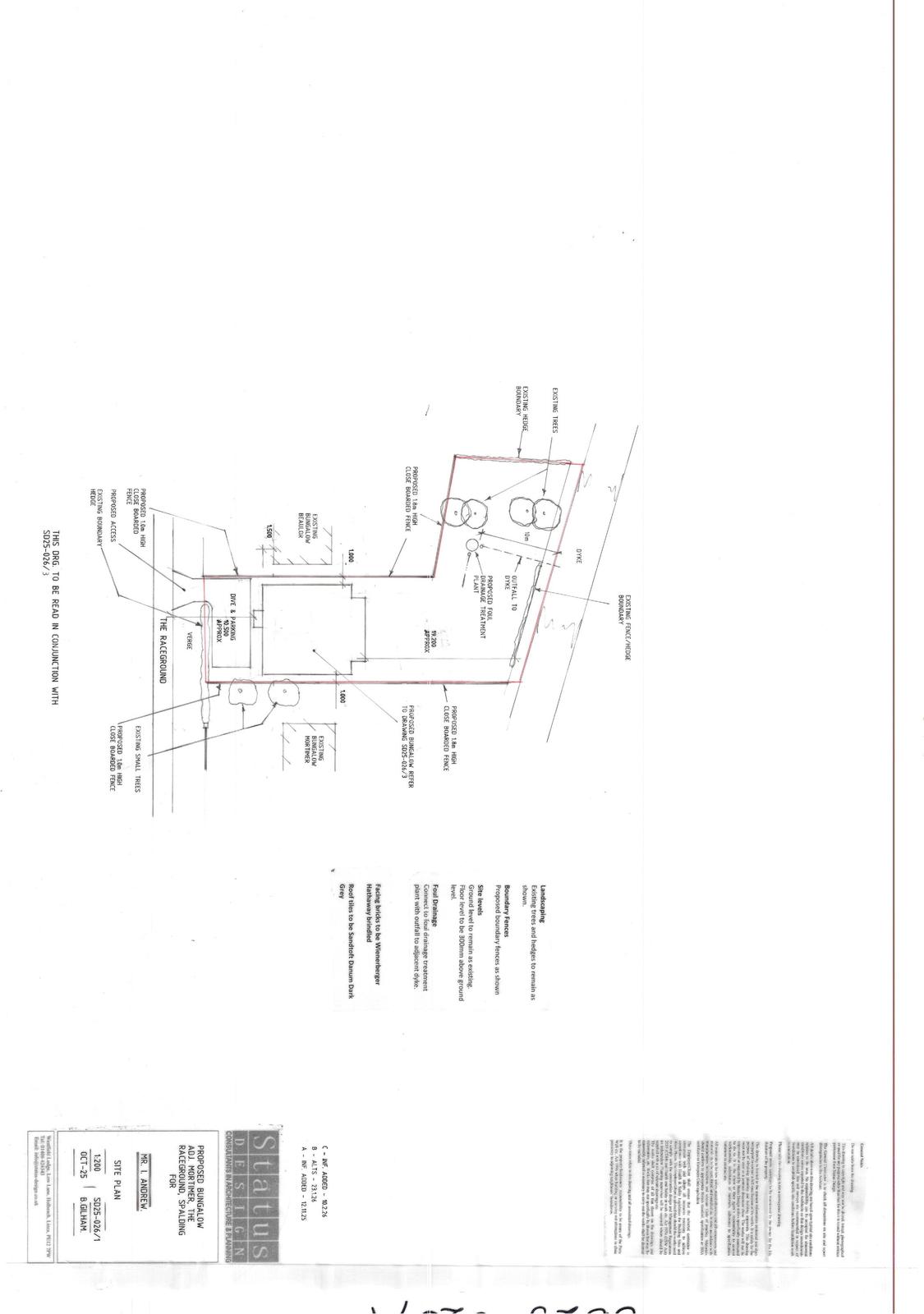
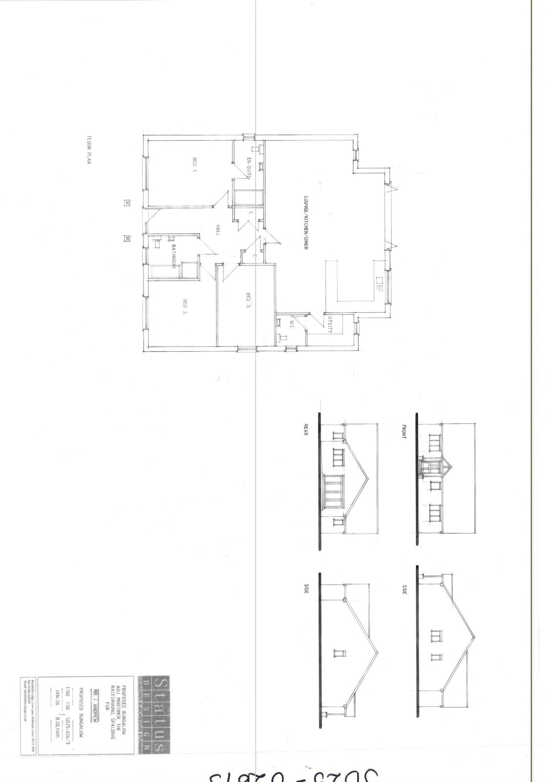
Erection of Bungalow - outline approval H16-1019-23

Documents

Document
Archived · Original link
Document
Archived · Original link
Document
Archived · Original link
Document
Archived · Original link
Document
Archived · Original link

Have your say

Your comment matters. Councils must consider every representation that raises material planning considerations.

Write a comment