← South Holland District Council

Status

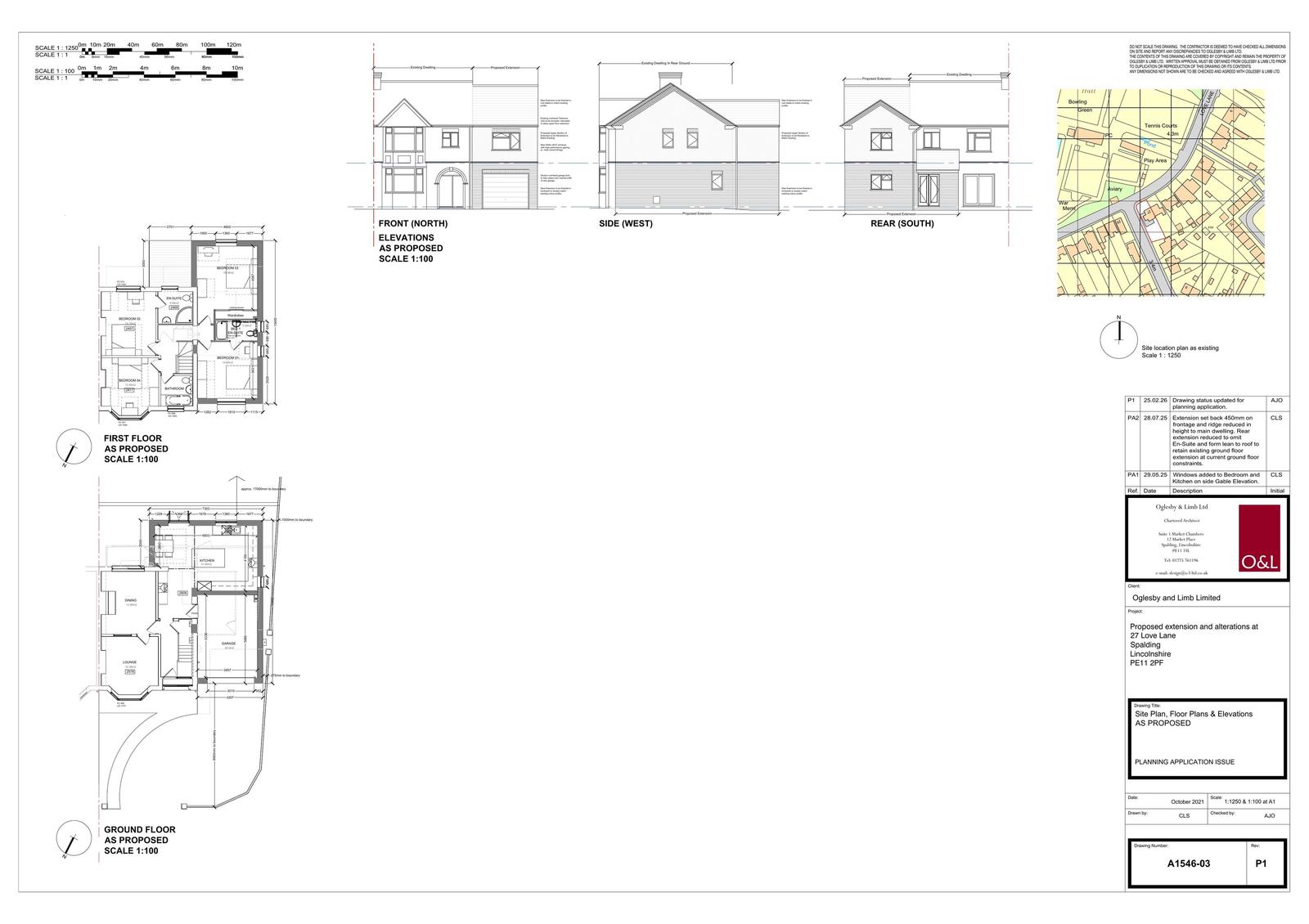
FULL House extension
Received
Last month
New homes
0

Full proposal

Proposed Extension & Alterations to Dwelling

Documents

Document
Archived · Original link
Document
Archived · Original link
Document
Archived · Original link
Document
Archived · Original link
Document
Archived · Original link
Document
Archived · Original link
Document
Archived · Original link
Document
Archived · Original link

Have your say

Your comment matters. Councils must consider every representation that raises material planning considerations.

Write a comment