← South Holland District Council
H16-0514-25
South Holland District Council
Status
FULL
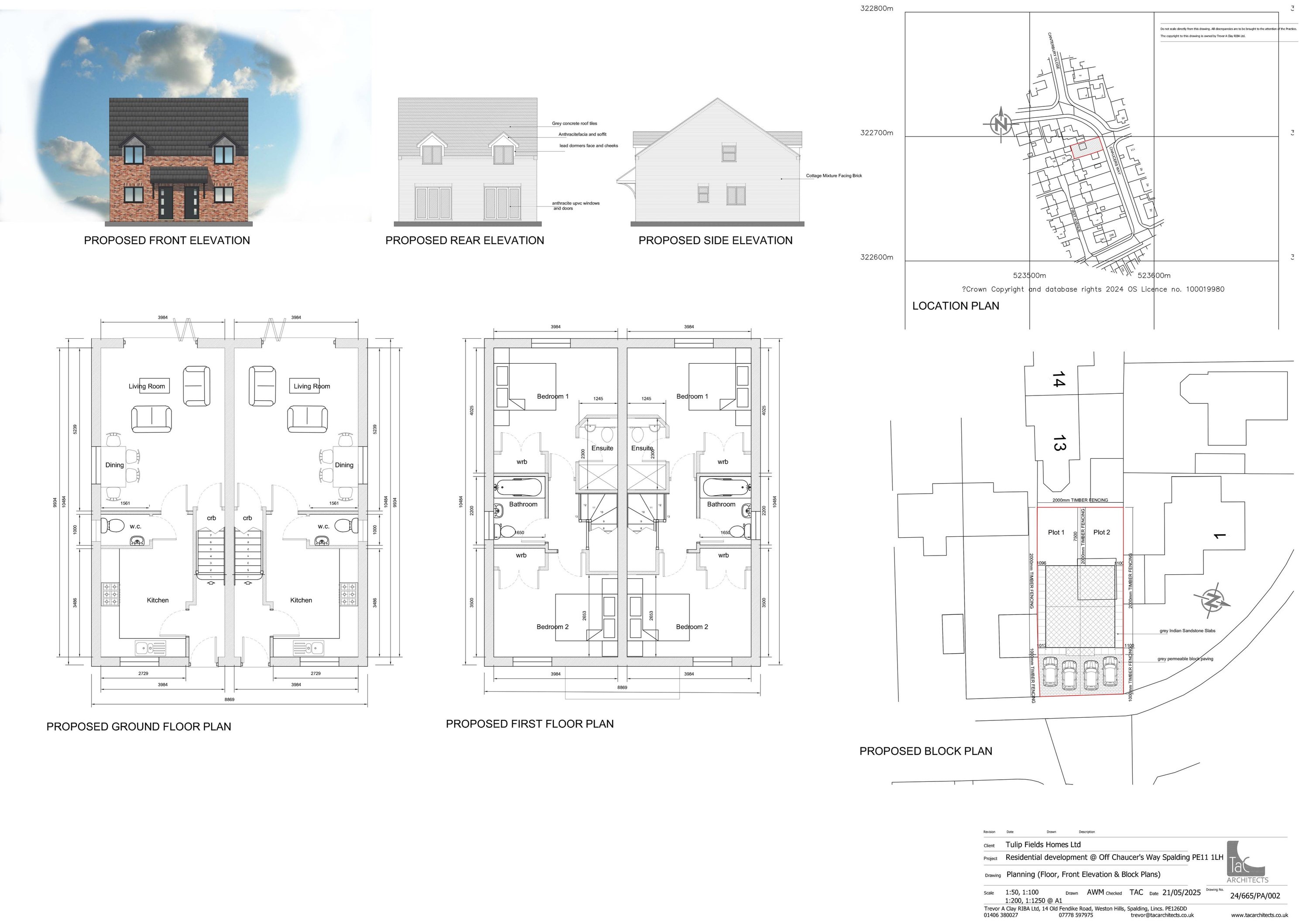
New housing
Received
22 May 2025
New homes
0
Full proposal
Proposed Residential Development
Documents
Have your say
Your comment matters. Councils must consider every representation that raises material planning considerations.