← South Holland District Council

Status

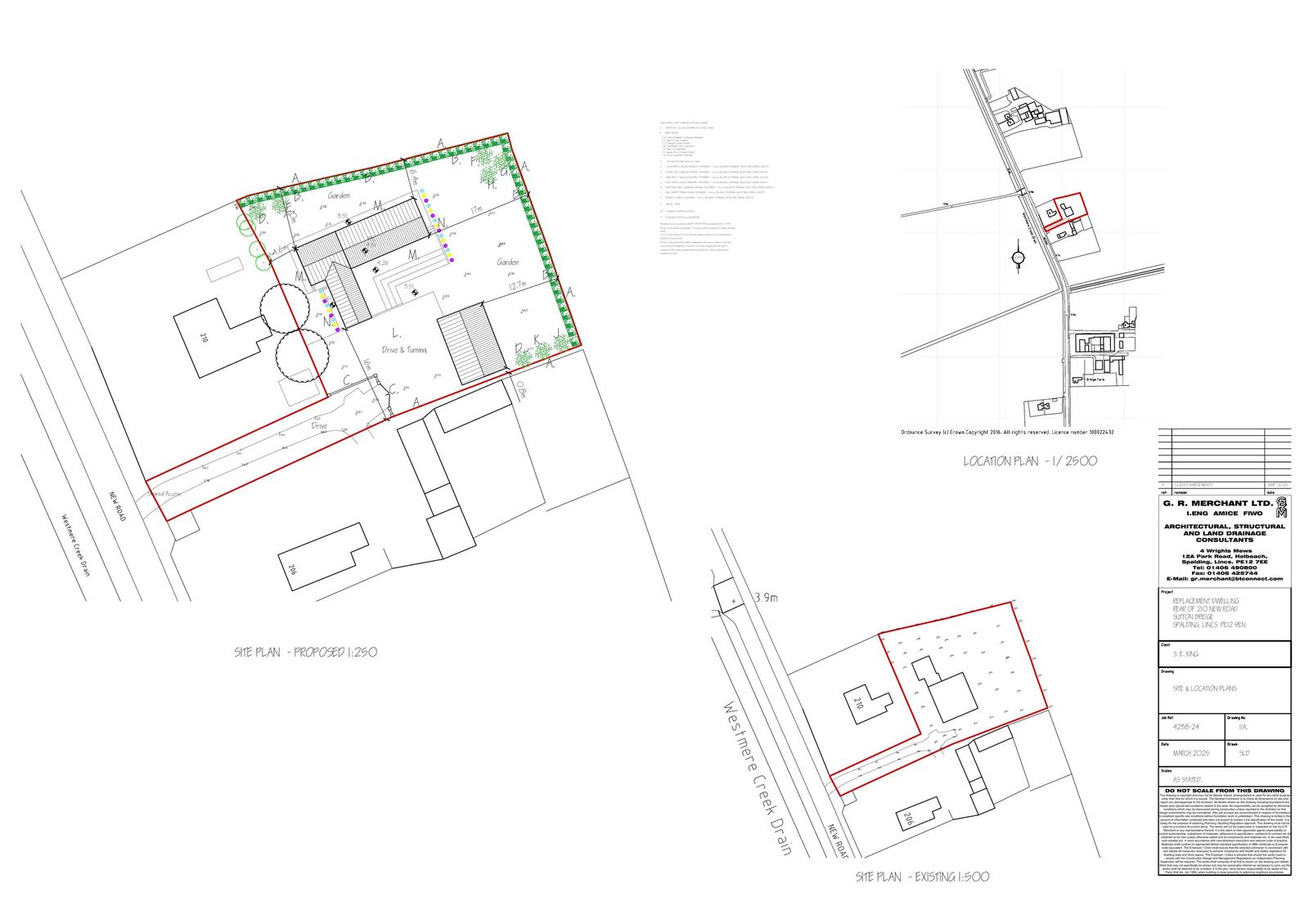
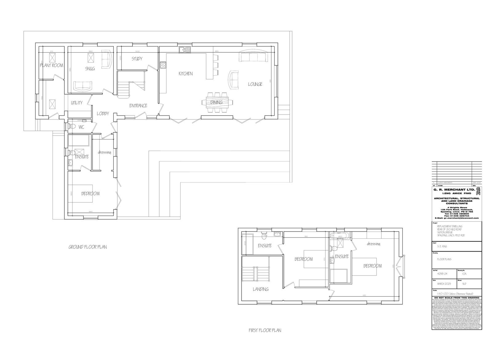
FULL New housing
Received
16 Apr 2025
New homes
1

Full proposal

Demolition of existing barn & erection of 1 dwelling & garage

Documents

Document
Archived · Original link
Document
Archived · Original link
Document
Archived · Original link
Document
Archived · Original link
Document
Archived · Original link
Document
Archived · Original link
Document
Archived · Original link
Document
Archived · Original link
Document
Archived · Original link
Document
Archived · Original link

Have your say

Your comment matters. Councils must consider every representation that raises material planning considerations.

Write a comment