← South Holland District Council

Status

FULL House extension
Received
28 May 2025
New homes
0

Summary

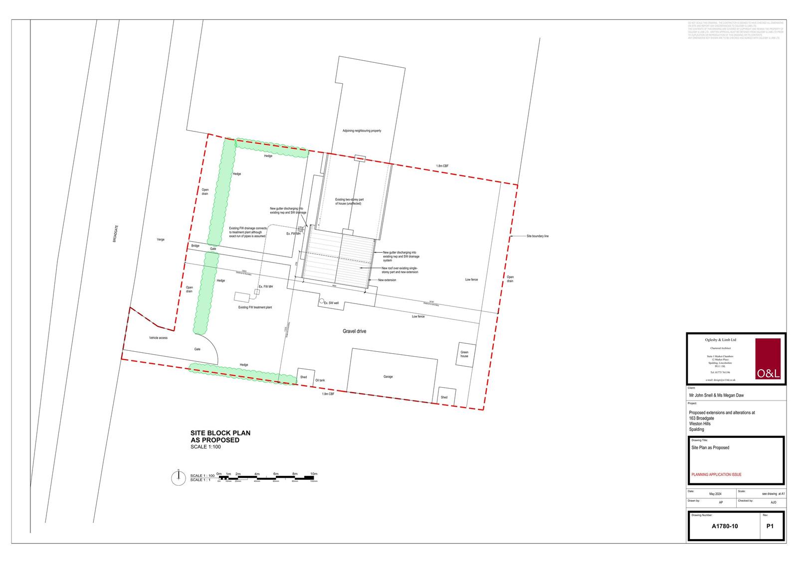
Proposed single-storey extension to existing house.

Full proposal

Proposed single storey extension to house

Documents

Document
Archived · Original link
Document
Archived · Original link
Document
Archived · Original link
Document
Archived · Original link
Document
Archived · Original link
Document
Archived · Original link
Document
Archived · Original link
Document
Archived · Original link
Document
Archived · Original link

Have your say

Your comment matters. Councils must consider every representation that raises material planning considerations.

Write a comment