← South Holland District Council

Status

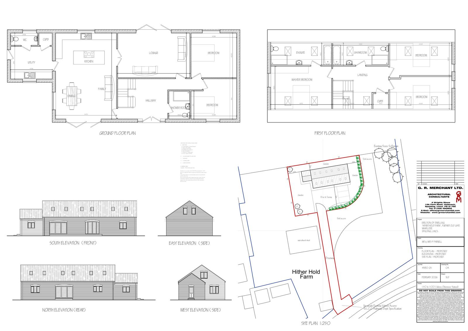
FULL New housing
Received
Last month
New homes
1

Full proposal

Demolition of existing barn & erection of new dwelling

Documents

Document
Archived · Original link
Document
Archived · Original link
Document
Archived · Original link
Document
Archived · Original link
Document
Archived · Original link

Have your say

Your comment matters. Councils must consider every representation that raises material planning considerations.

Write a comment