← South Kesteven District Council

Status

Awaiting decision New housing
Received
12 Sep 2025
New homes
2

Summary

Erection of two dwellings.

Full proposal

Erection of two dwellings

Documents

1363 12 PLOT 1 PLANS AND ELEVATIONS
Drawing
Not yet archived · Original link
1363.11 BLOCK PLAN
Superseded plan/document
Not yet archived · Original link
1363.13 PLOT 2 PLANS AND ELEVATIONS
Drawing
Not yet archived · Original link
2139 06 DESIGN AND ACCESS STATEMENT RFS
Report
Not yet archived · Original link
2139 STATEMENT OF COMMUNITY CONSULTATION
Report
Not yet archived · Original link
AMENDED PLOT 2 FLOOR & ELEVATION PLAN
Drawing
Not yet archived · Original link
Superseded plan/document
Archived · Original link
Drawing
Archived · Original link
APPLICATION FORM REDACTED
Superseded plan/document
Not yet archived · Original link
APPLICATIONFORMREDACTED
Application Form
Not yet archived · Original link
CONSERVATION OFFICER
Consultee Comment - PUBLIC
Not yet archived · Original link
DESIGN, ACCESS, PLANNING & HERITAGE STATEMENT
Superseded plan/document
Not yet archived · Original link
ENVIRONMENTAL PROTECTION
Consultee Comment - PUBLIC
Not yet archived · Original link
ENVIRONMENTAL PROTECTION
Consultee Comment - PUBLIC
Not yet archived · Original link
HIGHWAYS / SUDS
Consultee Comment - PUBLIC
Not yet archived · Original link
HIGHWAYS / SUDS
Consultee Comment - PUBLIC
Not yet archived · Original link
HISTORIC ENGLAND
Consultee Comment - PUBLIC
Not yet archived · Original link
HISTORIC ENGLAND
Consultee Comment - PUBLIC
Not yet archived · Original link
LINCOLNSHIRE WILDLIFE TRUST
Consultee Comment - PUBLIC
Not yet archived · Original link
LOCATION PLAN
Superseded plan/document
Not yet archived · Original link
LOCATIONPLAN
Other
Not yet archived · Original link
MS DENISE DRURY
Consultee Comment - PUBLIC
Not yet archived · Original link
MS DENISE DRURY
Consultee Comment - PUBLIC
Not yet archived · Original link
NATIONAL TRUST
Consultee Comment - PUBLIC
Not yet archived · Original link
PARISH COUNCIL COMMENTS REDACTED
Consultee Comment - PUBLIC
Not yet archived · Original link
PHOTO
Photo
Not yet archived · Original link
PHOTO
Photo
Not yet archived · Original link
PHOTO
Photo
Not yet archived · Original link
PLOT 1 - FLOOR & ELEVATION PLAN
Superseded plan/document
Not yet archived · Original link
PLOT 2 - FLOOR, ELEVATION & SECTION PLAN
Superseded plan/document
Not yet archived · Original link
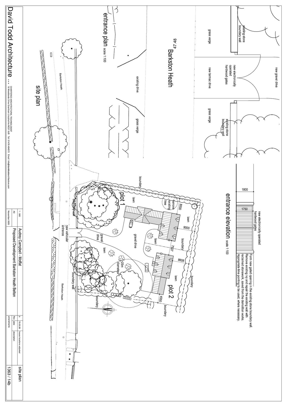
PROPOSED SITE LAYOUT PLAN
Drawing - Proposed
Not yet archived · Original link
SITE LAYOUT PLAN
Drawing
Not yet archived · Original link
Superseded plan/document
Archived · Original link
STATEMENT OF COMMUNITY CONSULTATION
Superseded plan/document
Not yet archived · Original link
SUPERSEDED PLOT 2 - FLOOR, ELEVATION & SECTION PLAN
Superseded plan/document
Not yet archived · Original link
SUPERSEDED SITE LAYOUT PLAN
Superseded plan/document
Not yet archived · Original link
Superseded plan/document
Archived · Original link
THE GARDENS TRUST
Consultee Comment - PUBLIC
Not yet archived · Original link
TOPOGRAPHIC SURVEY
Drawing
Not yet archived · Original link
TREE CONSTRAINTS REPORT REDACTED
Report
Not yet archived · Original link
TREE REPORT REDACTED
Report
Not yet archived · Original link

Have your say

Your comment matters. Councils must consider every representation that raises material planning considerations.

Write a comment