← Back to Broadland and South Norfolk Council
Application
2024/3836
Broadland and South Norfolk Council · IDOX
Status
Pending Decision
New housing
Received
24 Dec 2024
New dwellings
406
What you can do
Take Action
Make your voice heard. Authorities need to hear from people who support new homes.
Summary
Development of 406 C3 dwellings with parking, open space, landscaping and infrastructure.
Full Proposal
Development of 406 dwellings (use Class C3) including affordable housing, access, car parking, new areas of open space, landscaping, infrastructure and associated works.
Detail pages
- View live detail on council site
- No archived detail page available.
Documents
1 scott moncrieff street
Correspondence (D)
Not downloaded
· Council link
1.1 cringleford heights phase 2 transport assessment 2024 - final(16191065.1)
Report (K)
Not downloaded
· Council link
1.2 cringleford heights phase 2 transport assessment 2024 - final(16191065.1)
Report (K)
Not downloaded
· Council link
1.3 cringleford heights phase 2 transport assessment 2024 - final(16191065.1)
Report (K)
Not downloaded
· Council link
1.4 cringleford heights phase 2 transport assessment 2024 - final(16191065.1)
Report (K)
Not downloaded
· Council link
11 holliday avenue
Public Comment (D)
Not downloaded
· Council link
2 woolhouse way
Public Comment (D)
Not downloaded
· Council link
22 haldane drive
Public Comment (D)
Not downloaded
· Council link
24 haldane drive
Public Comment (D)
Not downloaded
· Council link
26 haldane drive
Public Comment (D)
Not downloaded
· Council link
4 church farm
Public Comment (D)
Not downloaded
· Council link
4 church farm - floods colney surface water
Public Comment (D)
Not downloaded
· Council link
4 church farm - groundwater assessment flooding susceptibility
Public Comment (D)
Not downloaded
· Council link
4 haldane drive
Correspondence (D)
Not downloaded
· Council link
46 haldane drive
Public Comment (D)
Not downloaded
· Council link
5 colney drive
Public Comment (D)
Not downloaded
· Council link
7 woodhouse way
Public Comment (D)
Not downloaded
· Council link
75 haldane drive
Public Comment (D)
Not downloaded
· Council link
Aa47
Drawing (K)
Not downloaded
· Council link
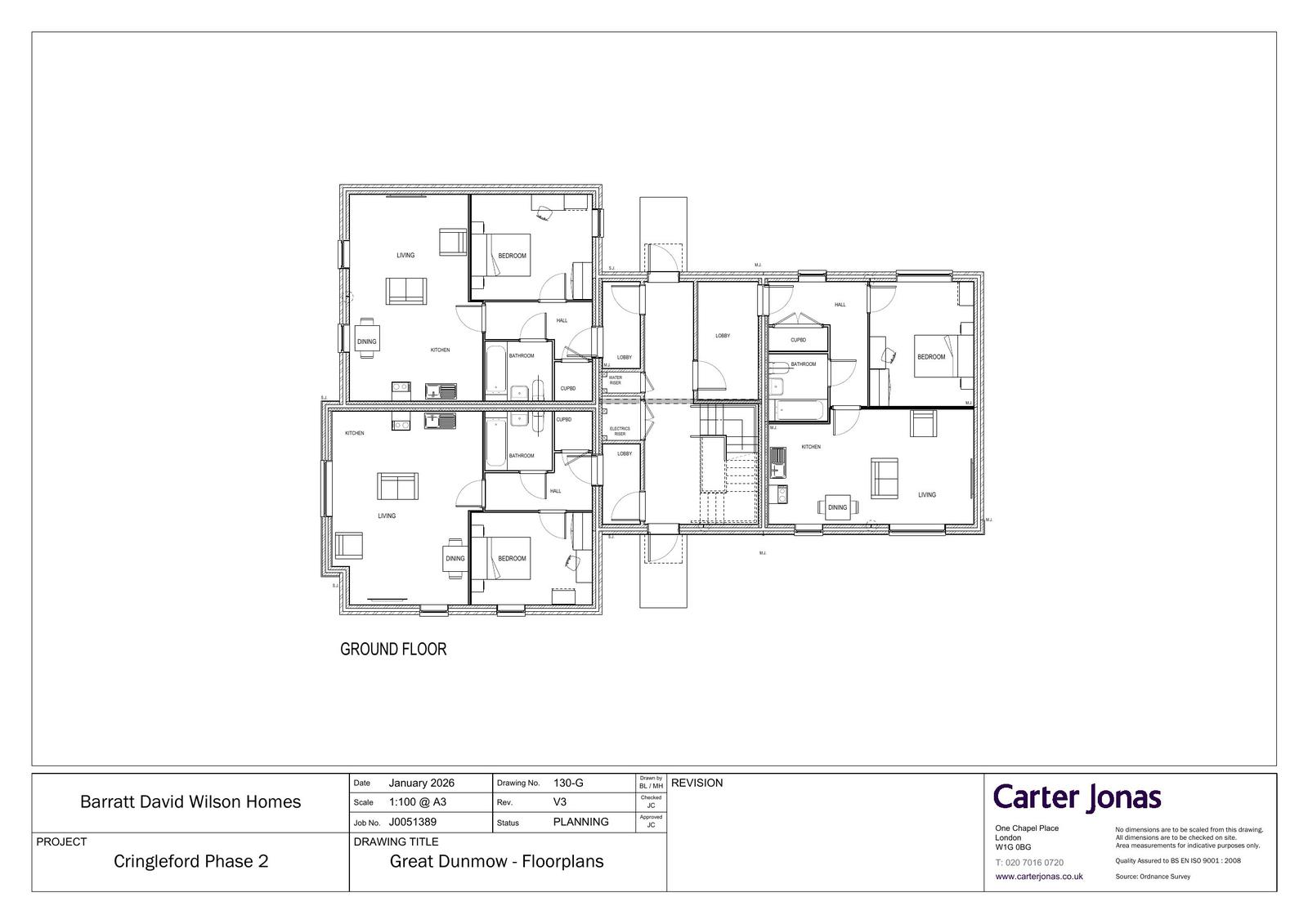
Aa47 - floorplans
Drawing (K)
Not downloaded
· Council link
Additional consultation instruction
Officer Notes
Not downloaded
· Council link
Air source heat pump noise assessment
Report (K)
Not downloaded
· Council link
Alder
Drawing (K)
Not downloaded
· Council link
Alder
Drawing (K)
Not downloaded
· Council link
Allerthorpe
Drawing (K)
Not downloaded
· Council link
Anglian water comment
Consultee Comment (D)
Not downloaded
· Council link
Anglian water comments
Consultee Comment (D)
Not downloaded
· Council link
Appendix a
Report (K)
Not downloaded
· Council link
Appendix b
Report (K)
Not downloaded
· Council link
Appendix c
Report (K)
Not downloaded
· Council link
Appendix d
Report (K)
Not downloaded
· Council link
Appendix e
Report (K)
Not downloaded
· Council link
Application form - redacted
Application Form (K)
Not downloaded
· Council link
Arboricultural impact assessment
Report (K)
Not downloaded
· Council link
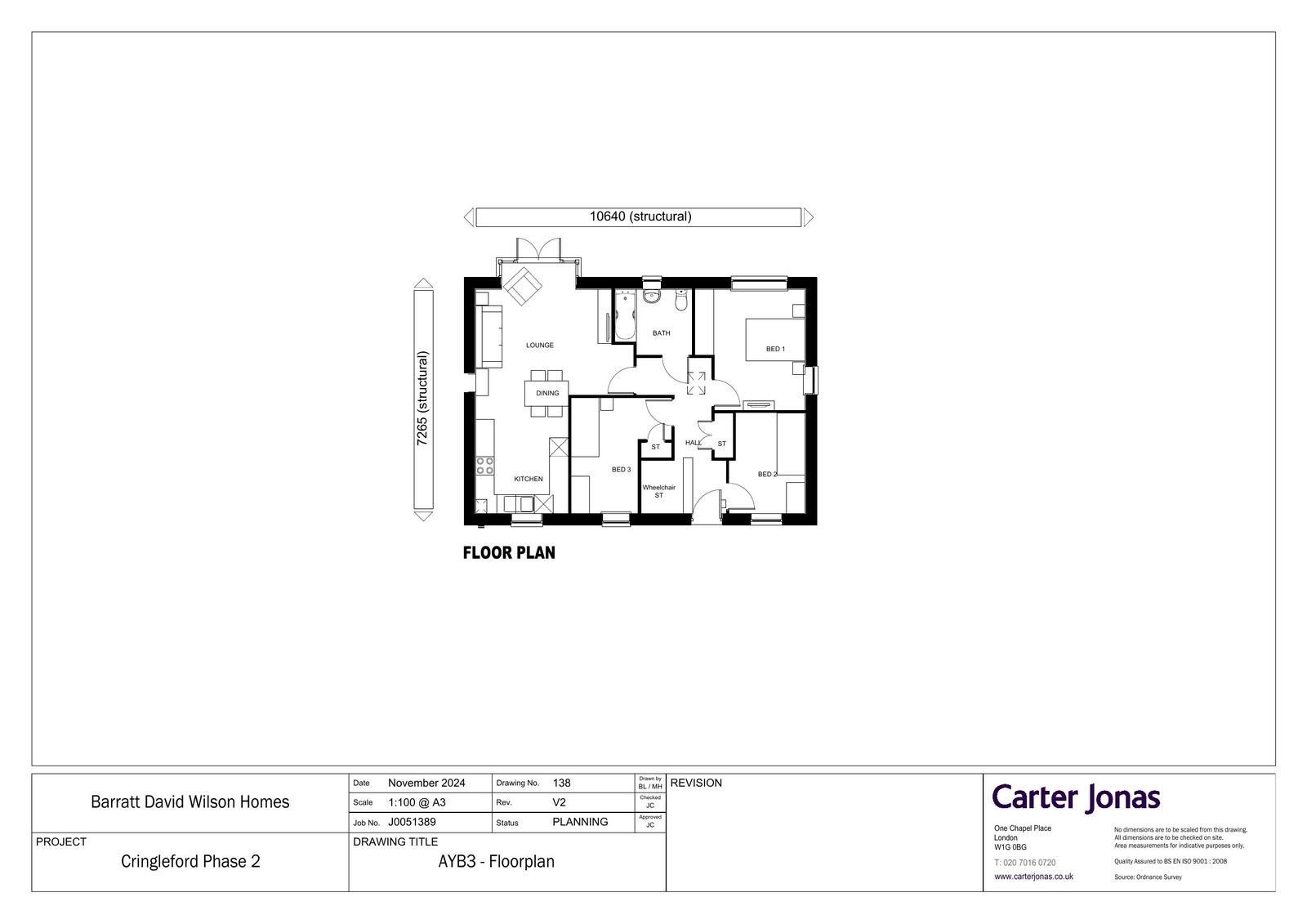
Ayb3
Drawing (K)
Not downloaded
· Council link
Ayb3 - floorplan
Drawing (K)
Not downloaded
· Council link
Beckingham
Drawing (K)
Not downloaded
· Council link
Beckingham - floorplans
Drawing (K)
Not downloaded
· Council link
Belbroughton
Drawing (K)
Not downloaded
· Council link
Belbroughton
Drawing (K)
Not downloaded
· Council link
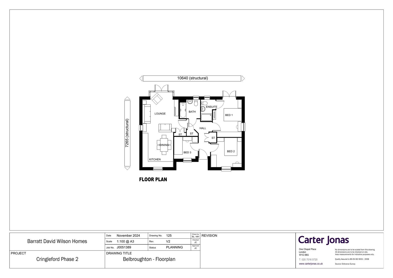
Belbroughton - floorplan
Drawing (K)
Not downloaded
· Council link
Biodiversity net gain assessment - design stage
Report (K)
Not downloaded
· Council link
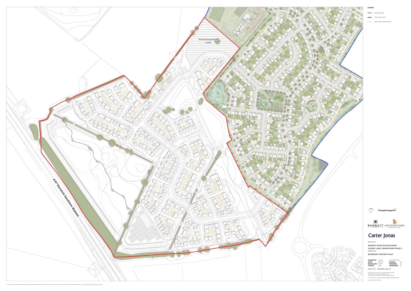
Boundary strategy plan
Drawing (K)
Not downloaded
· Council link
Boundary strategy plan
Drawing (K)
Not downloaded
· Council link
Boundary strategy plan
Revised Drawing (K)
Not downloaded
· Council link
Bund basin sections
Revised Drawing (K)
Not downloaded
· Council link
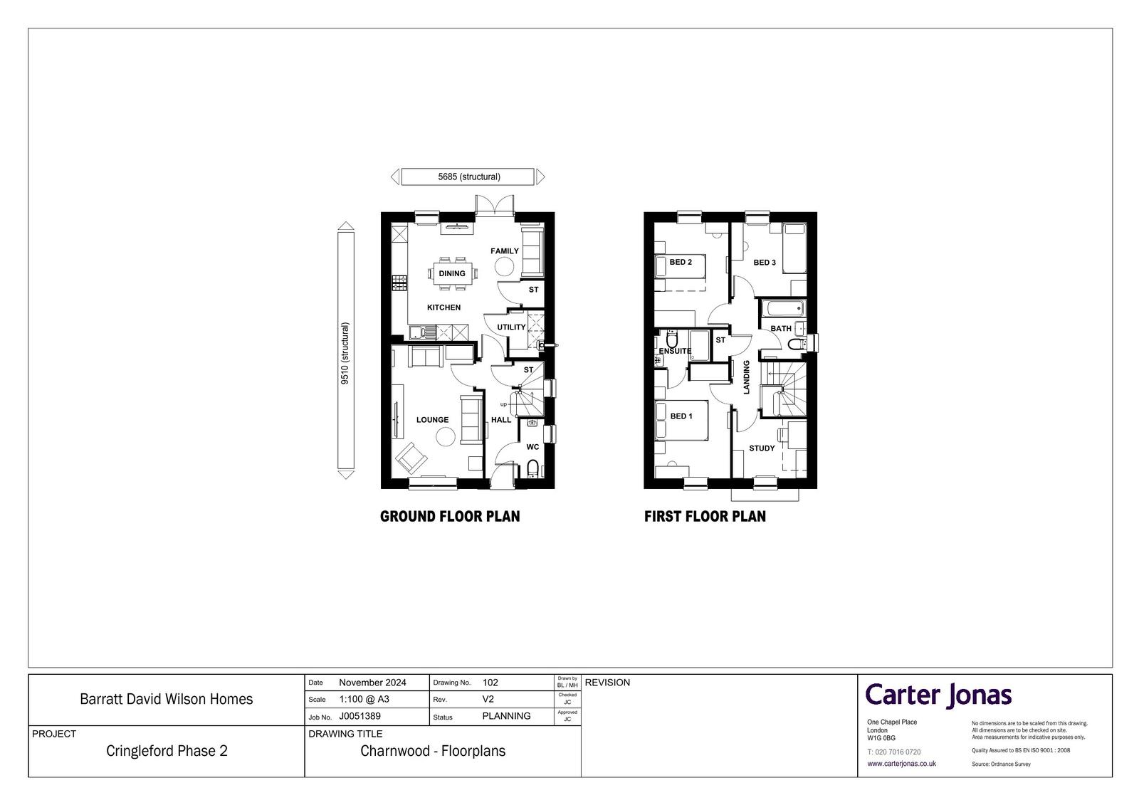
Charnwood
Drawing (K)
Not downloaded
· Council link
Charnwood
Drawing (K)
Not downloaded
· Council link
Charnwood -floorplans
Drawing (K)
Not downloaded
· Council link
Cil - form 1: cil additional info
CIL Documentation (K)
Not downloaded
· Council link
Cil - form 2 - assumption of liability
CIL Documentation (K)
Not downloaded
· Council link
Committee report
Delegated/Committee Report (K)
Not downloaded
· Council link
Construction details sheet 7
Drawing (K)
Not downloaded
· Council link
Consultant response to consultee comments on air quality and noise
Correspondence (D)
Not downloaded
· Council link
Conwy
Drawing (K)
Not downloaded
· Council link
Conwy
Drawing (K)
Not downloaded
· Council link
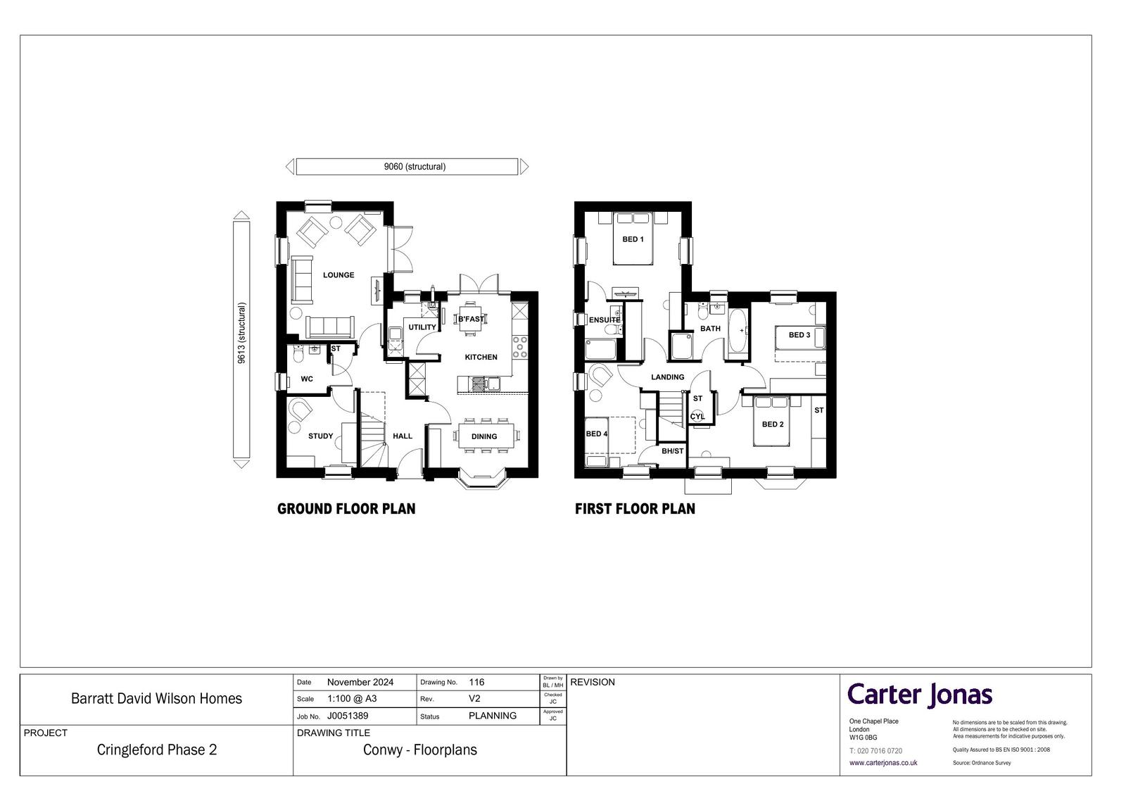
Conwy - floorplans
Drawing (K)
Not downloaded
· Council link
Covering letter scheme amendments
Correspondence (D)
Not downloaded
· Council link
Cringleford heights phase 2 travel plan 2024 final
Report (K)
Not downloaded
· Council link
Cringleford parish council
Consultee Comment (D)
Not downloaded
· Council link
Cringleford visualisation 1
Drawing (K)
Not downloaded
· Council link
Cringleford visualisation 2
Drawing (K)
Not downloaded
· Council link
Cringleford visualisation 3
Drawing (K)
Not downloaded
· Council link
Design and access statement - sections 10
Report (K)
Not downloaded
· Council link
Design and access statement - sections 4-5
Report (K)
Not downloaded
· Council link
Design and access statement - sections 6
Report (K)
Not downloaded
· Council link
Design and access statement - sections 7-9
Report (K)
Not downloaded
· Council link
Design and access statement sections 1-3
Report (K)
Not downloaded
· Council link
Design settings report
Report (K)
Not downloaded
· Council link
Design settings report -2
Report (K)
Not downloaded
· Council link
Design settings report -3
Report (K)
Not downloaded
· Council link
Design settings report -4
Report (K)
Not downloaded
· Council link
Designing out crime officer
Consultee Comment (D)
Not downloaded
· Council link
Designing out crime officer comment
Consultee Comment (D)
Not downloaded
· Council link
Detailed layout
Drawing (K)
Not downloaded
· Council link
Detailed layout (406 units)
Revised Drawing (K)
Not downloaded
· Council link
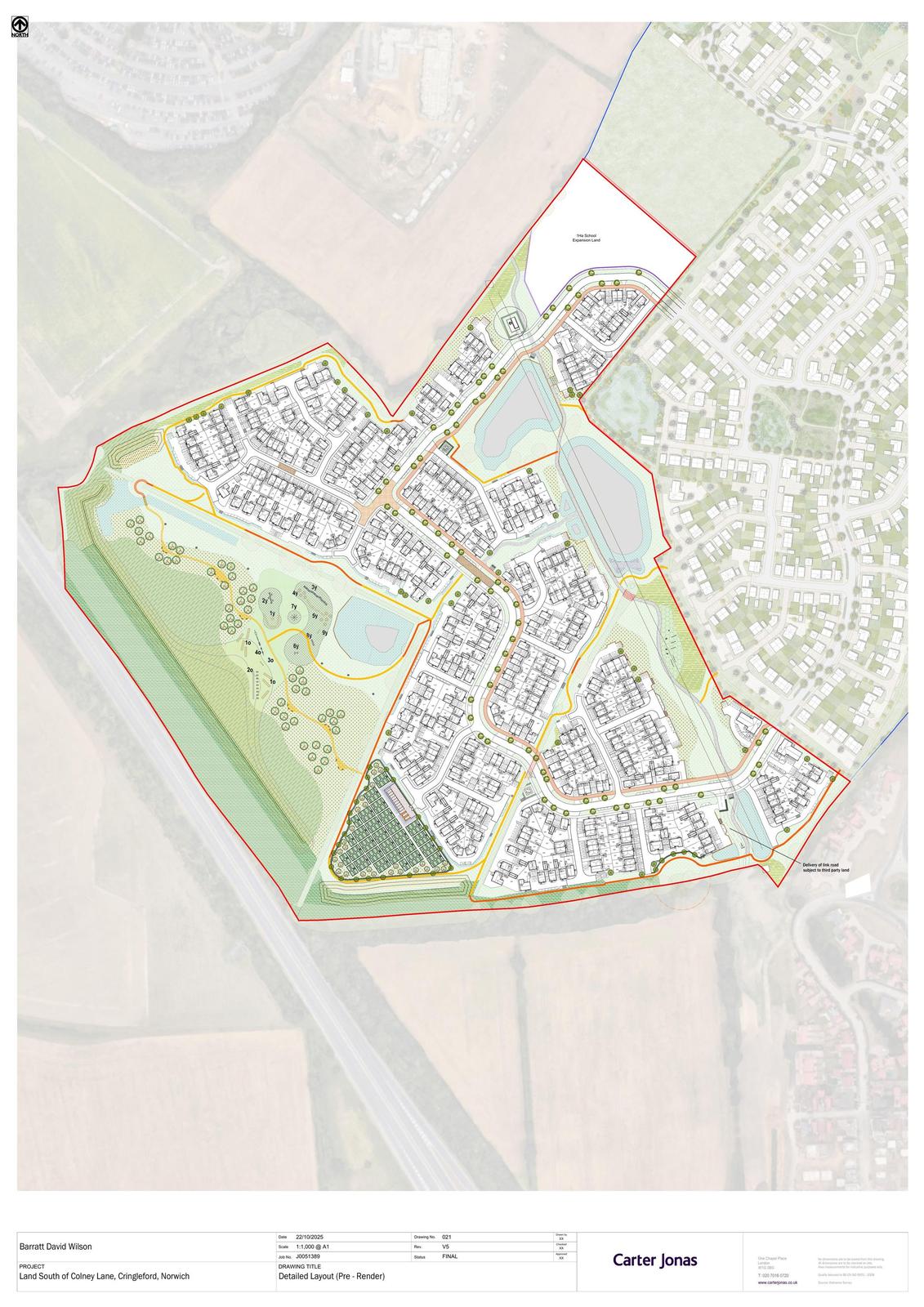
Detailed layout (pre-render)
Drawing (K)
Not downloaded
· Council link
Detailed layout - 406 units
Drawing (K)
Not downloaded
· Council link
District councillor comment
Consultee Comment (D)
Not downloaded
· Council link
Double garage
Drawing (K)
Not downloaded
· Council link
Draft report - soakaway tests
Report (K)
Not downloaded
· Council link
Draft report - soakaway tests
Report (K)
Not downloaded
· Council link
Draft sa logs 250416
Report (K)
Not downloaded
· Council link
Draft tp logs
Report (K)
Not downloaded
· Council link
Draft tp logs
Report (K)
Not downloaded
· Council link
Drainage - ffl
Report (K)
Not downloaded
· Council link
Drainage constraints plan
Revised Drawing (K)
Not downloaded
· Council link
Drainage construction details sheet 2
Revised Drawing (K)
Not downloaded
· Council link
Drainage construction details sheet 3
Revised Drawing (K)
Not downloaded
· Council link
Drainage construction details sheet 4
Revised Drawing (K)
Not downloaded
· Council link
Drainage construction details sheet 5
Revised Drawing (K)
Not downloaded
· Council link
Drainage construction details sheet 6
Revised Drawing (K)
Not downloaded
· Council link
Drainage construction details sheet 7
Revised Drawing (K)
Not downloaded
· Council link
Drainage deeper infiltration
Revised Drawing (K)
Not downloaded
· Council link
Drainage drained areas sheet 1
Revised Drawing (K)
Not downloaded
· Council link
Drainage exceedance plan
Revised Drawing (K)
Not downloaded
· Council link
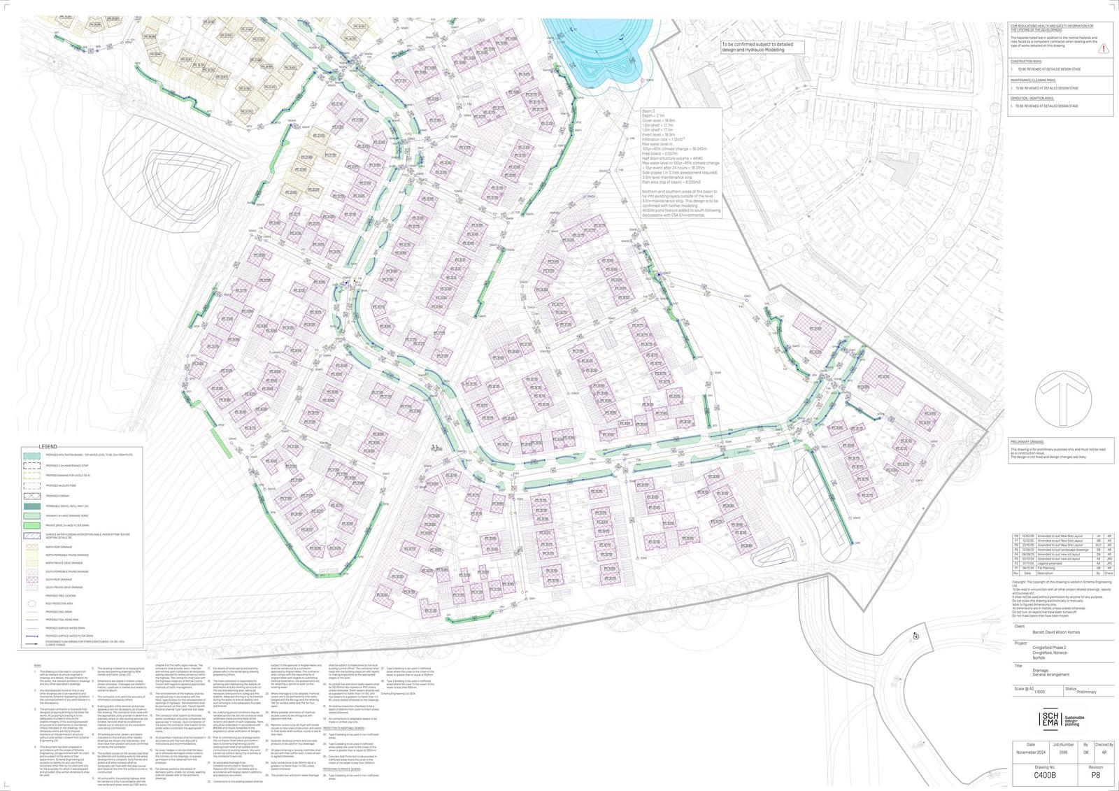
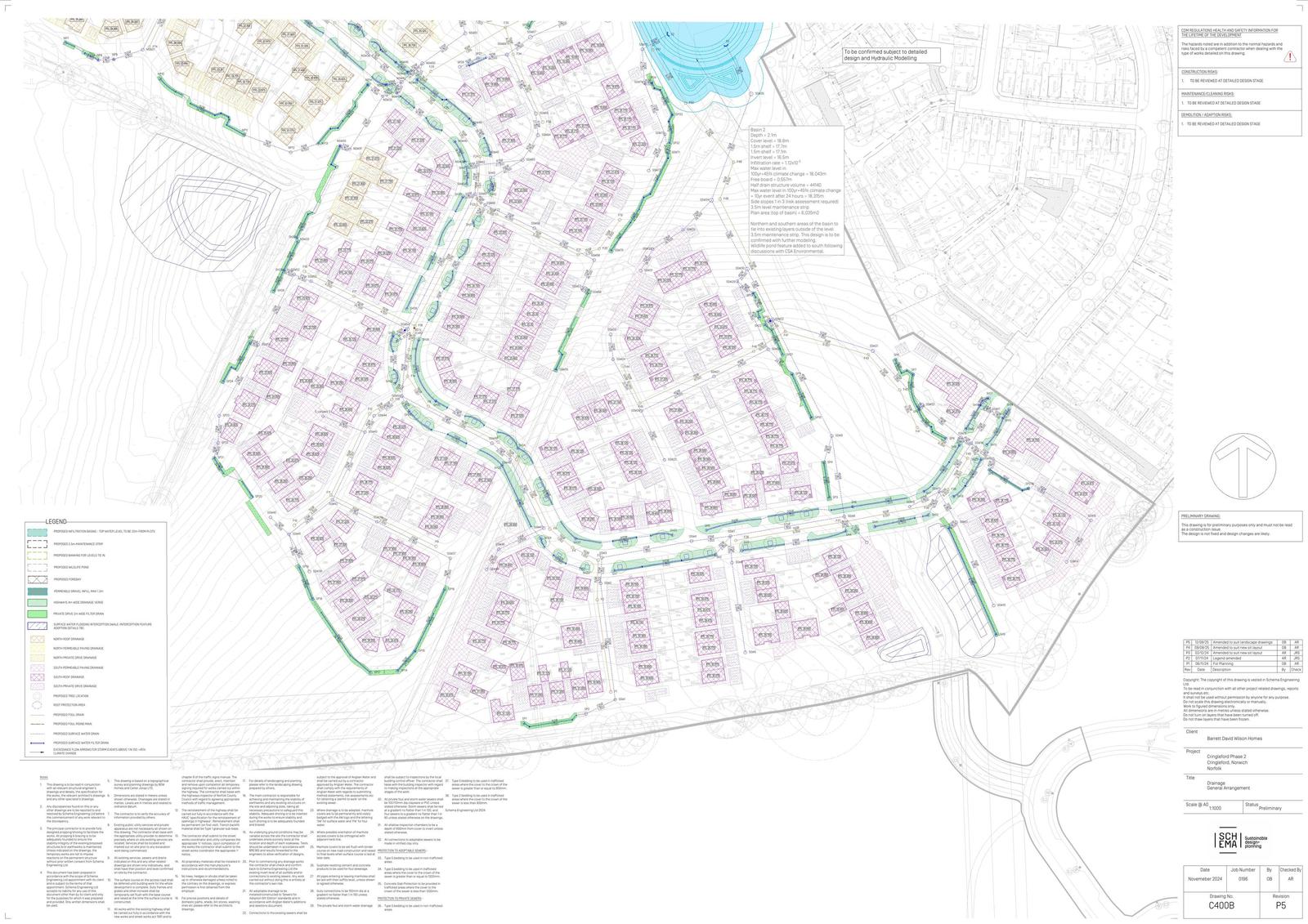
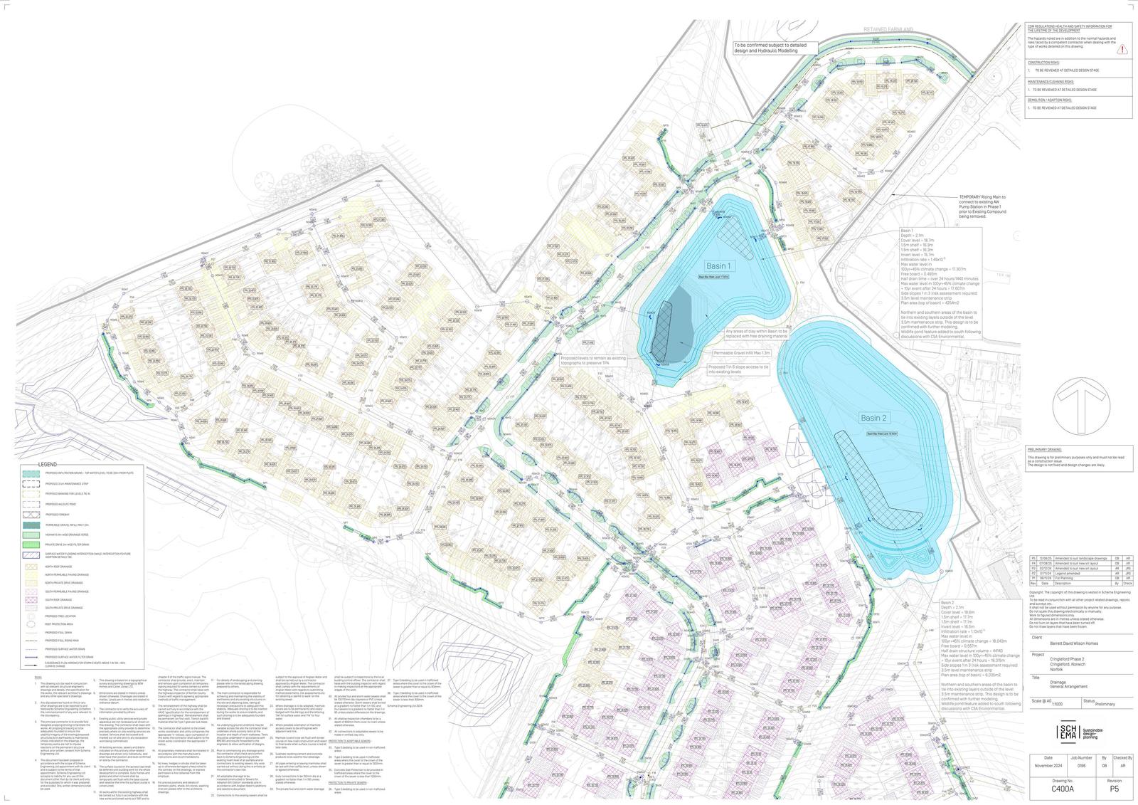
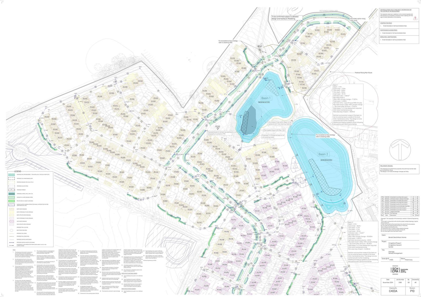
Drainage general arrangement
Revised Drawing (K)
Not downloaded
· Council link
Drainage general arrangement north side
Revised Drawing (K)
Not downloaded
· Council link
Drainage general arrangement south side
Revised Drawing (K)
Not downloaded
· Council link
Drainage maintenance and management plan
Revised Drawing (K)
Not downloaded
· Council link
Drainage overland flow
Revised Drawing (K)
Not downloaded
· Council link
Drawing
Drawing (K)
Not downloaded
· Council link
Drawing
Drawing (K)
Not downloaded
· Council link
Drawing
Drawing (K)
Not downloaded
· Council link
Drawing
Drawing (K)
Not downloaded
· Council link
Drawing
Drawing (K)
Not downloaded
· Council link
Drawing
Drawing (K)
Not downloaded
· Council link
Drawing & photos
Drawing (K)
Not downloaded
· Council link
Drawing issue sheet 1
Report (K)
Not downloaded
· Council link
Drawing issue sheet 2
Report (K)
Not downloaded
· Council link
Dunnet
Drawing (K)
Not downloaded
· Council link
East anglia air ambulance
Consultee Comment (D)
Not downloaded
· Council link
East of england ambulance service
Consultee Comment (D)
Not downloaded
· Council link
Ecological impact assessment - part 1
Appeal Correspondence (D)
Not downloaded
· Council link
Ecological impact assessment - part 2
Report (K)
Not downloaded
· Council link
Ecology and biodiversity officer
Consultee Comment (D)
Not downloaded
· Council link
Environment agency
Consultee Comment (D)
Not downloaded
· Council link
Environment agency comment
Consultee Comment (D)
Not downloaded
· Council link
Environmental management comments
Consultee Comment (D)
Not downloaded
· Council link
Environmental quality team
Consultee Comment (D)
Not downloaded
· Council link
Environmental quality team comments
Consultee Comment (D)
Not downloaded
· Council link
Archived copy
· Council link
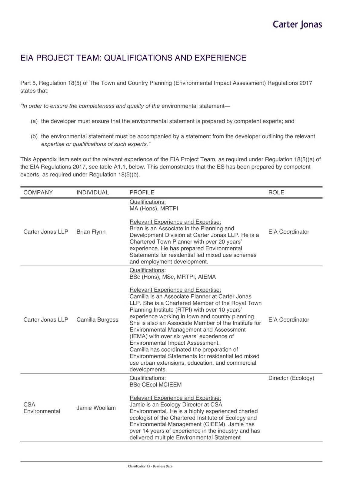
Environmental statement - appendix 1.2 eia project team
Report (K)
Not downloaded
· Council link
Environmental statement - appendix 4.1 2022/0548 - screening opinion
Report (K)
Not downloaded
· Council link
Environmental statement - appendix 4.2 2024/2972 - eia scoping response
Report (K)
Not downloaded
· Council link
Environmental statement - appendix 6.2 written scheme of investigation - trial t
Report (K)
Not downloaded
· Council link
Environmental statement - volume 1 ? main report
Report (K)
Not downloaded
· Council link
Environmental statement - volume 3 - non technical summary
Report (K)
Not downloaded
· Council link
Eot request from the parish council
BackGround Papers (K)
Not downloaded
· Council link
Eot request llfa
Consultee Comment (D)
Not downloaded
· Council link
Eot request- ncc planning obligations team
BackGround Papers (K)
Not downloaded
· Council link
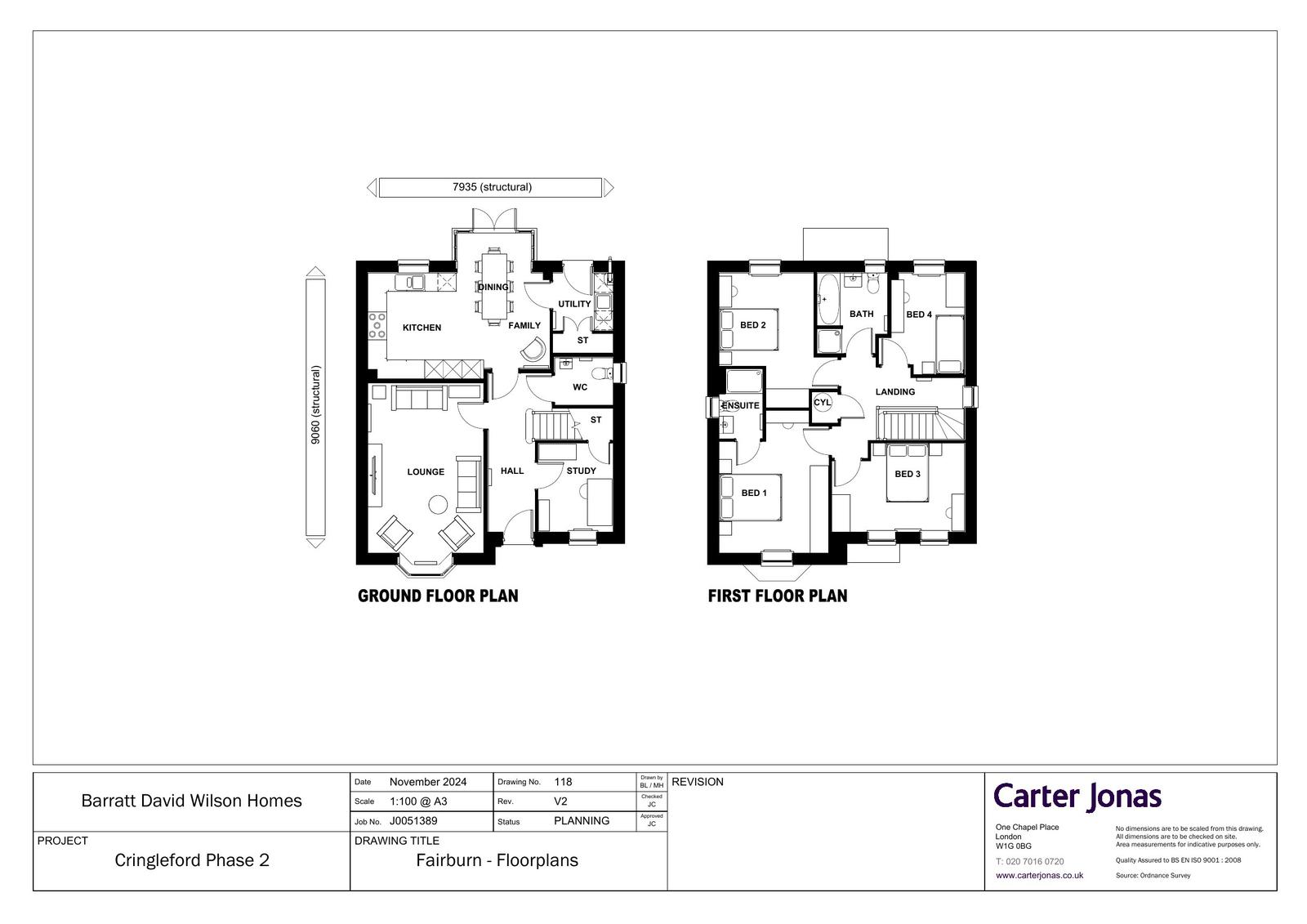
Fairburn
Drawing (K)
Not downloaded
· Council link
Fairburn
Drawing (K)
Not downloaded
· Council link
Fairburn - floorplans
Drawing (K)
Not downloaded
· Council link
Fieldwork location plan
Drawing (K)
Not downloaded
· Council link
Fieldwork location plan
Drawing (K)
Not downloaded
· Council link
Fieldwork location plan - trial pit - proposed development layout - south site
Report (K)
Not downloaded
· Council link
Fieldwork location plan - trial pits - proposed development layout - north site
Report (K)
Not downloaded
· Council link
Final trial pit logs
Drawing (K)
Not downloaded
· Council link
Final trial pits logs - reduced
Drawing (K)
Not downloaded
· Council link
Forward visibility splay
Revised Drawing (K)
Not downloaded
· Council link
Foxglove
Drawing (K)
Not downloaded
· Council link
Foxglove
Drawing (K)
Not downloaded
· Council link
Foxglove - floorplans
Drawing (K)
Not downloaded
· Council link
Fra drainage strategy report - appendix a - topographical survey
Report (K)
Not downloaded
· Council link
Fra drainage strategy report - appendix b - site investigation report aw asswt r
Report (K)
Not downloaded
· Council link
Archived copy
· Council link
Fra drainage strategy report_rev c_part1
Report (K)
Not downloaded
· Council link
Fra drainage strategy report_rev c_part10
Report (K)
Not downloaded
· Council link
Fra drainage strategy report_rev c_part11
Report (K)
Not downloaded
· Council link
Fra drainage strategy report_rev c_part12
Report (K)
Not downloaded
· Council link
Fra drainage strategy report_rev c_part13
Report (K)
Not downloaded
· Council link
Fra drainage strategy report_rev c_part14
Report (K)
Not downloaded
· Council link
Fra drainage strategy report_rev c_part15
Report (K)
Not downloaded
· Council link
Fra drainage strategy report_rev c_part16
Report (K)
Not downloaded
· Council link
Fra drainage strategy report_rev c_part2
Report (K)
Not downloaded
· Council link
Fra drainage strategy report_rev c_part4 (1)
Report (K)
Not downloaded
· Council link
Fra drainage strategy report_rev c_part5
Report (K)
Not downloaded
· Council link
Fra drainage strategy report_rev c_part6
Report (K)
Not downloaded
· Council link
Fra drainage strategy report_rev c_part7
Report (K)
Not downloaded
· Council link
Fra drainage strategy report_rev c_part8
Report (K)
Not downloaded
· Council link
Fra drainage strategy report_rev c_part9
Report (K)
Not downloaded
· Council link
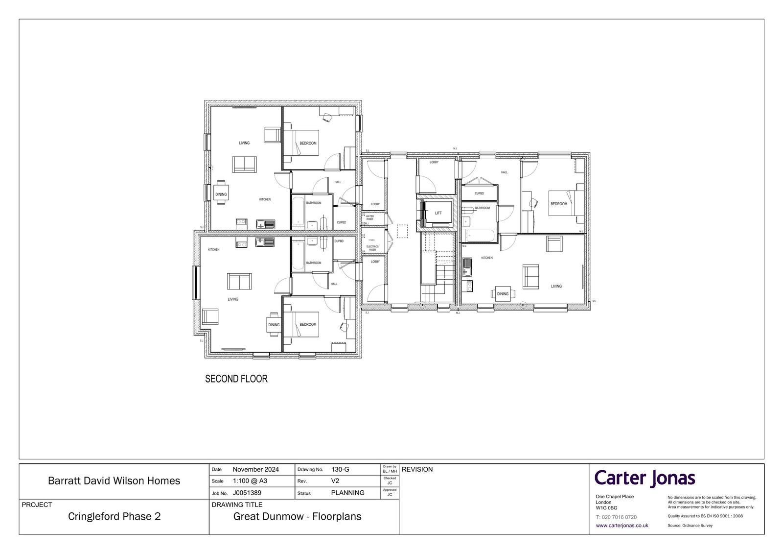
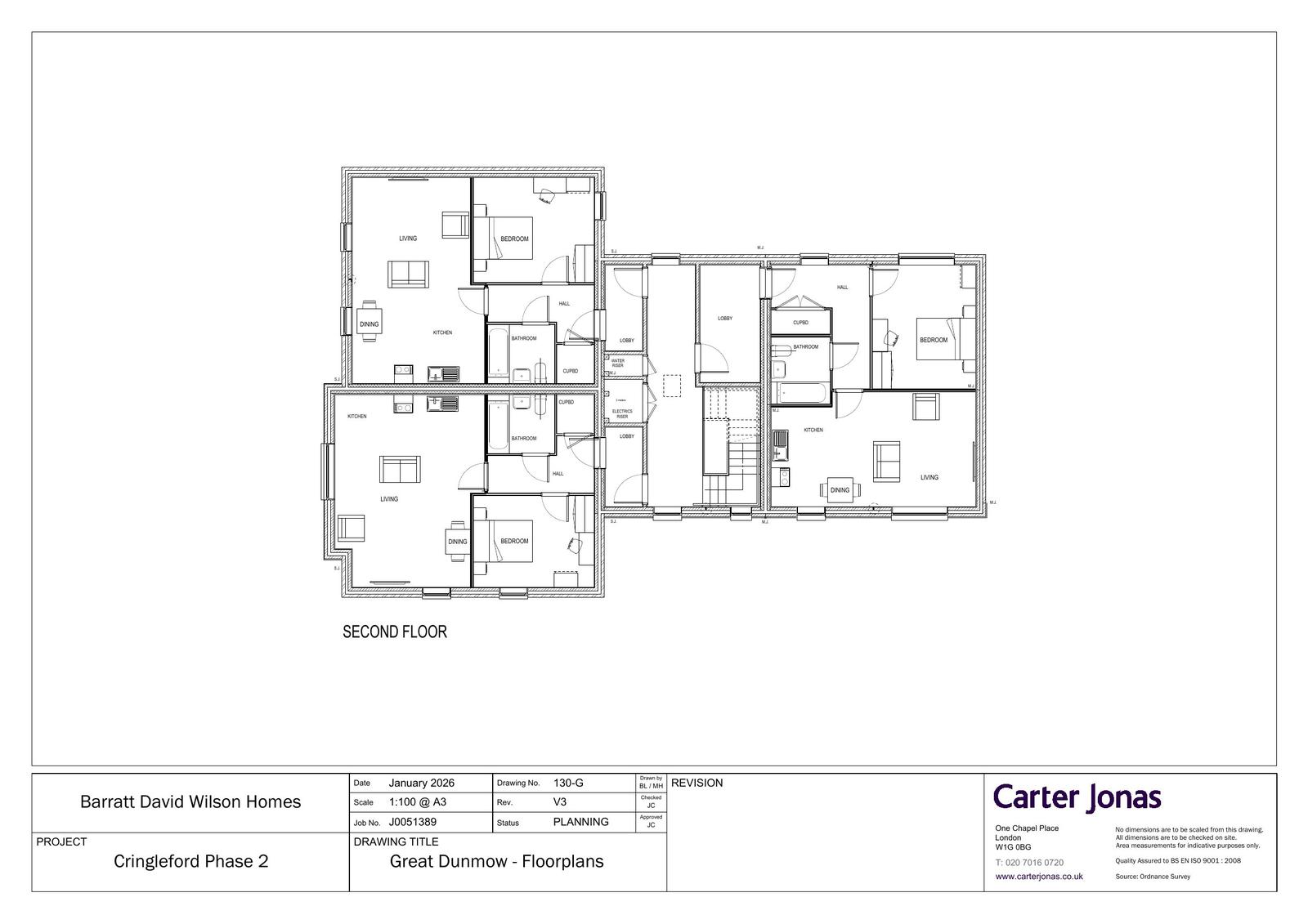
Great dunmow - elevations_1of2
Drawing (K)
Not downloaded
· Council link
Great dunmow - elevations_2of2
Drawing (K)
Not downloaded
· Council link
Great dunmow - floorplans_1of3
Drawing (K)
Not downloaded
· Council link
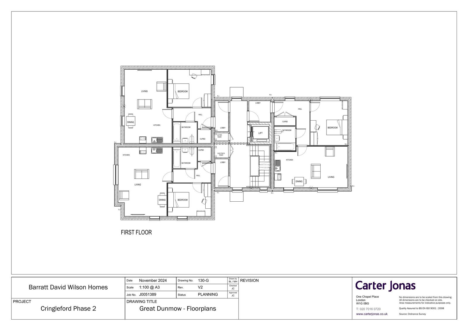
Great dunmow - floorplans_2of3
Drawing (K)
Not downloaded
· Council link
Great dunmow - floorplans_3of3
Drawing (K)
Not downloaded
· Council link
Ground improvement sheet 1
Revised Drawing (K)
Not downloaded
· Council link
Guelder
Drawing (K)
Not downloaded
· Council link
Habitat management and monitoring plan
Report (K)
Not downloaded
· Council link
Hamford
Drawing (K)
Not downloaded
· Council link
Heritage & design comment
Consultee Comment (D)
Not downloaded
· Council link
Highways comment
Consultee Comment (D)
Not downloaded
· Council link
Historic environment comment
Consultee Comment (D)
Not downloaded
· Council link
Historic environment comments
Consultee Comment (D)
Not downloaded
· Council link
Historic environment desk-based assessment
Report (K)
Not downloaded
· Council link
Historic environment desk-based assessment part 2
Report (K)
Not downloaded
· Council link
Holm
Drawing (K)
Not downloaded
· Council link
Holywell
Drawing (K)
Not downloaded
· Council link
Holywell
Drawing (K)
Not downloaded
· Council link
Holywell
Drawing (K)
Not downloaded
· Council link
Housing enabling officer
Consultee Comment (D)
Not downloaded
· Council link
Housing enabling officer
Consultee Comment (D)
Not downloaded
· Council link
Housing enabling officer comments
Consultee Comment (D)
Not downloaded
· Council link
Housing mix - phase 2_plot schedule_241212
Report (K)
Not downloaded
· Council link
Hoveton
Drawing (K)
Not downloaded
· Council link
Hoveton
Drawing (K)
Not downloaded
· Council link
Hydraulic modelling existing scenario q100+cc_30min no a47 sub catchment propose
Report (K)
Not downloaded
· Council link
Hydraulic modelling proposed scenario q100+cc_30min tilia link road constructed
Revised Drawing (K)
Not downloaded
· Council link
Hydraulic modelling report_rev a
Report (K)
Not downloaded
· Council link
Information to inform habitats regulations assessment
Report (K)
Not downloaded
· Council link
Issue sheet 1
BackGround Papers (K)
Not downloaded
· Council link
Issue sheet 2
BackGround Papers (K)
Not downloaded
· Council link
Kelling
Drawing (K)
Not downloaded
· Council link
Kelling
Drawing (K)
Not downloaded
· Council link
Kew
Drawing (K)
Not downloaded
· Council link
Kew
Drawing (K)
Not downloaded
· Council link
Kew
Drawing (K)
Not downloaded
· Council link
Knightwood - elevations
Drawing (K)
Not downloaded
· Council link
Knightwood - elevations
Drawing (K)
Not downloaded
· Council link
Knightwood - elevations
Drawing (K)
Not downloaded
· Council link
Knightwood - floorplans
Drawing (K)
Not downloaded
· Council link
Land use and accommodation schedule
Report (K)
Not downloaded
· Council link
Landscape and visual appraisal
Report (K)
Not downloaded
· Council link
Landscape and visual appraisal - appendix 1 figures 1-10 part 2
Report (K)
Not downloaded
· Council link
Landscape and visual appraisal - appendix 1 figures 1-10 part1
Report (K)
Not downloaded
· Council link
Landscape and visual appraisal - appendix 2 site photography figure 11
Report (K)
Not downloaded
· Council link
Landscape and visual appraisal - appendix 3 lva viewpoint photography
Report (K)
Not downloaded
· Council link
Landscape and visual appraisal - appendix 4 & 5
Report (K)
Not downloaded
· Council link
Landscape masterplan
Report (K)
Not downloaded
· Council link
Landscape masterplan
Revised Drawing (K)
Not downloaded
· Council link
Landscape masterplan
Drawing (K)
Not downloaded
· Council link
Langham
Drawing (K)
Not downloaded
· Council link
Lead local flood authority
Consultee Comment (D)
Not downloaded
· Council link
Lead local flood authority
Consultee Comment (D)
Not downloaded
· Council link
Llfa comments
Consultee Comment (D)
Not downloaded
· Council link
Llfa comments
Consultee Comment (D)
Not downloaded
· Council link
Local resident
Public Comment (D)
Not downloaded
· Council link
Location plan
Drawing (K)
Not downloaded
· Council link
Location plan
Revised Drawing (K)
Not downloaded
· Council link
Martham
Drawing (K)
Not downloaded
· Council link
Materiality plan
Drawing (K)
Not downloaded
· Council link
Materiality plan
Drawing (K)
Not downloaded
· Council link
Materiality plan
Revised Drawing (K)
Not downloaded
· Council link
Matlock
Drawing (K)
Not downloaded
· Council link
Matlock
Drawing (K)
Not downloaded
· Council link
Matlock
Drawing (K)
Not downloaded
· Council link
Mewstone
Drawing (K)
Not downloaded
· Council link
Mewstone
Drawing (K)
Not downloaded
· Council link
Mewstone
Drawing (K)
Not downloaded
· Council link
Mineral safeguarding assessment and materials management plan- minerals
Report (K)
Not downloaded
· Council link
N2b8 n2b9
Drawing (K)
Not downloaded
· Council link
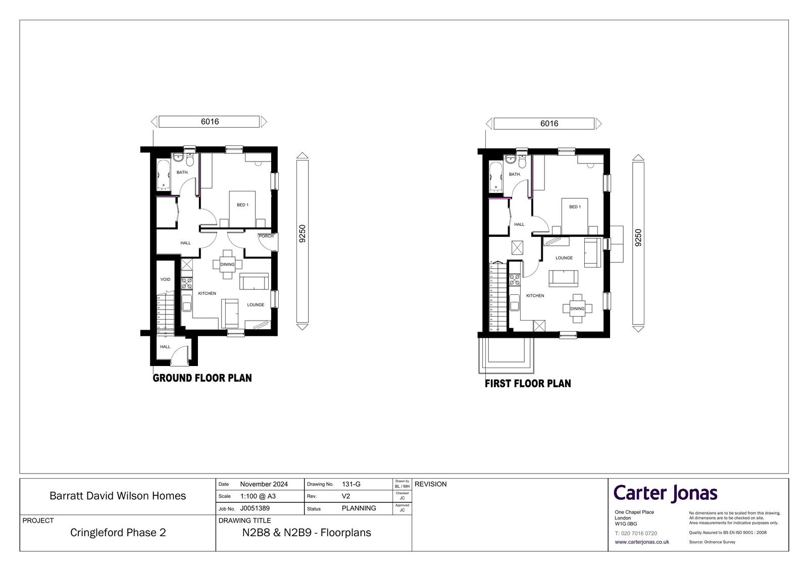
N2b8 n2b9 - floorplans
Drawing (K)
Not downloaded
· Council link
Ncc growth and investment comments
Consultee Comment (D)
Not downloaded
· Council link
Ncc highways
Consultee Comment (D)
Not downloaded
· Council link
Network_north 100yr +10yr event
Report (K)
Not downloaded
· Council link
Network_north 100yr+45%cc, 30yr+40%c
Report (K)
Not downloaded
· Council link
Network_south 100yr +10yr event
Report (K)
Not downloaded
· Council link
Network_south 100yr+45%cc, 30yr+40%cc
Report (K)
Not downloaded
· Council link
Nh emails
Correspondence (D)
Not downloaded
· Council link
Nh emails
Correspondence (D)
Not downloaded
· Council link
Nhs
Consultee Comment (D)
Not downloaded
· Council link
Nnams part 1
Report (K)
Not downloaded
· Council link
Nnams part 2
Report (K)
Not downloaded
· Council link
Nnams part 3
Appeal Correspondence (D)
Not downloaded
· Council link
Noise impact assessment_included_in_air quality assessment
Report (K)
Not downloaded
· Council link
Noise vibration and air quality impact a
Report (K)
Not downloaded
· Council link
Norfolk and waveney integrated care system (ics)
Consultee Comment (D)
Not downloaded
· Council link
Norwich airport
Consultee Comment (D)
Not downloaded
· Council link
Norwich airport comments
Consultee Comment (D)
Not downloaded
· Council link
Nutrient calculator
Report (K)
Not downloaded
· Council link
Nutrient neutrality assessment and mitigation strategy
BackGround Papers (K)
Not downloaded
· Council link
Nutrient neutrality team
Consultee Comment (D)
Not downloaded
· Council link
Officer request for reconsultation
BackGround Papers (K)
Not downloaded
· Council link
Officer request for reconsultation
BackGround Papers (K)
Not downloaded
· Council link
Ollerton
Drawing (K)
Not downloaded
· Council link
Ollerton
Drawing (K)
Not downloaded
· Council link
Ollerton - floorplans
Drawing (K)
Not downloaded
· Council link
Open space area drawing
Drawing (K)
Not downloaded
· Council link
Parish council
Consultee Comment (D)
Not downloaded
· Council link
Parish council comment
Consultee Comment (D)
Not downloaded
· Council link
Parish councile extension of time request
Consultee Comment (D)
Not downloaded
· Council link
Parking strategy plan
Drawing (K)
Not downloaded
· Council link
Parking strategy plan
Revised Drawing (K)
Not downloaded
· Council link
Parking strategy plan_a01000
Drawing (K)
Not downloaded
· Council link
Phase 2 hydraulic modelling report rev a
Report (K)
Not downloaded
· Council link
Planning obligations team
Consultee Comment (D)
Not downloaded
· Council link
Planning statement
Report (K)
Not downloaded
· Council link
Press advert
BackGround Papers (K)
Not downloaded
· Council link
Private drainage construction details sheet 1
Revised Drawing (K)
Not downloaded
· Council link
Proposed basin sections
Revised Drawing (K)
Not downloaded
· Council link
Proposed highway tracking sheet 1 of 9 - snc mercedes econic 8x4 refuse vehicle
Revised Drawing (K)
Not downloaded
· Council link
Proposed highway tracking sheet 2 of 9 - snc mercedes econic 8x4 refuse vehicle
Revised Drawing (K)
Not downloaded
· Council link
Proposed highway tracking sheet 3 of 9 - snc mercedes econic 8x4 refuse vehicle
Revised Drawing (K)
Not downloaded
· Council link
Proposed highway tracking sheet 4 of 9 - fire appliance
Revised Drawing (K)
Not downloaded
· Council link
Proposed highway tracking sheet 5 of 9 - fire appliance
Revised Drawing (K)
Not downloaded
· Council link
Proposed highway tracking sheet 6 of 9 - fire appliance
Revised Drawing (K)
Not downloaded
· Council link
Proposed highway tracking sheet 7 of 9 - mercedes sprinter delivery van
Revised Drawing (K)
Not downloaded
· Council link
Proposed highway vehicle tracking sheet 8 of 9 - mercedes sprinter delivery van
Revised Drawing (K)
Not downloaded
· Council link
Proposed highway vehicle tracking sheet 9 of 9 - mercedes sprinter delivery van
Revised Drawing (K)
Not downloaded
· Council link
Proposed toucan crossing
Drawing (K)
Not downloaded
· Council link
Proposed toucan crossing
Report (K)
Not downloaded
· Council link
Public comment
Public Comment (D)
Not downloaded
· Council link
Public health officer
Consultee Comment (D)
Not downloaded
· Council link
Re consultation request
Officer Notes
Not downloaded
· Council link
Re-consultation email
Correspondence (D)
Not downloaded
· Council link
Re-consultation instruction
Officer Notes
Not downloaded
· Council link
Redford
Drawing (K)
Not downloaded
· Council link
Redford
Drawing (K)
Not downloaded
· Council link
Redford
Drawing (K)
Not downloaded
· Council link
Refuse strategy plan
Drawing (K)
Not downloaded
· Council link
Refuse strategy plan
Revised Drawing (K)
Not downloaded
· Council link
Refuse strategy plan_a01000
Drawing (K)
Not downloaded
· Council link
Report - soakaway tests
Report (K)
Not downloaded
· Council link
Report - soakaway tests modified
Report (K)
Not downloaded
· Council link
Report - soakaway tests modified - reduced
Report (K)
Not downloaded
· Council link
Response to llfa
Report (K)
Not downloaded
· Council link
Response to llfa comments
Report (K)
Not downloaded
· Council link
Returned post-38 woolhouse way
Correspondence (D)
Not downloaded
· Council link
Revised nnams
BackGround Papers (K)
Not downloaded
· Council link
Revised submission covering letter
Report (K)
Not downloaded
· Council link
Road dimensions
Drawing (K)
Not downloaded
· Council link
Roof plan
Revised Drawing (K)
Not downloaded
· Council link
Roof plan
Drawing (K)
Not downloaded
· Council link
Roof plan
Drawing (K)
Not downloaded
· Council link
Rowan
Drawing (K)
Not downloaded
· Council link
Salthome
Drawing (K)
Not downloaded
· Council link
Schema response
Correspondence (D)
Not downloaded
· Council link
Senior heritage & design officer
Consultee Comment (D)
Not downloaded
· Council link
Sh50
Drawing (K)
Not downloaded
· Council link
Sh50
Drawing (K)
Not downloaded
· Council link
Sh52
Drawing (K)
Not downloaded
· Council link
Sh52
Drawing (K)
Not downloaded
· Council link
Sh52 - floorplans
Drawing (K)
Not downloaded
· Council link
Sh55
Drawing (K)
Not downloaded
· Council link
Sh55
Drawing (K)
Not downloaded
· Council link
Sh55 - floorplans
Drawing (K)
Not downloaded
· Council link
Shared twin garage
Drawing (K)
Not downloaded
· Council link
Simulation settings
Report (K)
Not downloaded
· Council link
Single garage
Drawing (K)
Not downloaded
· Council link
Site investigation report
Report (K)
Not downloaded
· Council link
Site investigation report - part 1
Report (K)
Not downloaded
· Council link
Site investigation report - part 2
Report (K)
Not downloaded
· Council link
Site location plan
Drawing (K)
Archived copy
· Council link
Soakaway tests modified
Report (K)
Not downloaded
· Council link
Speed restraints
Revised Drawing (K)
Not downloaded
· Council link
Speed restraints
Drawing (K)
Not downloaded
· Council link
Statement of community involvement - november 2024
Report (K)
Not downloaded
· Council link
Statutory bng metric calculation tool
Report (K)
Not downloaded
· Council link
Streetscenes a-aa and b-bb
Drawing (K)
Not downloaded
· Council link
Streetscenes c-cc and d-dd
Drawing (K)
Not downloaded
· Council link
Sudbury
Drawing (K)
Not downloaded
· Council link
Sudbury
Drawing (K)
Not downloaded
· Council link
Sudbury - floorplans
Drawing (K)
Not downloaded
· Council link
Suds banking coefficient calculations
BackGround Papers (K)
Not downloaded
· Council link
Supplementary site investigation report
Report (K)
Not downloaded
· Council link
Sustainability statement
Report (K)
Not downloaded
· Council link
Tenure strategy plan
Drawing (K)
Not downloaded
· Council link
Tenure strategy plan
Drawing (K)
Not downloaded
· Council link
Tenure strategy plan
Revised Drawing (K)
Not downloaded
· Council link
Tollie
Drawing (K)
Not downloaded
· Council link
Tracking plan sheet 1
Drawing (K)
Not downloaded
· Council link
Tracking plan sheet 2
Drawing (K)
Not downloaded
· Council link
Tracking plan sheet 3
Drawing (K)
Not downloaded
· Council link
Tracking plan sheet 4
Drawing (K)
Not downloaded
· Council link
Tracking plan sheet 5
Drawing (K)
Not downloaded
· Council link
Tracking plan sheet 6
Drawing (K)
Not downloaded
· Council link
Tracking plan sheet 7
Drawing (K)
Not downloaded
· Council link
Tracking plan sheet 8
Drawing (K)
Not downloaded
· Council link
Tracking plan sheet 9
Drawing (K)
Not downloaded
· Council link
Tree survey and constraints plan
Drawing (K)
Not downloaded
· Council link
Tree survey schedule
Report (K)
Not downloaded
· Council link
Trial pit logs
Report (K)
Not downloaded
· Council link
Type 50
Drawing (K)
Not downloaded
· Council link
Type 50
Drawing (K)
Not downloaded
· Council link
Type 52
Drawing (K)
Not downloaded
· Council link
Type 52
Drawing (K)
Not downloaded
· Council link
Type 52 - floorplans
Drawing (K)
Not downloaded
· Council link
Type 54
Drawing (K)
Not downloaded
· Council link
Type 54 - floorplans
Drawing (K)
Not downloaded
· Council link
Type 55
Drawing (K)
Not downloaded
· Council link
Type 55
Drawing (K)
Not downloaded
· Council link
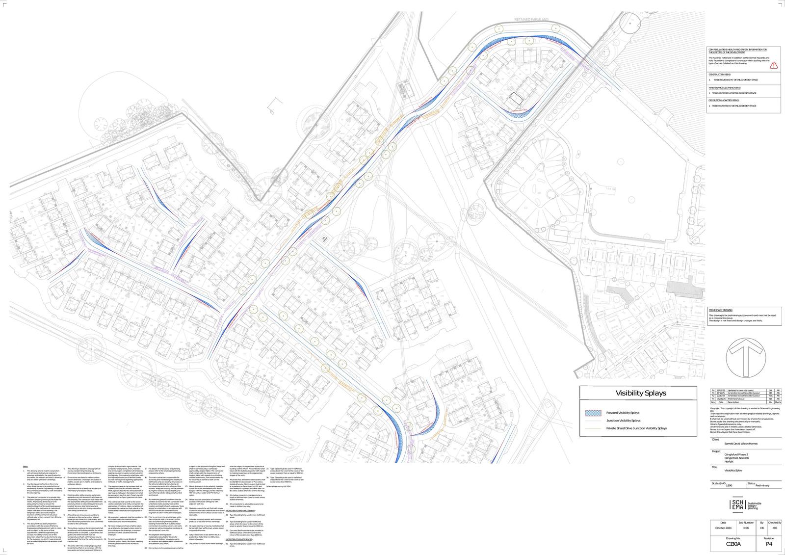
Visiblity splays
Drawing (K)
Not downloaded
· Council link
Visiblity splays
Drawing (K)
Not downloaded
· Council link
Water management alliance
Consultee Comment (D)
Not downloaded
· Council link
Water management alliance comments
Consultee Comment (D)
Not downloaded
· Council link
Water management alliance comments
Consultee Comment (D)
Not downloaded
· Council link
Water management alliance comments
Consultee Comment (D)
Not downloaded
· Council link
Water resource information submitted
Report (K)
Not downloaded
· Council link
Windy ridge
Public Comment (D)
Not downloaded
· Council link
Ype 5 - floorplans
Drawing (K)
Not downloaded
· Council link