← Broadland and South Norfolk Council

Status

Pending Consideration Change of use
Received
13 Mar 2025
New homes
0

Full proposal

Garage conversion to office,gym & utility room and associated minor external and internal alterations. Retrospective change of use from stable block to holiday let

Documents

Site LocationPlan (K)
Archived · Original link
Application form redacted
Application Form (K)
Not yet archived · Original link
Chimney work main house
Drawing (K)
Not yet archived · Original link
Design and access statement
Report (K)
Not yet archived · Original link
Exisitng elevations stable block
Drawing (K)
Not yet archived · Original link
Existing plans stable block
Drawing (K)
Not yet archived · Original link
Heritage statement
Report (K)
Not yet archived · Original link
Location plans
Site LocationPlan (K)
Not yet archived · Original link
Photos stable block
Photo (K)
Not yet archived · Original link
Press advert
BackGround Papers (K)
Not yet archived · Original link
Proposed elevations stable block
Drawing (K)
Not yet archived · Original link
Proposed garage conversion plans
Drawing (K)
Not yet archived · Original link
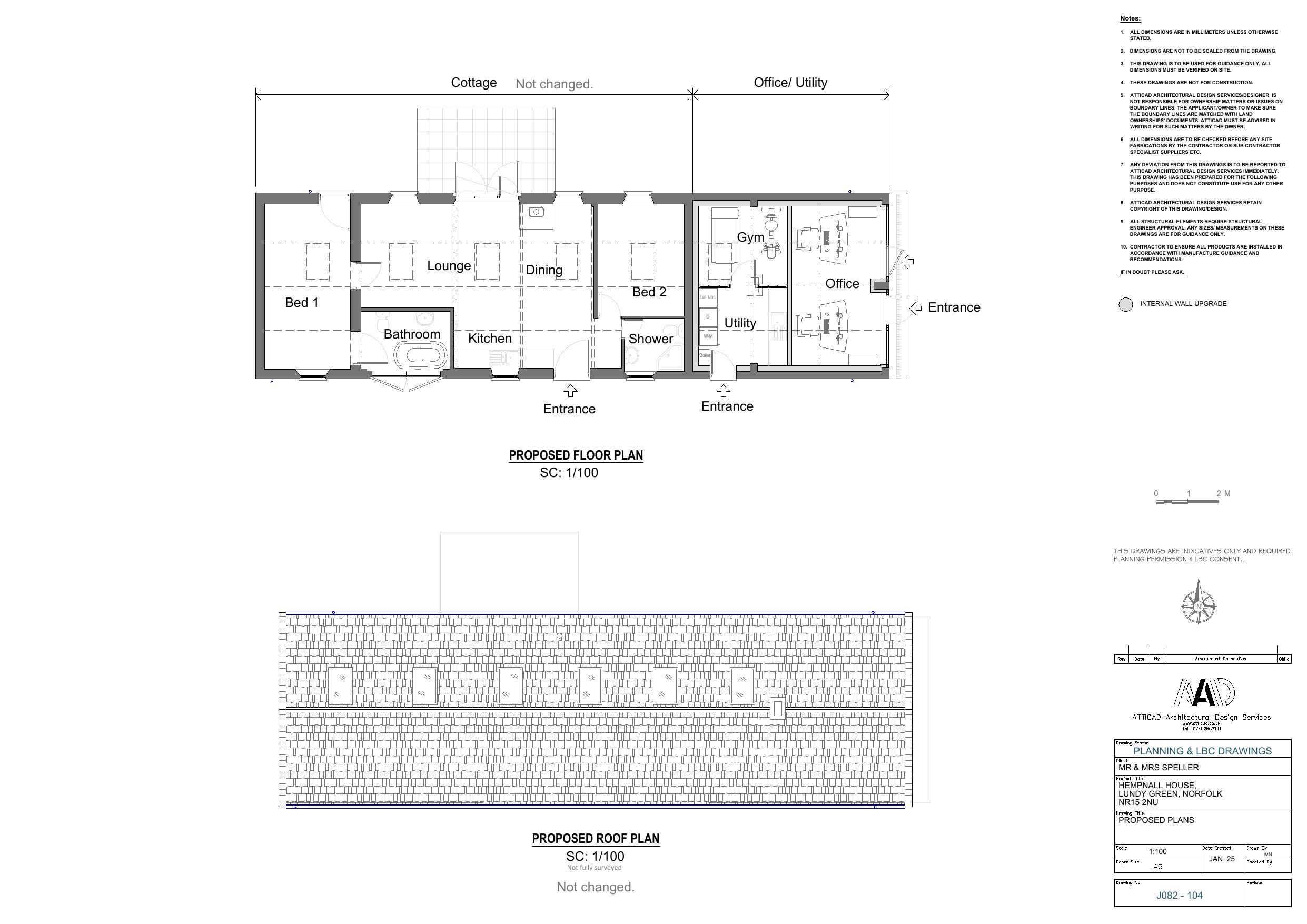
Proposed office gym utility garage
Drawing (K)
Not yet archived · Original link
Drawing (K)
Archived · Original link
Proposed window main house-
Drawing (K)
Not yet archived · Original link
Proposed wood burner main house
Drawing (K)
Not yet archived · Original link
Senior heritage & design officer
Consultee Comment (D)
Not yet archived · Original link
Site photos
Photo (K)
Not yet archived · Original link
Windows cider house linked extension
Drawing (K)
Not yet archived · Original link
Windows doors colour main house
Drawing (K)
Not yet archived · Original link

Have your say

Your comment matters. Councils must consider every representation that raises material planning considerations.

Write a comment