← Broadland and South Norfolk Council

Status

Pending Decision New housing
Received
22 Jul 2025
New homes
0

Summary

Erection of new self‑build dwelling and demolition of existing building.

Full proposal

Erection of new self-build dwelling and demolition of existing building

Documents

Appendix 2 - screening assessment form
Report (K)
Not yet archived · Original link
Applicant correspondence
Correspondence (D)
Not yet archived · Original link
Arboricultural impact assessment
Report (K)
Not yet archived · Original link
Cil additional info form
CIL Documentation (K)
Not yet archived · Original link
Design and access statement
Report (K)
Not yet archived · Original link
Ecological impact assessment
Report (K)
Not yet archived · Original link
Email from agent re policy 7.5
BackGround Papers (K)
Not yet archived · Original link
Environmental management officer
Consultee Comment (D)
Not yet archived · Original link
Eot agreement from agent until 24/10/2025
Correspondence (D)
Not yet archived · Original link
Eot agreement from agent until 31/12/2025
Correspondence (D)
Not yet archived · Original link
Full application form
Application Form (K)
Not yet archived · Original link
Highways
Consultee Comment (D)
Not yet archived · Original link
Norfolk calculator - impact of existing farmhouse with existing septic tank
Report (K)
Not yet archived · Original link
Norfolk calculator - impact of existing farmhouse with new graf one2clean stp
Report (K)
Not yet archived · Original link
Norfolk calculator - impact of existing farmhouse with new graf one2clean stp
Report (K)
Not yet archived · Original link
Norfolk calculator - impact of new dwelling - no mitigation
Report (K)
Not yet archived · Original link
Norfolk calculator - impact of new dwelling mitigation
Report (K)
Not yet archived · Original link
Norfolk calculator impact of existing farmhouse with existing septic tank
Report (K)
Not yet archived · Original link
Nutrient neutrality solution summary
Report (K)
Not yet archived · Original link
Old buckenham airfield
Consultee Comment (D)
Not yet archived · Original link
Parish council comments
Consultee Comment (D)
Not yet archived · Original link
Photo sheet
Photo (K)
Not yet archived · Original link
Press advert
BackGround Papers (K)
Not yet archived · Original link
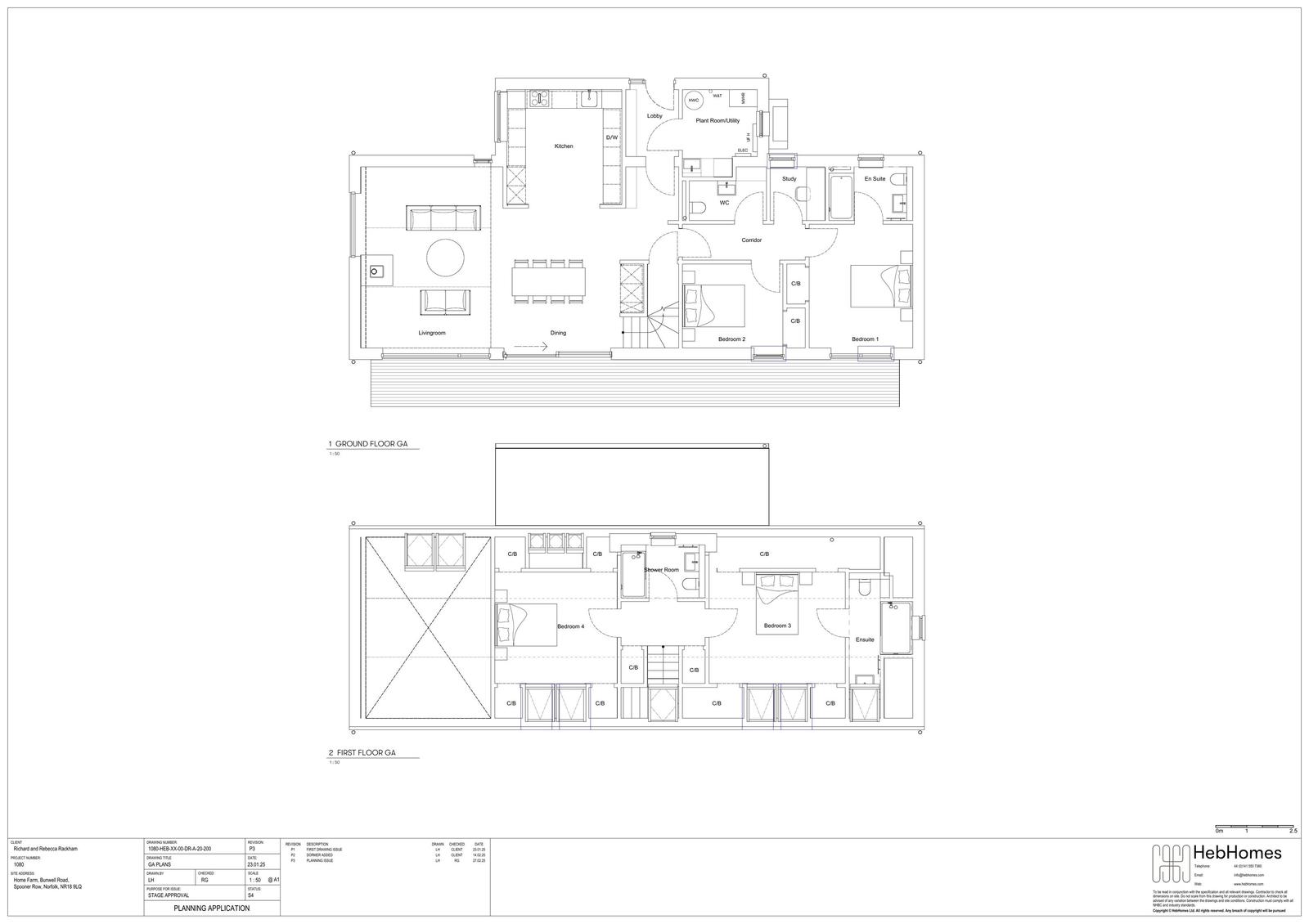
Proposed elevations
Drawing (K)
Not yet archived · Original link
Drawing (K)
Archived · Original link
Drawing (K)
Archived · Original link
Zoe campbell
Public Comment (D)
Not yet archived · Original link

Have your say

Your comment matters. Councils must consider every representation that raises material planning considerations.

Write a comment