← Broadland and South Norfolk Council

Status

Pending Consideration Change of use
Received
06 Aug 2025
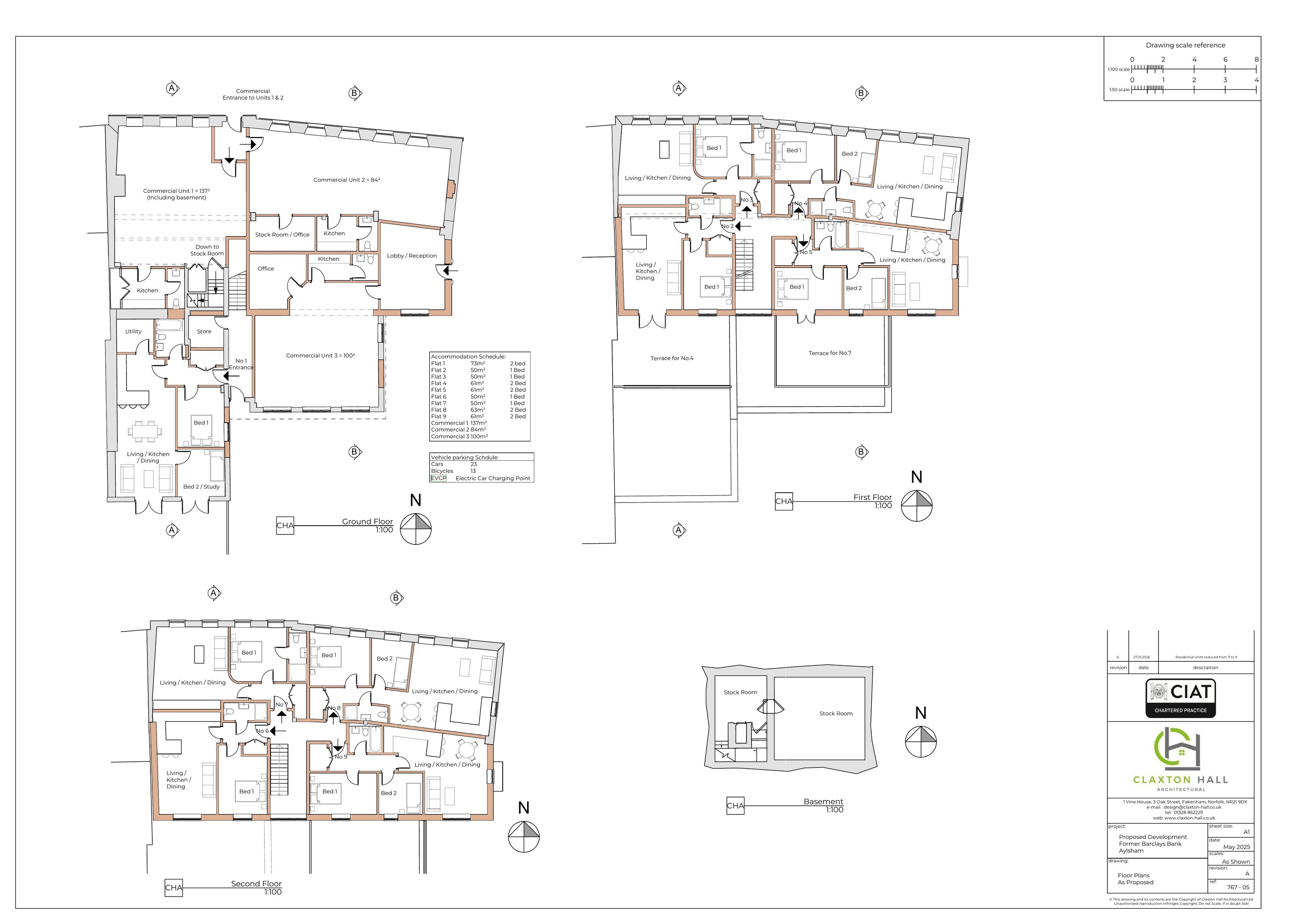
New homes
9

Full proposal

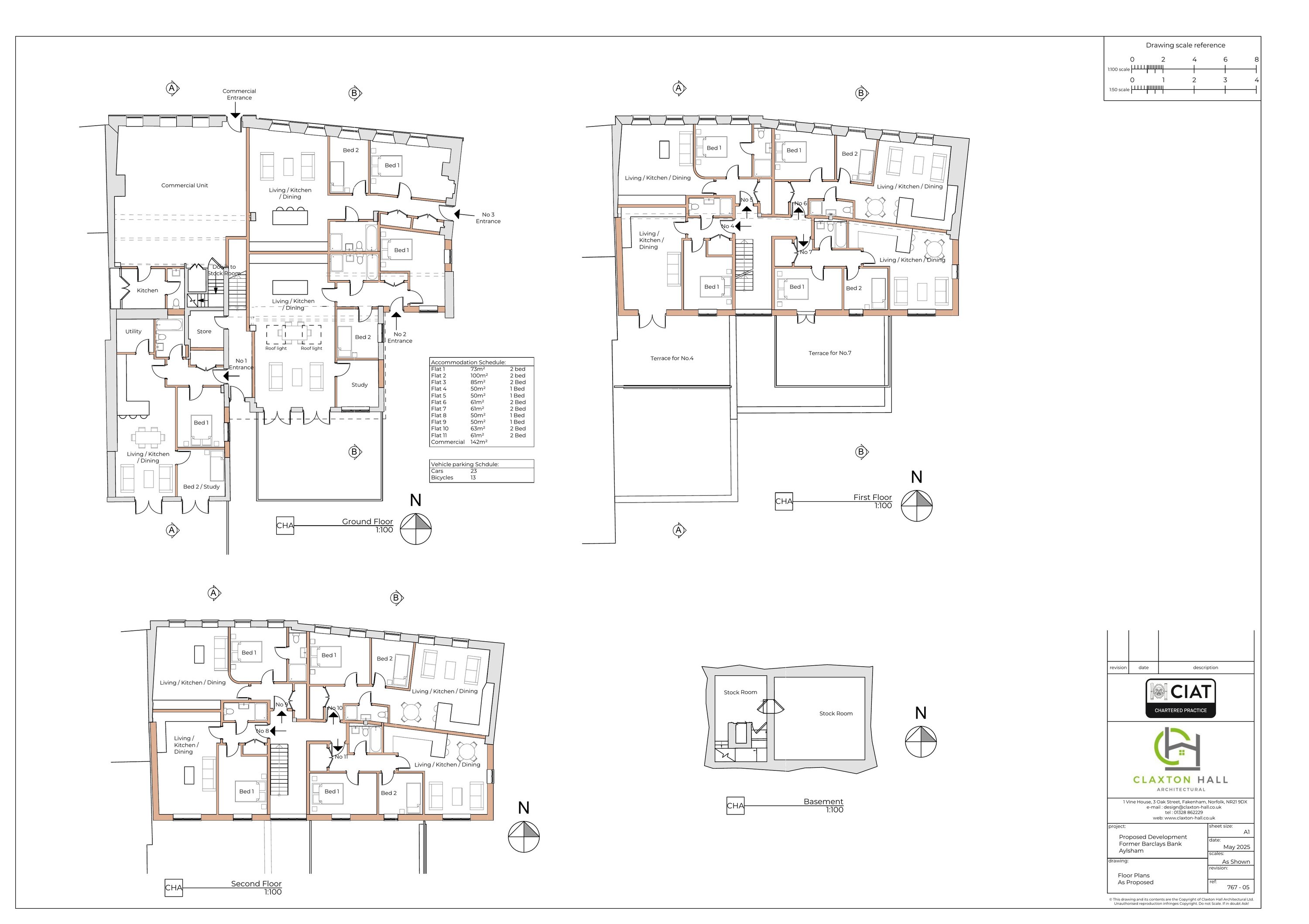
Conversion of former Barclays Bank to part residential (9 Units - Use Class C3) with retention of part of ground floor for continued Commercial, Business and Service use (Use Class E))

Documents

7 oakfield road
Public Comment (D)
Not yet archived · Original link
Anglian water comment
Consultee Comment (D)
Not yet archived · Original link
Application form redacted
Application Form (K)
Not yet archived · Original link
Designing out crime officer
Consultee Comment (D)
Not yet archived · Original link
Drainage assessment
Report (K)
Not yet archived · Original link
Elevations & sections as proposed
Drawing (K)
Not yet archived · Original link
Environmental management comment
Consultee Comment (D)
Not yet archived · Original link
Es waste
Consultee Comment (D)
Not yet archived · Original link
Ev charging statement
Report (K)
Not yet archived · Original link
Existing elevations and sections
Drawing (K)
Not yet archived · Original link
Existing floor plans
Drawing (K)
Not yet archived · Original link
Drawing (K)
Archived · Original link
Drawing (K)
Archived · Original link
Housing & enabling officer comments
Consultee Comment (D)
Not yet archived · Original link
Ncc highways
Consultee Comment (D)
Not yet archived · Original link
Ncc highways
Consultee Comment (D)
Not yet archived · Original link
Ncc lead local flood authority
Consultee Comment (D)
Not yet archived · Original link
Norfolk police
Consultee Comment (D)
Not yet archived · Original link
Nutrient neutrality assessment and mitigation strategy
Report (K)
Not yet archived · Original link
Nutrient neutrality comment
Consultee Comment (D)
Not yet archived · Original link
Nutrient neutrality officer response
Consultee Comment (D)
Not yet archived · Original link
Parish council
Consultee Comment (D)
Not yet archived · Original link
Parish/town council
Consultee Comment (D)
Not yet archived · Original link
Planning statement
Report (K)
Not yet archived · Original link
Press advert
BackGround Papers (K)
Not yet archived · Original link
Press advert
BackGround Papers (K)
Not yet archived · Original link
Proposed elevations and sections
Revised Drawing (K)
Not yet archived · Original link
Drawing (K)
Archived · Original link
Revised Drawing (K)
Archived · Original link
Revised Drawing (K)
Archived · Original link
Appeal Correspondence (D)
Archived · Original link
Drawing (K)
Archived · Original link
Senior heritage design officer comment
Consultee Comment (D)
Not yet archived · Original link
Senior heritage officer comments
Consultee Comment (D)
Not yet archived · Original link
Waste team comments
Consultee Comment (D)
Not yet archived · Original link
Waste team comments
Consultee Comment (D)
Not yet archived · Original link
Waste team comments - guidance waste note
Consultee Comment (D)
Not yet archived · Original link

Have your say

Your comment matters. Councils must consider every representation that raises material planning considerations.

Write a comment