← Broadland and South Norfolk Council

Status

Pending Decision Other
Received
15 Dec 2025
New homes
0

Full proposal

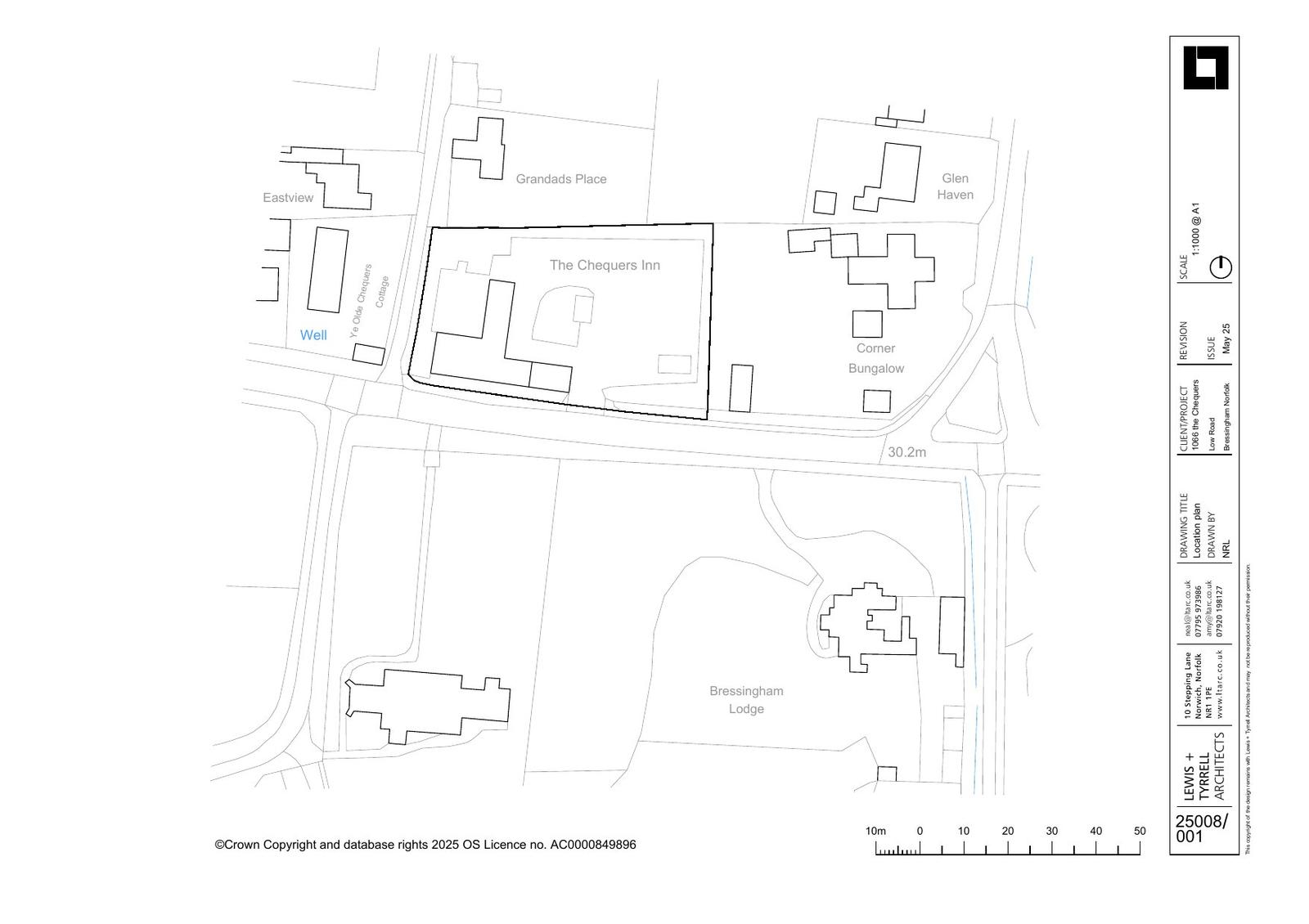
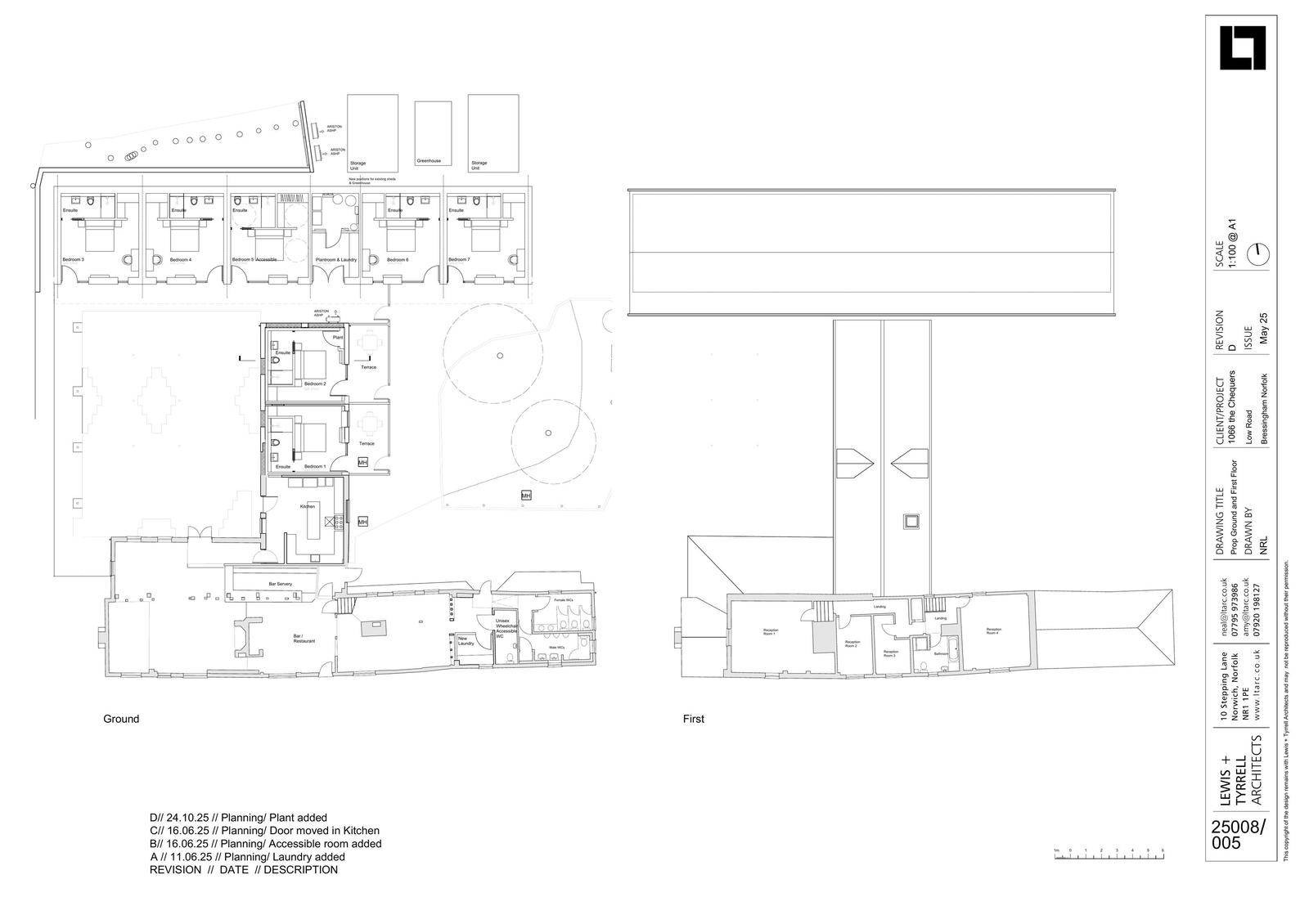
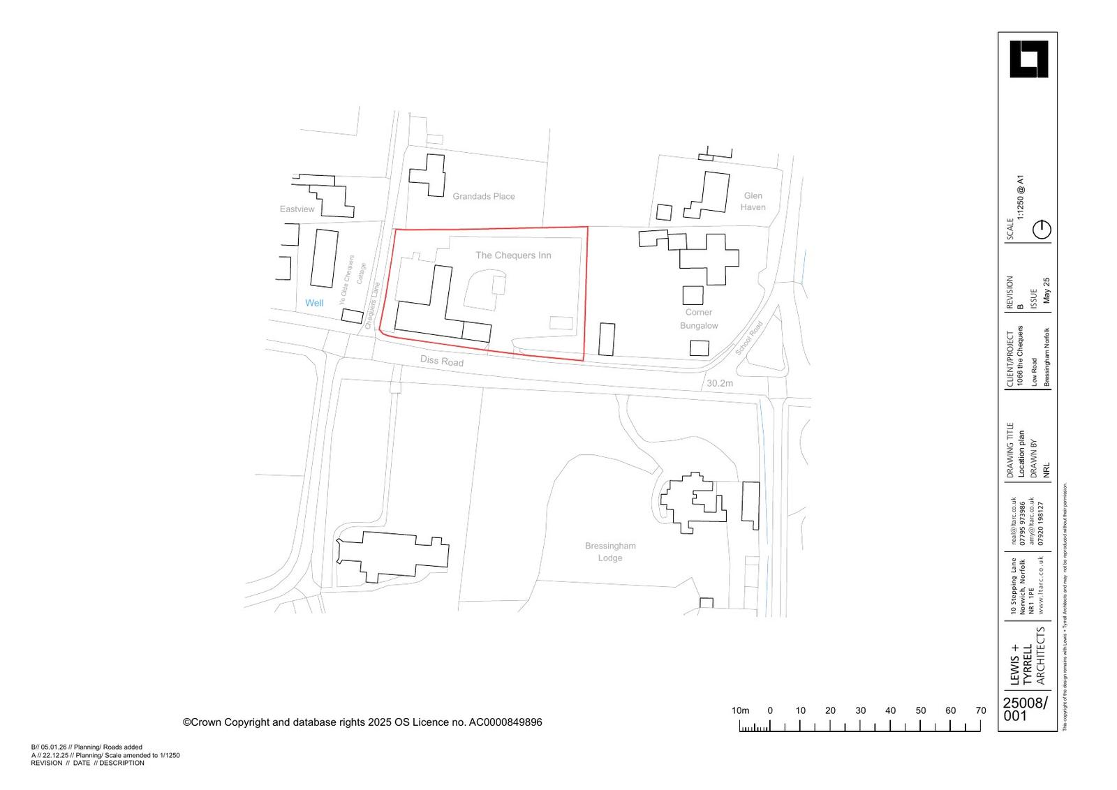
Internal and external alterations to rear extension. Erection of new building for accommodation and associated works

Documents

Site LocationPlan (K)
Archived · Original link
Drawing (K)
Archived · Original link
Drawing (K)
Archived · Original link
Drawing (K)
Archived · Original link
Drawing (K)
Archived · Original link
Site LocationPlan (K)
Archived · Original link

Have your say

Your comment matters. Councils must consider every representation that raises material planning considerations.

Write a comment