← Back to Broadland and South Norfolk Council

Status

Pending Consideration
Received Last month
New dwellings n/a

What you can do

Take Action

Make your voice heard. Authorities need to hear from people who support new homes.

Full Proposal

Outline permission for erection of 2 no. Self build/custom build dwellings with all matters reserved except access

Detail pages

Documents

128 norwich road
Public Comment (D)
Not downloaded · Council link
Additional consultee instruction
Officer Notes
Not downloaded · Council link
Christmas cottage
Public Comment (D)
Not downloaded · Council link
Environmental quality (protection)
Consultee Comment (D)
Not downloaded · Council link
Ev charging space plan
Drawing (K)
Not downloaded · Council link
Heritage statement
Report (K)
Not downloaded · Council link
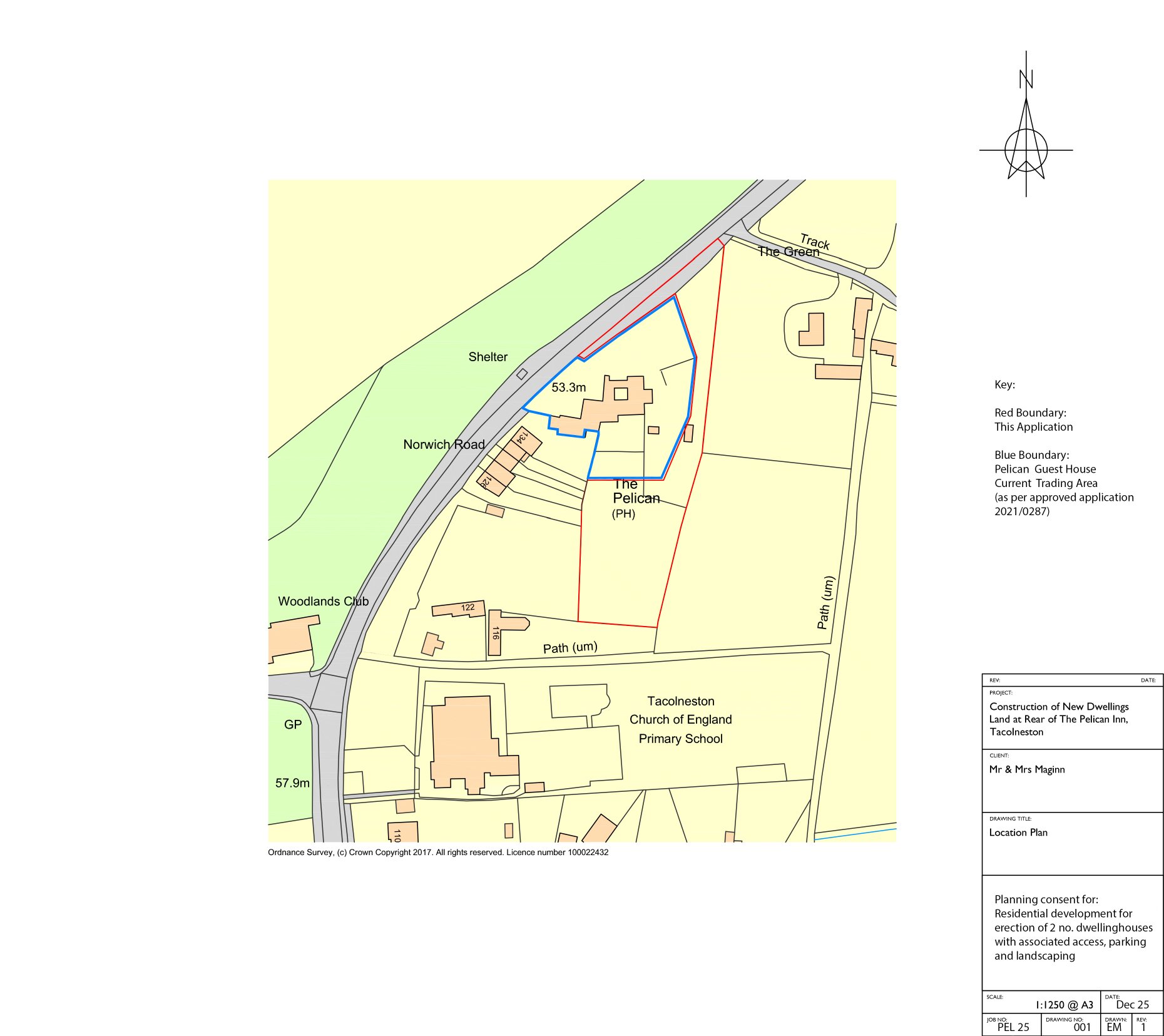
Location plan
Drawing (K)
Not downloaded · Council link
Location plan
Drawing (K)
Not downloaded · Council link
Location plan detail, highway access detail
Drawing (K)
Not downloaded · Council link
Ncc highways
Consultee Comment (D)
Not downloaded · Council link
Nutrient neutrality assessment and mitigation strategy
Report (K)
Not downloaded · Council link
Outline application form
Application Form (K)
Not downloaded · Council link
Planning statement
Report (K)
Not downloaded · Council link
Preliminary ecological appraisal
Report (K)
Not downloaded · Council link
Press advert
BackGround Papers (K)
Not downloaded · Council link
Proposed elevations
Drawing (K)
Not downloaded · Council link
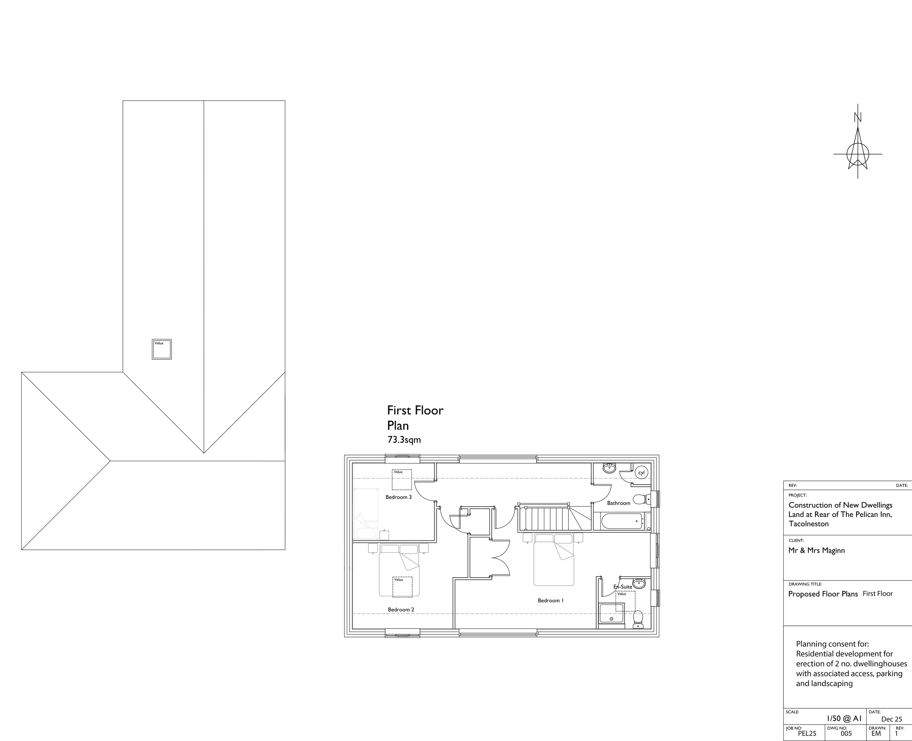
Proposed first floor
Drawing (K)
Not downloaded · Council link
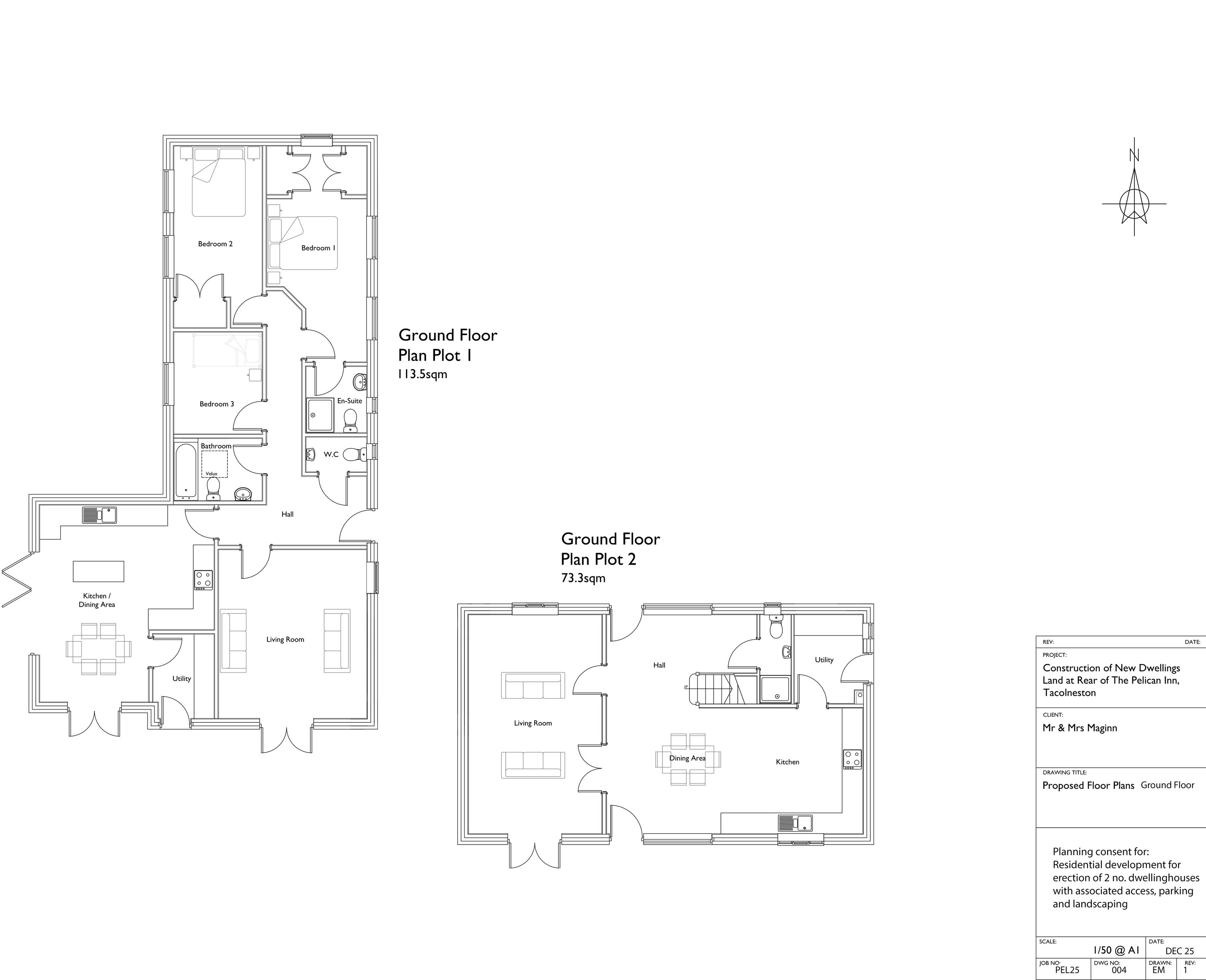
Proposed ground floor
Drawing (K)
Not downloaded · Council link
Self custom build statement
Report (K)
Not downloaded · Council link
Site layout
Drawing (K)
Not downloaded · Council link
Water management alliance
Consultee Comment (D)
Not downloaded · Council link