← Broadland and South Norfolk Council

Status

Pending Consideration House extension
Received
24 Dec 2025
New homes
0

Full proposal

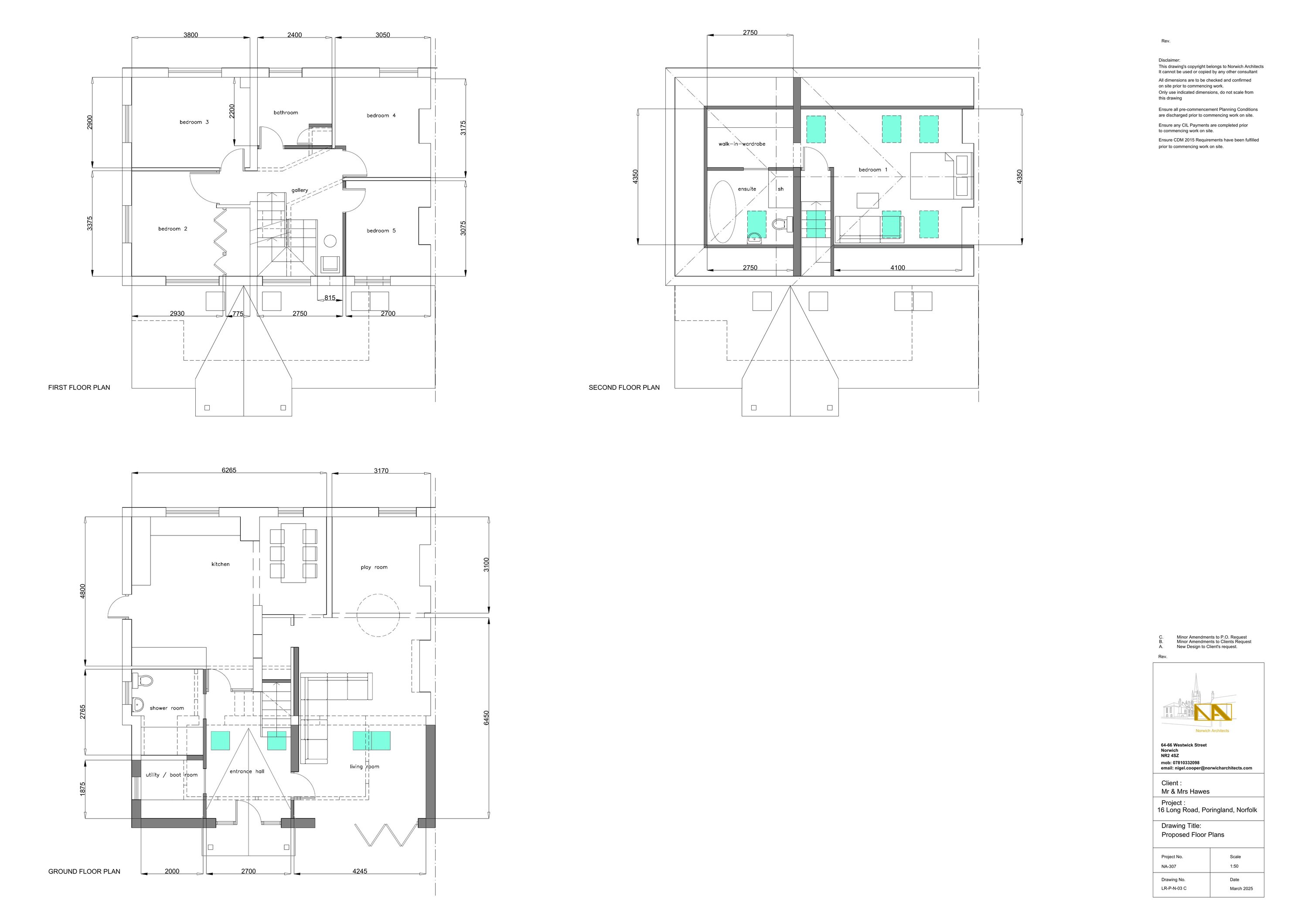
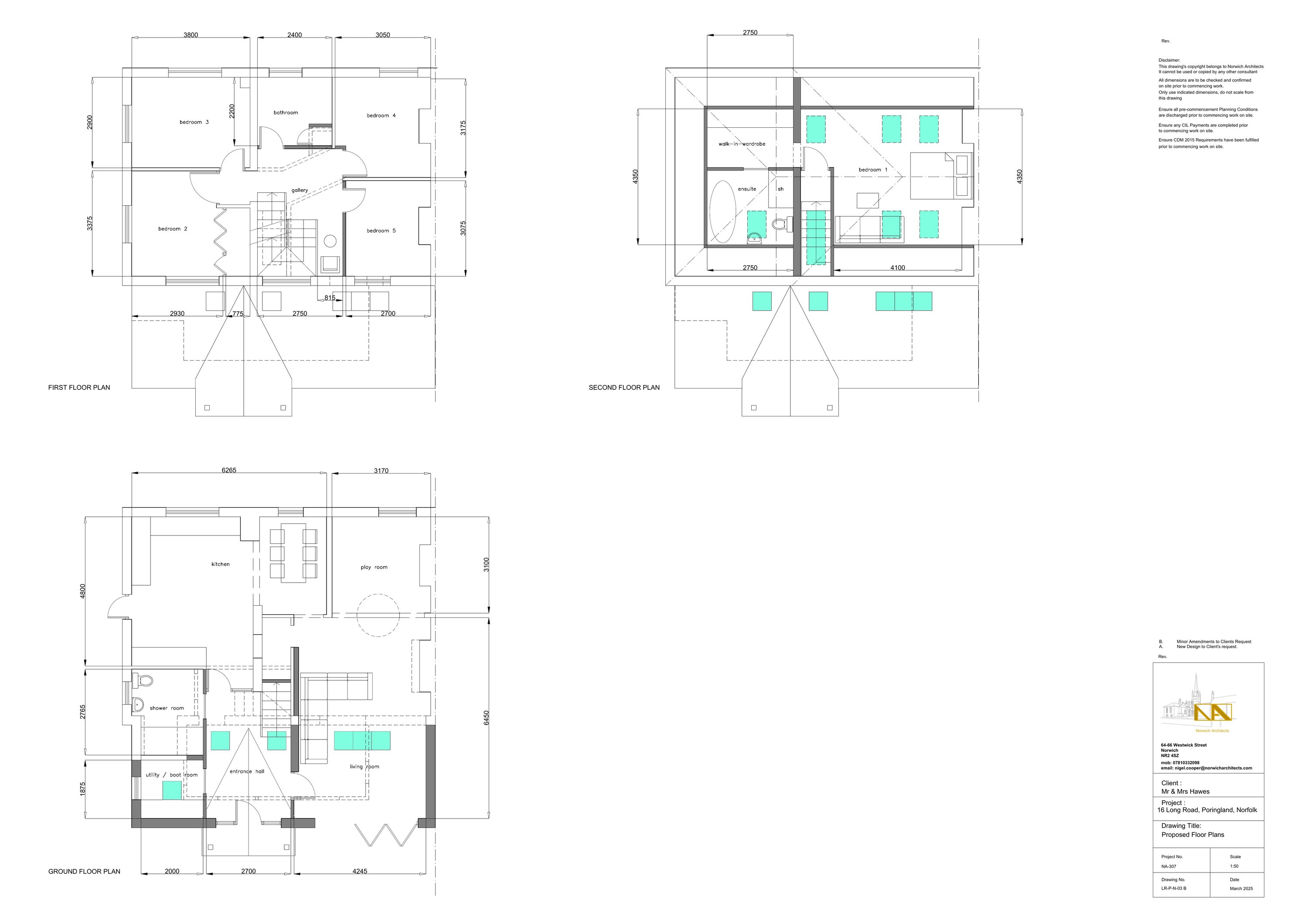
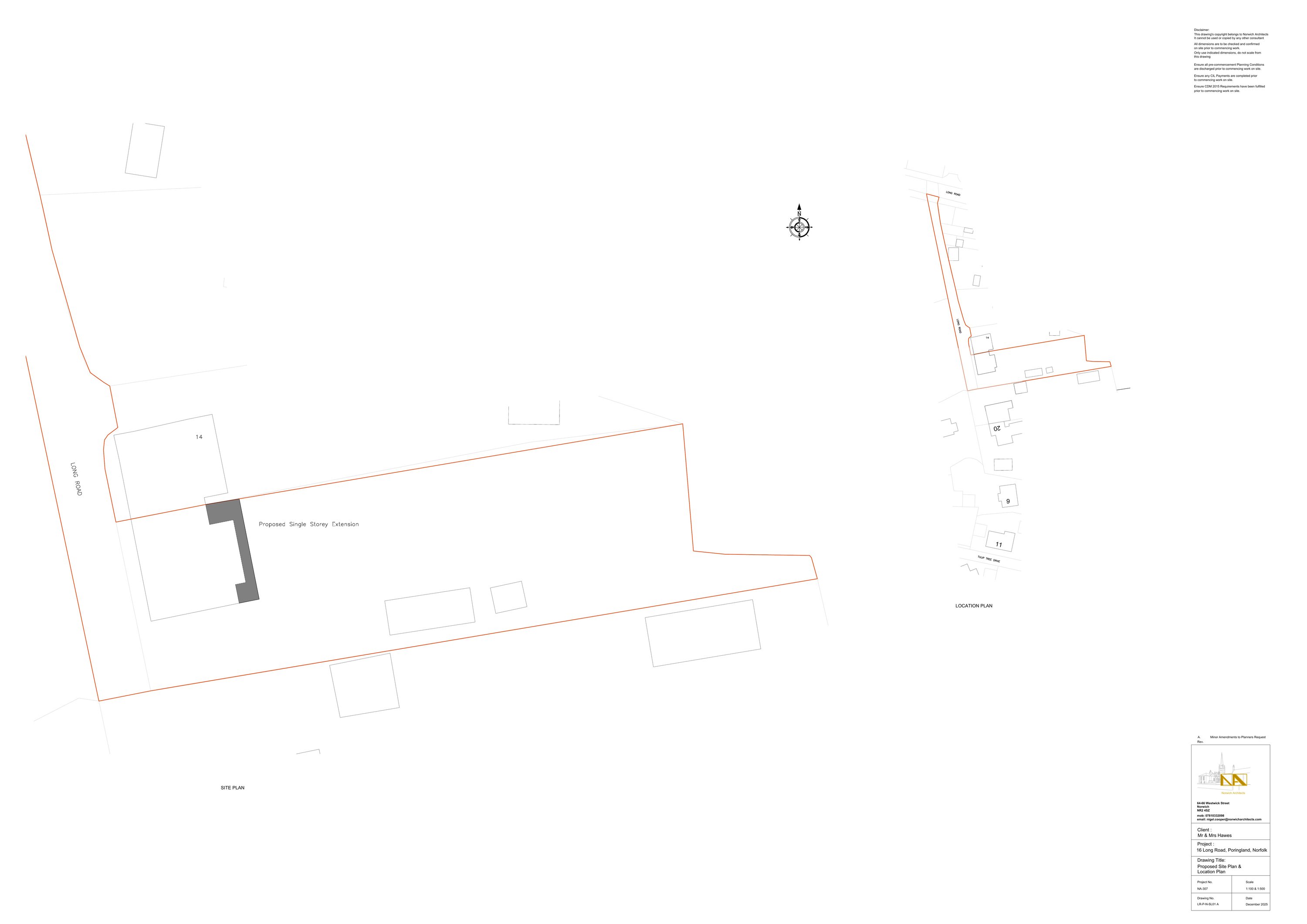
Single Storey Rear Extension and Loft Conversion

Documents

Drawing (K)
Archived · Original link
Drawing (K)
Archived · Original link
Revised Drawing (K)
Archived · Original link
Drawing (K)
Archived · Original link
Drawing (K)
Archived · Original link
Revised Drawing (K)
Archived · Original link
Revised Drawing (K)
Archived · Original link

Have your say

Your comment matters. Councils must consider every representation that raises material planning considerations.

Write a comment