← Broadland and South Norfolk Council

Status

Pending Decision House extension
Received
30 Dec 2025
New homes
0

Full proposal

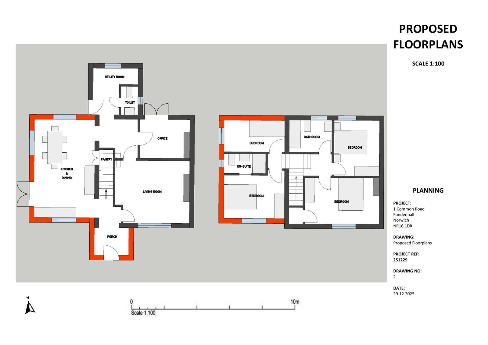
Erection of two-storey side extension, front porch and detached garage

Documents

Drawing (K)
Archived · Original link
Drawing (K)
Archived · Original link
Drawing (K)
Archived · Original link
Site LocationPlan (K)
Archived · Original link
Drawing (K)
Archived · Original link
Drawing (K)
Archived · Original link
Drawing (K)
Archived · Original link
Drawing (K)
Archived · Original link

Have your say

Your comment matters. Councils must consider every representation that raises material planning considerations.

Write a comment