← Broadland and South Norfolk Council

Status

Pending Consideration House extension
Received
14 Jan 2026
New homes
0

Full proposal

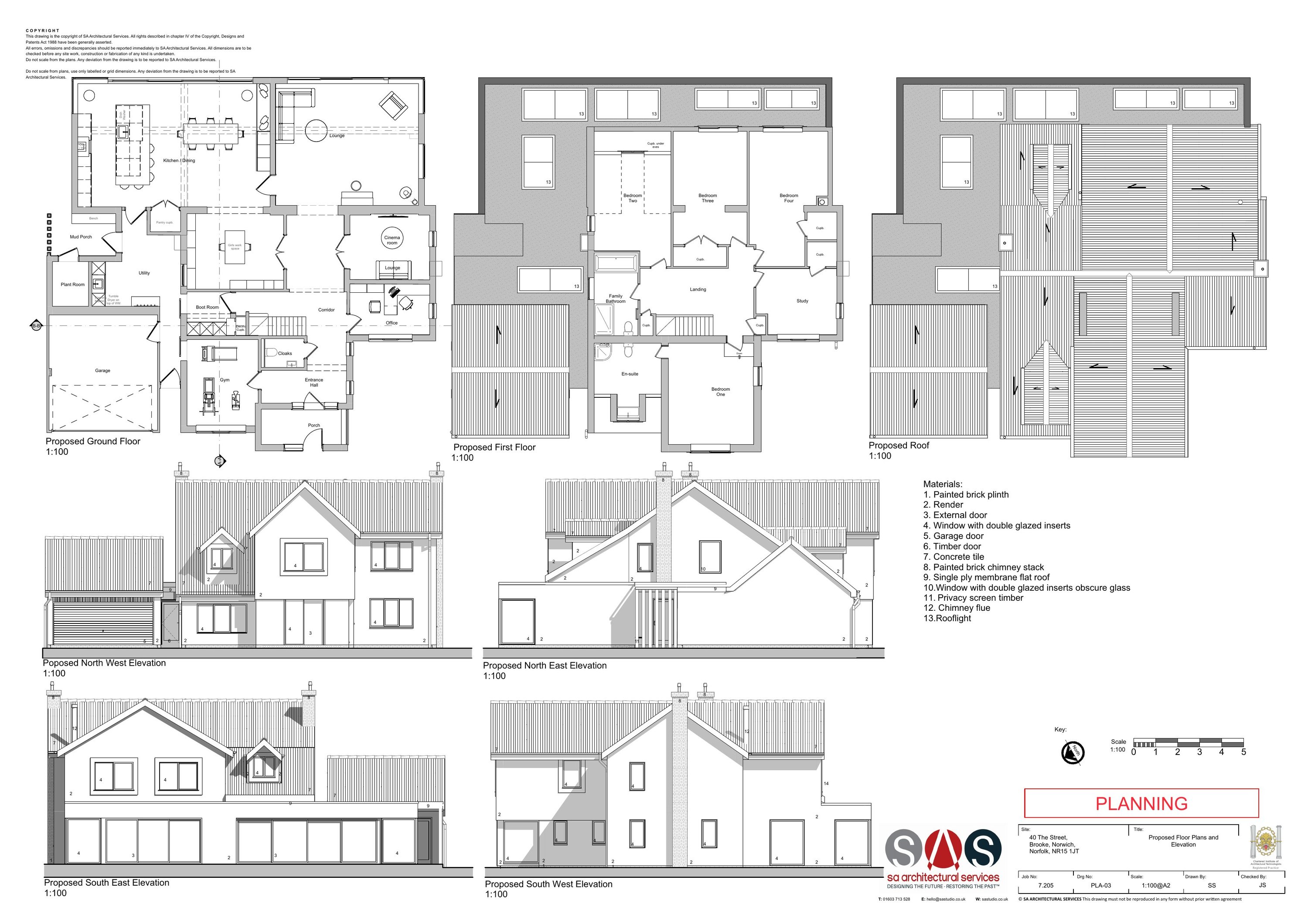
Single-storey rear and side extensions; internal alterations, demolition of the existing external boiler room, demolition of front boundary wall, replacement of windows, and facade alterations.

Documents

Application Form (K)
Archived · Original link
Drawing (K)
Archived · Original link
Consultee Comment (D)
Archived · Original link
CIL Documentation (K)
Archived · Original link
Report (K)
Archived · Original link
Drawing (K)
Archived · Original link
Consultee Comment (D)
Archived · Original link
BackGround Papers (K)
Archived · Original link

Have your say

Your comment matters. Councils must consider every representation that raises material planning considerations.

Write a comment