← Back to Broadland and South Norfolk Council
Application
2026/0121
Broadland and South Norfolk Council · IDOX
Status
Pending Consideration
Received
22 days ago
New dwellings
n/a
What you can do
Take Action
Make your voice heard. Authorities need to hear from people who support new homes.
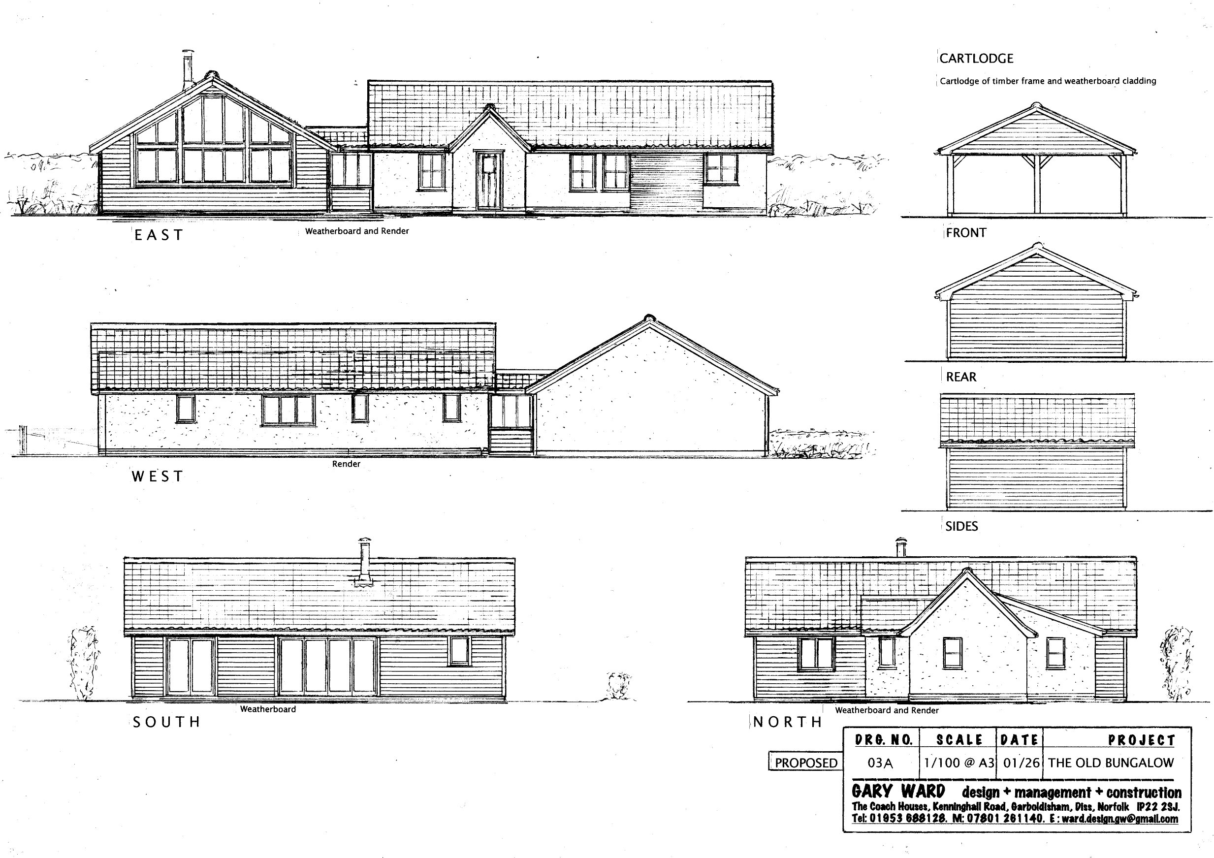
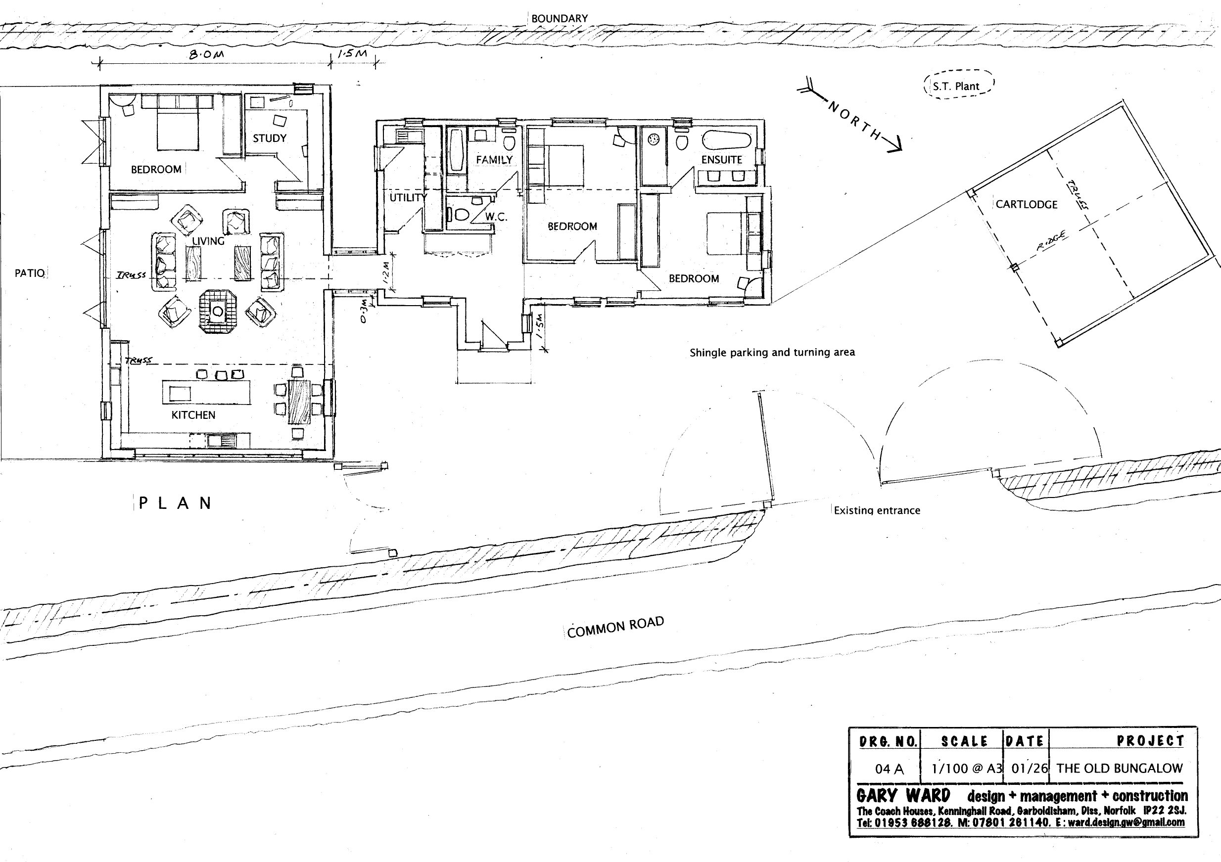
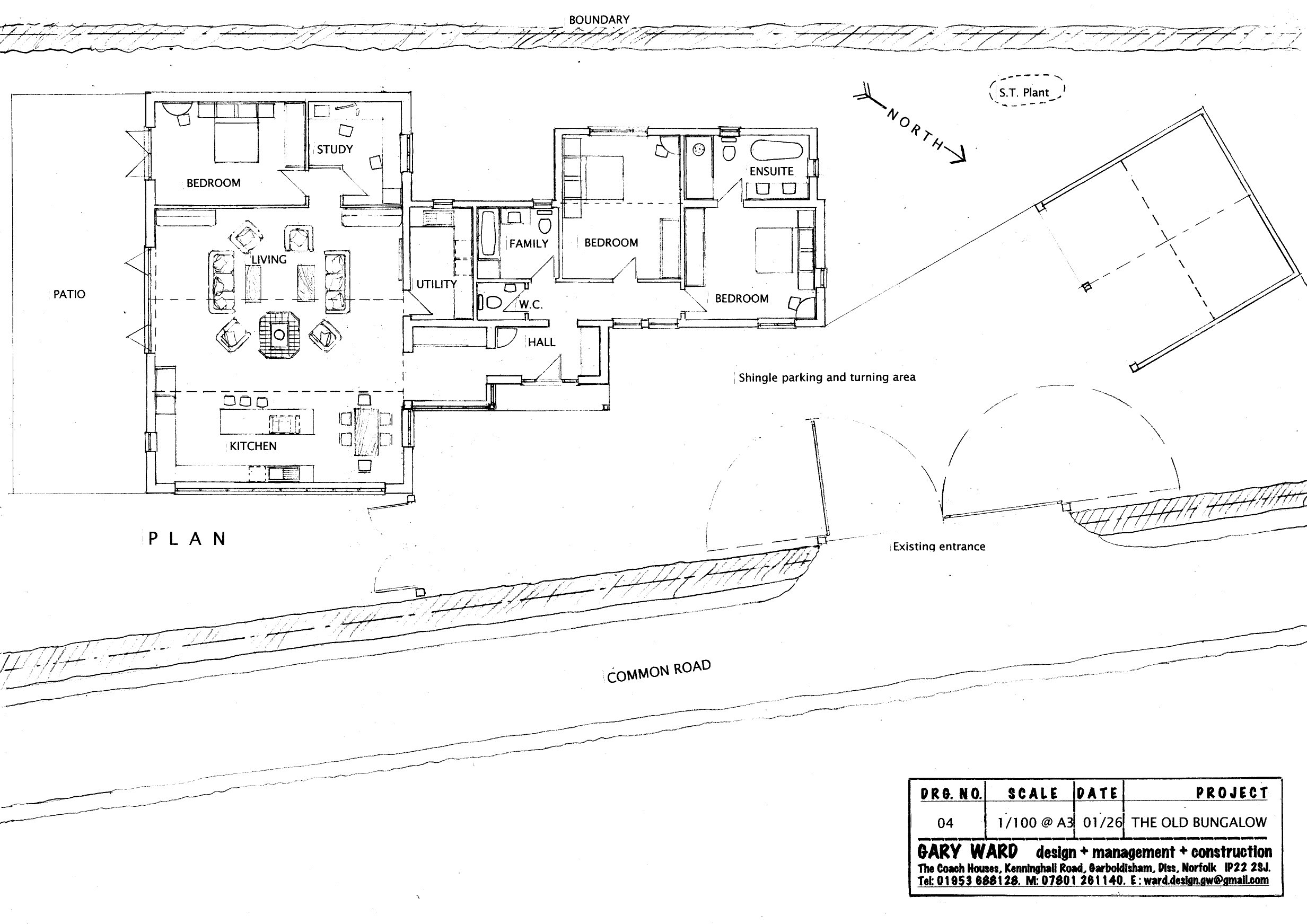
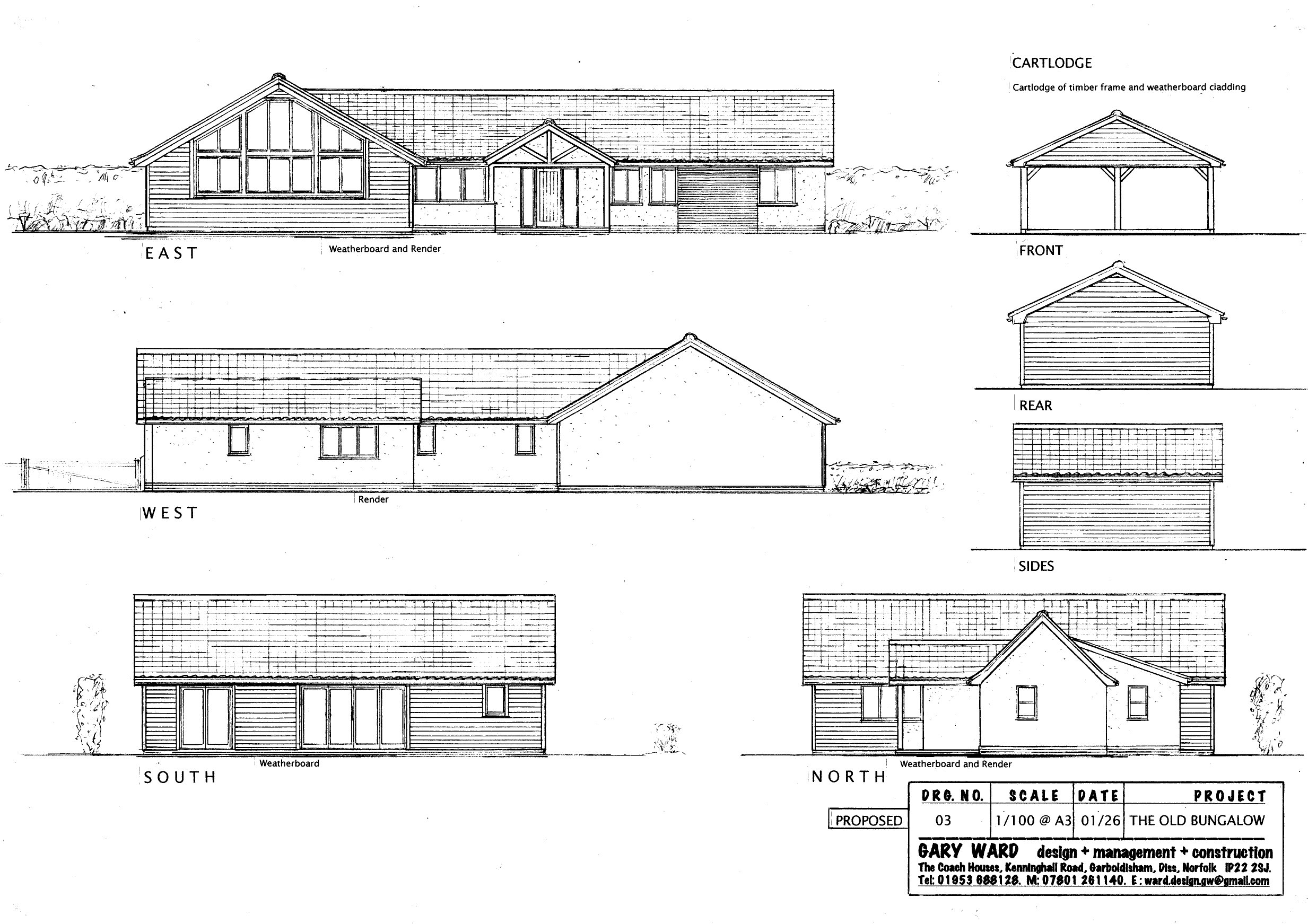
Full Proposal
Extension and alteration to existing dwelling
Detail pages
- View live detail on council site
- No archived detail page available.
Documents
Agent correspondence
Correspondence (D)
Not downloaded
· Council link
Application form redacted
Application Form (K)
Not downloaded
· Council link
District member
Consultee Comment (D)
Not downloaded
· Council link
Existing plan
Drawing (K)
Not downloaded
· Council link
Location plan
Site LocationPlan (K)
Not downloaded
· Council link
Ncc highways
Consultee Comment (D)
Not downloaded
· Council link
Proposed plan
Drawing (K)
Not downloaded
· Council link
Site plan 1to 500
Drawing (K)
Archived copy
· Council link