← Broadland and South Norfolk Council

Status

Pending Consideration Change of use
Received
25 Jan 2026
New homes
0

Full proposal

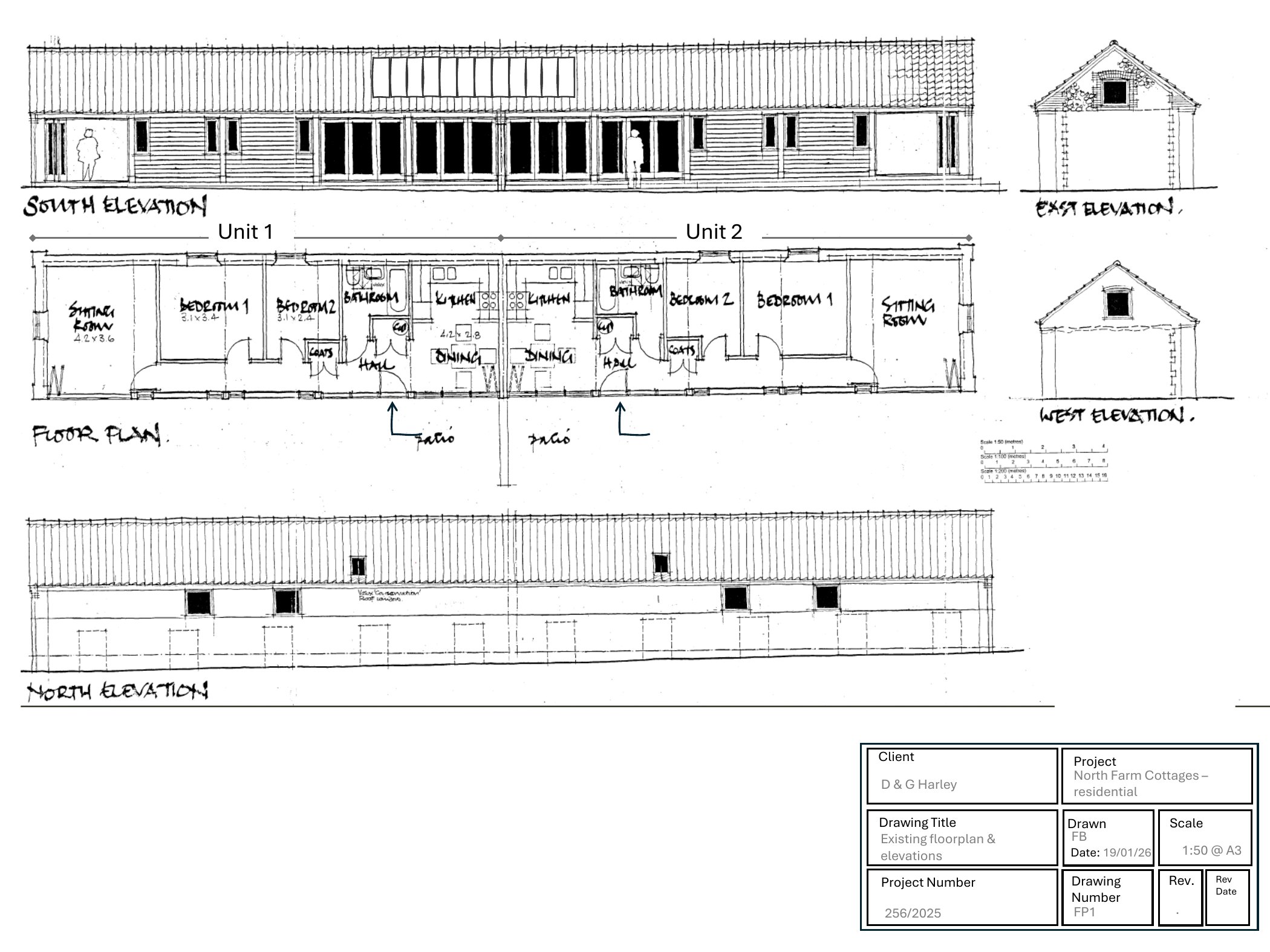
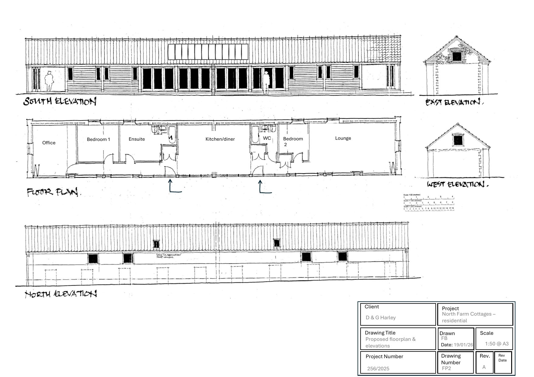
Change of use from 2 units of holiday accommodation to one dwelling

Documents

Application Form (K)
Archived · Original link
CIL Documentation (K)
Archived · Original link
Consultee Comment (D)
Archived · Original link
Site LocationPlan (K)
Archived · Original link
Consultee Comment (D)
Archived · Original link
Consultee Comment (D)
Archived · Original link
Consultee Comment (D)
Archived · Original link
Report (K)
Archived · Original link
Consultee Comment (D)
Archived · Original link

Have your say

Your comment matters. Councils must consider every representation that raises material planning considerations.

Write a comment